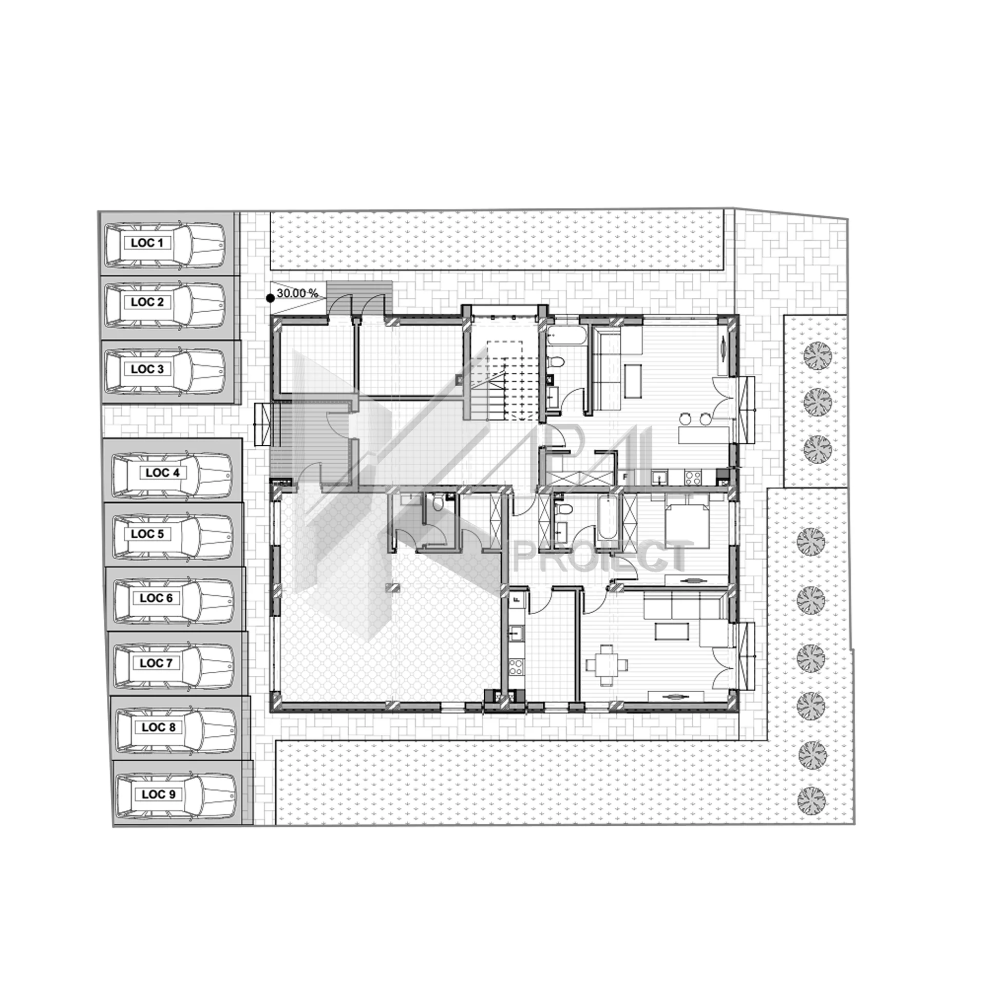
Parter
Hol intrare și nod vertical de circulație (casa scării)
Spațiu comercial: 50,02 mp, cu grup sanitar și depozitare
Spații tehnice: depozitare deșeuri menajere și cameră pompe (acces exterior)
Apartament 1 – Garsonieră (Su = 37,05 mp):
Depozitare 3,21 mp
Baie 4,64 mp
Living + bucătărie open-space 29,20 mp
Apartament 2 – 2 camere (Su = 56,05 mp):
Hol 7,51 mp
Baie 4,58 mp
Bucătărie închisă 9,59 mp
Living 21,33 mp
Dormitor 13,04 mp
Total băi parter: 3 (două în apartamente + una pentru spațiul comercial)
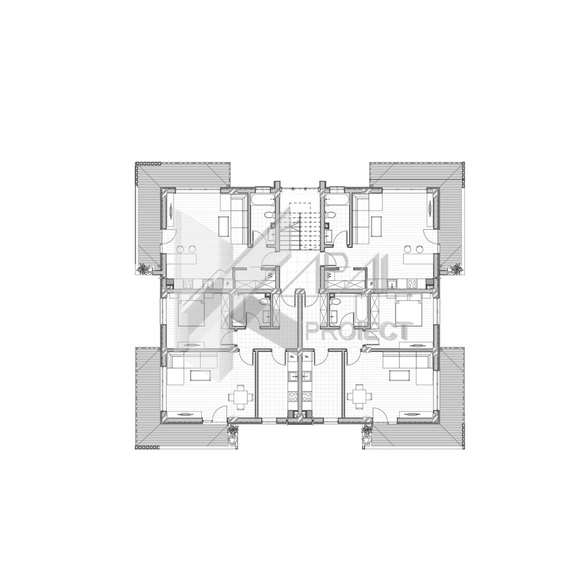
Etaj 1
Apartament 3 – Garsonieră (Su = 37,07 mp):
Depozitare 3,23 mp; Baie 4,64 mp; Living + bucătărie open-space 29,20 mp; Balcon 10,39 mp
Apartament 4 – 2 camere (Su = 56,05 mp):
Hol 7,51 mp; Baie 4,58 mp; Bucătărie închisă 9,59 mp; Living 21,33 mp; Dormitor 13,04 mp; Balcon 13,11 mp
Apartament 5 – 2 camere (Su = 56,05 mp):
Hol 7,51 mp; Baie 4,58 mp; Bucătărie închisă 9,59 mp; Living 21,33 mp; Dormitor 13,04 mp; Balcon 7,74 mp
Apartament 6 – Garsonieră (Su = 37,07 mp):
Depozitare 3,23 mp; Baie 4,64 mp; Living + bucătărie open-space 29,20 mp; Balcon 10,32 mp
Etaj 2
Apartament 3’ – Garsonieră (Su = 37,07 mp):
Depozitare 3,23 mp; Baie 4,64 mp; Living + bucătărie open-space 29,20 mp; Balcon 10,39 mp
Apartament 4’ – 2 camere (Su = 56,05 mp):
Hol 7,51 mp; Baie 4,58 mp; Bucătărie închisă 9,59 mp; Living 21,33 mp; Dormitor 13,04 mp; Balcon 13,11 mp
Apartament 5’ – 2 camere (Su = 56,05 mp):
Hol 7,51 mp; Baie 4,58 mp; Bucătărie închisă 9,59 mp; Living 21,33 mp; Dormitor 13,04 mp; Balcon 7,74 mp
Apartament 6’ – Garsonieră (Su = 37,07 mp):
Depozitare 3,23 mp; Baie 4,64 mp; Living + bucătărie open-space 29,20 mp; Balcon 10,32 mp














