Se propune o locuință colectivă modernă, compactă și eficientă, dezvoltată pe subsol, parter și două etaje. Conceptul pune accent pe lumină naturală, circulații clare și spații exterioare generoase (balcoane totalizând 150,54 mp), rezultând o clădire prietenoasă și coerentă din punct de vedere funcțional.
Fațadele, tratate în tencuieli fine alb/gri, subliniază limbajul contemporan al volumetriei, în timp ce golurile ample oferă transparență și legătură directă cu exteriorul. Structurarea pe niveluri separă coerent zonele tehnice (la subsol) de spațiile de locuit (parter, etaj 1 și 2), asigurând mentenanță facilă și confort cotidian.
La interior, compartimentarea este gândită pentru fluxuri intuitive: zona de zi de la parter beneficiază de spații de zi bine dimensionate, completate de bucătărie, depozitare și băi, iar nivelurile superioare oferă o varietate de camere/dormitoare și spații de zi, adaptabile stilurilor de viață actuale. Nodul vertical de circulație conectează eficient nivelurile, iar acoperișul tip șarpantă completează soluția cu o imagine echilibrată și durabilă.
Subsol
Acces – 1,62 mp (legătură directă cu parterul)
Spații tehnice:
22,75 mp
10,25 mp
25,25 mp
14,01 mp
24,22 mp
Casa scării – 3,50 mp (nod vertical de circulație)
Parter
Zonă de acces – 3,24 mp
Holuri – 3,72 mp + 7,78 mp + 7,27 mp (circulații clare)
Depozitare – 2,16 mp
Băi – 4,52 mp și 4,29 mp
Zonă de zi – 27,40 mp
Living – 24,03 mp
Bucătărie – 6,39 mp
Dormitor – 12,00 mp
Nod vertical de circulație (casa scării)
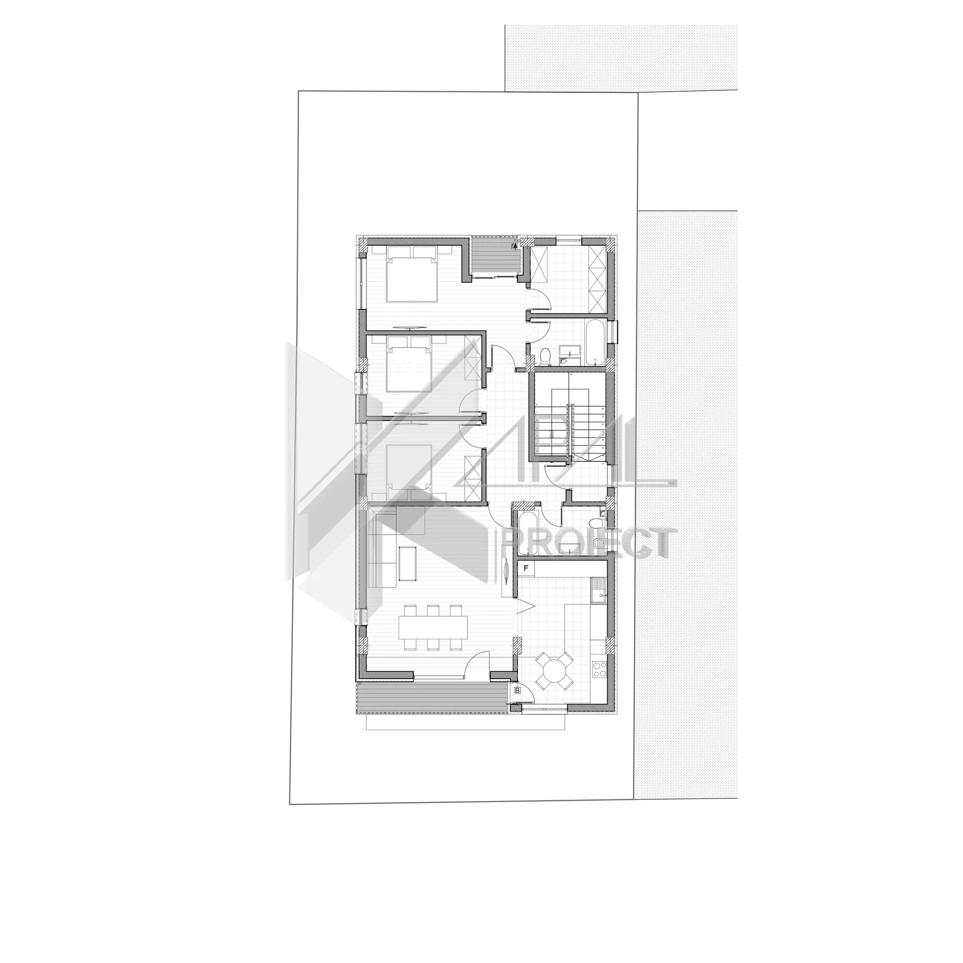
Etaj 1
Hol – 19,35 mp + nod vertical de circulație
Camere/Dormitoare:
Dormitor – 10,83 mp
Cameră – 22,48 mp
Dormitor – 12,43 mp
Dormitor – 9,28 mp
Cameră de zi – 23,37 mp
Dormitor – 13,08 mp
Băi – 4,02 mp și 4,54 mp
Balcon – 6,87 mp
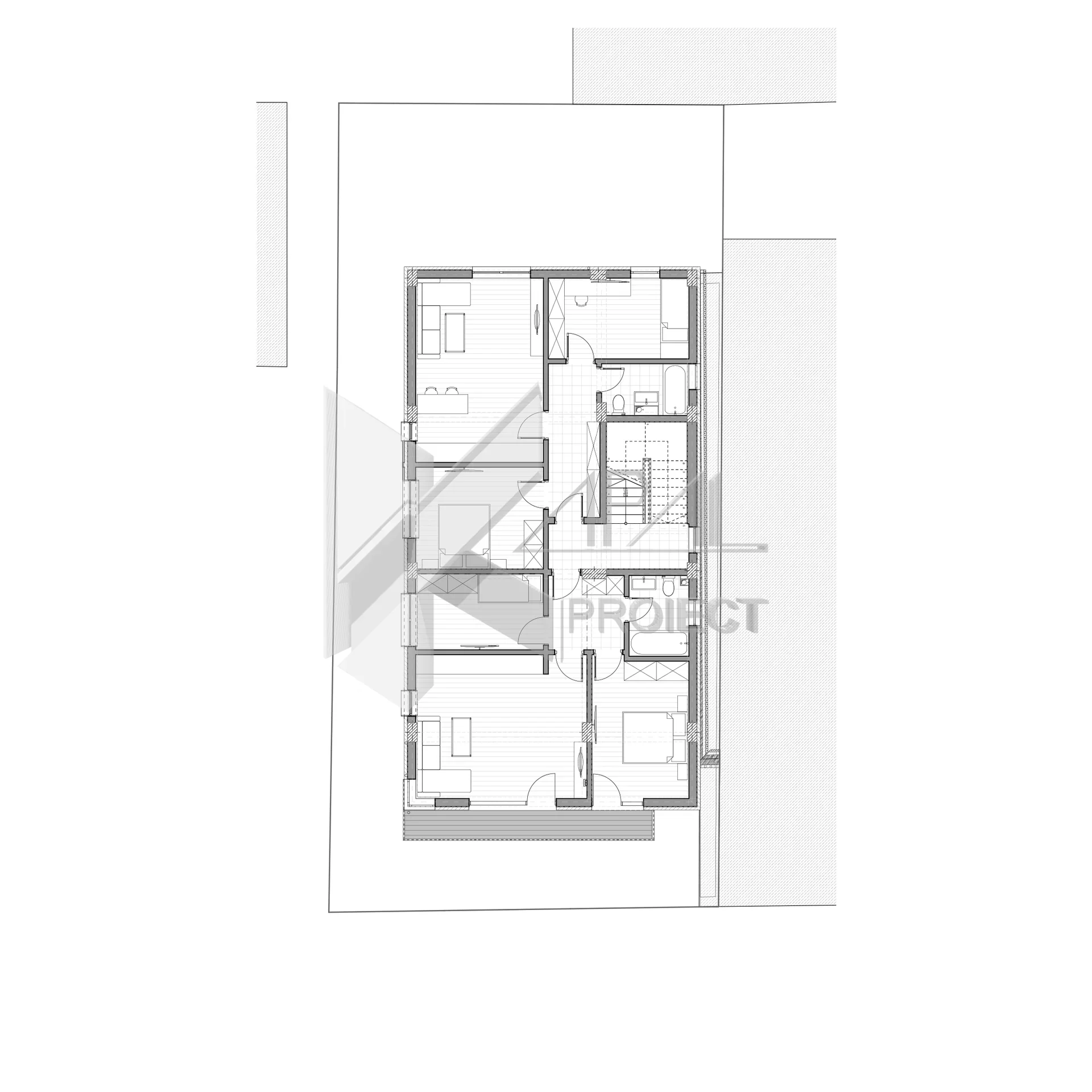
Etaj 2
Hol – 10,68 mp + nod vertical de circulație
Zonă de zi – 29,82 mp
Bucătărie – 15,79 mp
Dormitoare: 11,53 mp • 11,52 mp • 15,68 mp
Dressing – 6,46 mp
Băi – 5,33 mp și 4,29 mp
Balcoane – 6,09 mp și 2,16 mp














