Acest cămin studențesc contemporan a fost conceput pentru confort zilnic, siguranță și exploatare eficientă în mediul de campus. Volumetria compactă S+P+3E și liniile drepte, puternice generează o prezență urbană clară și coerentă, devenind un reper al ansamblului. Fațadele finisate în tencuială alb și gri închis pun în valoare ritmul ferestrelor și balcoanelor, oferind clădirii o identitate modernă, curată.
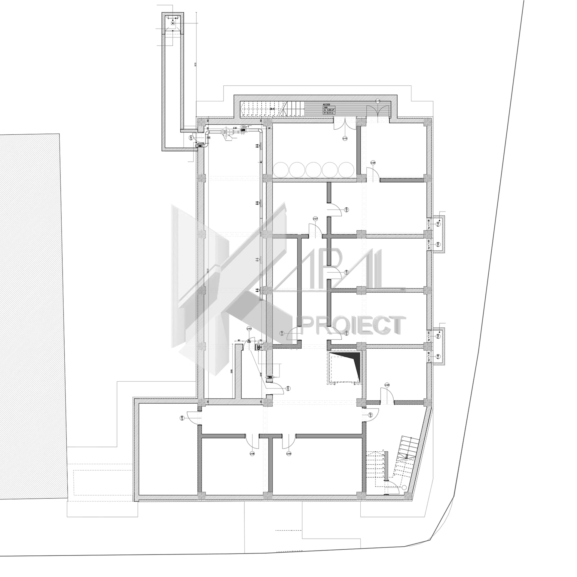
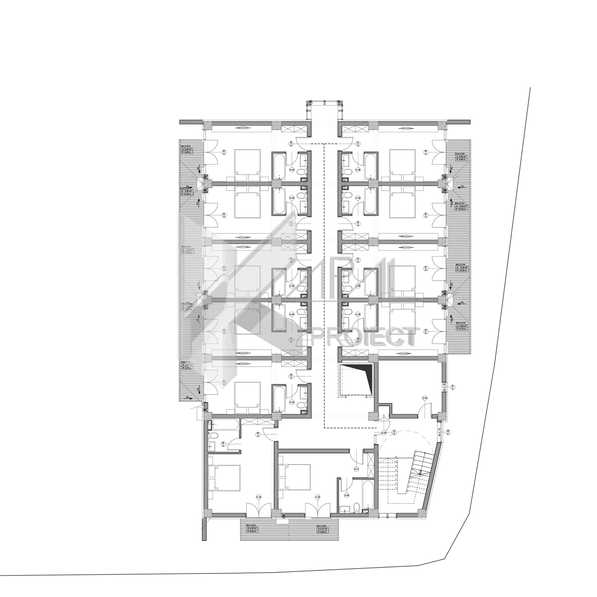
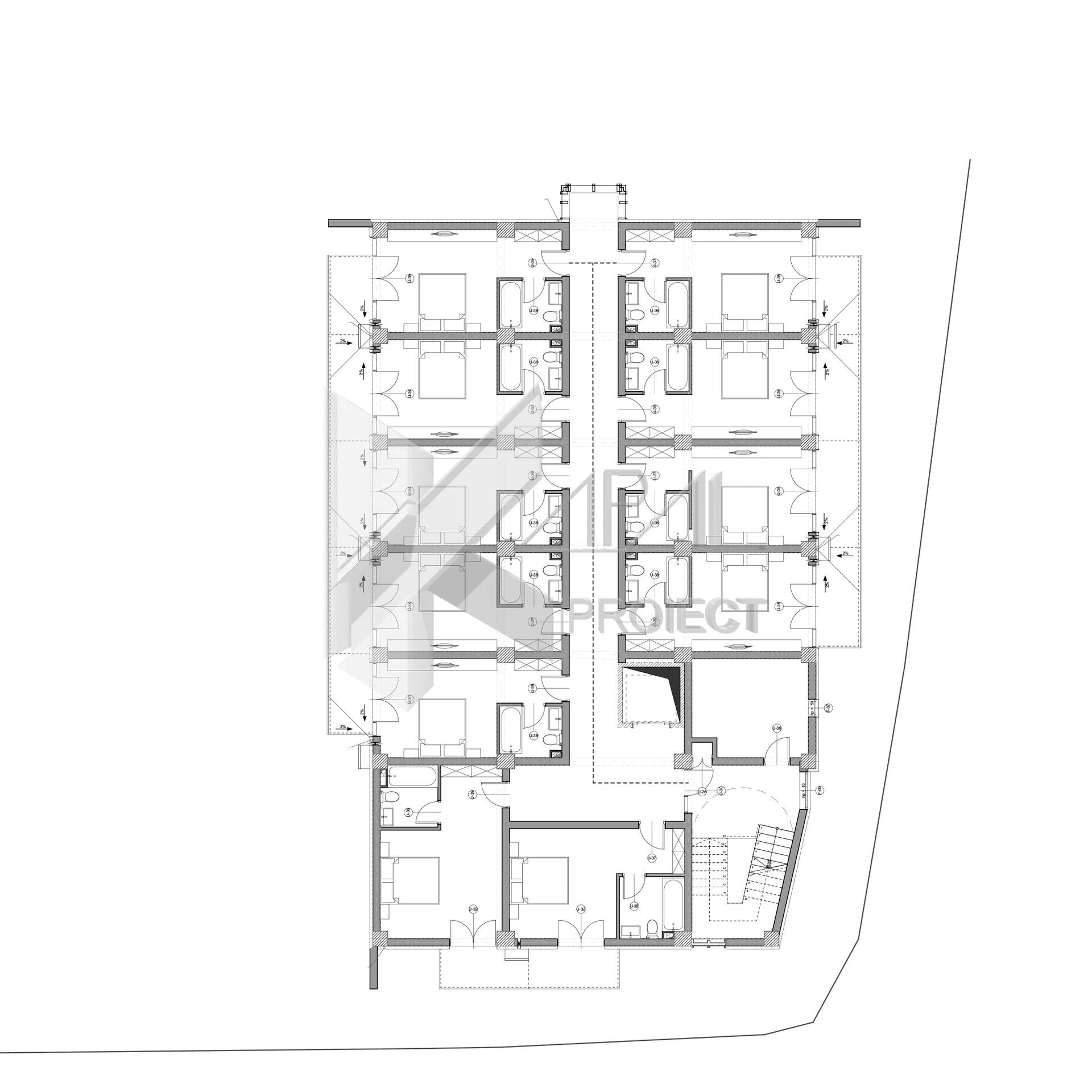
Funcțiunea este organizată pe verticală pentru separarea fluxurilor și optimizarea mentenanței: subsolul concentrează spațiile tehnice și logistice, parterul găzduiește zona de recepție și primire, iar etajele sunt dedicate integral unităților de cazare — fiecare cu baie proprie și balcon/terasă pentru confort și intimitate. Circulațiile sunt clare și eficiente, cu holuri dimensionate pentru trafic intens, oficiu pe fiecare nivel și spații de depozitare la subsol pentru operare fluidă.
Din punct de vedere tehnic, clădirea este dimensionată pentru utilizare intensă, asigurând condiții de siguranță, igienă și întreținere facilă: adăpostul de protecție civilă, camera pompelor de incendiu, spălătoria și oficiile dedicate personalului susțin continuitatea serviciilor și confortul rezidenților. Acoperișul de tip terasă necirculabilă contribuie la o imagine contemporană și la o gestionare simplificată a infiltrațiilor și detaliilor de atic.
Prin 42 de unități de cazare, recepție primitoare și infrastructură tehnică completă, clădirea oferă un echilibru între estetică, funcțiune și cost de operare, răspunzând așteptărilor actuale ale studenților pentru intimitate, lumină naturală și spații exterioare proprii.
Subsol
Acces (5,55 m²), casa scării (10,74 m²)
Vestiar (13,14 m²), hol (43,58 m²)
Depozit lenjerie (21,18 m²)
5 depozite: 15,80 m²; 22,39 m²; 11,04 m²; 11,84 m²; 20,53 m²
Parter
Casa scării (10,41 m²)
Hol (15,85 m²)
Hol + recepție (60,41 m²)
2 grupuri sanitare (câte 7,08 m²)
Etaj 1
Casa scării (8,96 m²)
Hol (45,97 m²)
Oficiu (12,72 m²)
11 unități de cazare ~17,00 m² fiecare, cu băi ~4,00 m² și balcoane
Etaj 2,3
Casa scării (8,96 m²)
Hol (45,97 m²)
Oficiu (12,72 m²)
11 unități de cazare/nivel ~17,00 m², cu băi ~4,00 m² și balcoane













