Parter
Circulație & servicii: hol de acces principal cu nod vertical + lift (spațiu tehnic sub scara principală); uscător cu acces separat; depozitare europubele cu acces separat
Spații comerciale: 2 unități cu accese independente din exterior, fiecare cu grup sanitar
Parcări: 21 locuri acoperite sub etajele superioare + 13 locuri neacoperite la exterior
Spații exterioare: spații verzi amenajate și loc de joacă
Locuință:
Apartament 1 – Garsonieră (Su 41,76 mp)
Hol 3,15 mp; Dressing 2,45 mp; Baie 5,43 mp; Living + bucătărie open space 30,73 mp
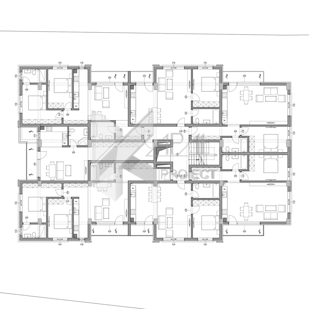
Etaj 1-2
Apartamente (Et. 1–2):
Ap. 2 – 3 camere (Su 69,52 mp)
Hol 5,26 mp; Baie 5,30 mp; Living 17,15 mp + balcon 4,92 mp; Bucătărie open space 7,20 mp; Hol 4,26 mp; Dormitor 11,88 mp; Dormitor 14,27 mp + baie 4,19 mp
Ap. 3 – 2 camere (Su 53,66 mp)
Living 23,11 mp; Bucătărie open space 12,70 mp + balcon 3,00 mp; Baie 5,10 mp; Dormitor 12,75 mp
Ap. 4 – 2 camere (Su 57,29 mp)
Hol 7,45 mp; Baie 4,58 mp; Dormitor 13,29 mp; Living + bucătărie open space 31,97 mp + balcon 5,45 mp
Ap. 5 – 2 camere (Su 57,44 mp)
Hol 7,45 mp; Baie 4,70 mp; Dormitor 13,41 mp; Living + bucătărie open space 31,88 mp + balcon 5,45 mp
Ap. 6 – 2 camere (Su 53,58 mp)
Living 23,11 mp; Bucătărie open space 12,62 mp + balcon 3,00 mp; Baie 5,10 mp; Dormitor 12,75 mp
Ap. 7 – 3 camere (Su 77,46 mp)
Hol 11,21 mp; Baie 5,30 mp; Living 19,26 mp + balcon 4,92 mp; Bucătărie open space 7,19 mp; Hol 4,26 mp; Dormitor 11,88 mp; Dormitor 14,18 mp + baie 4,18 mp
Ap. 8 – Garsonieră (Su 46,05 mp)
Hol 14,74 mp; Cameră 19,88 mp + balcon 8,00 mp; Chicineta 6,81 mp; Baie 4,62 mp
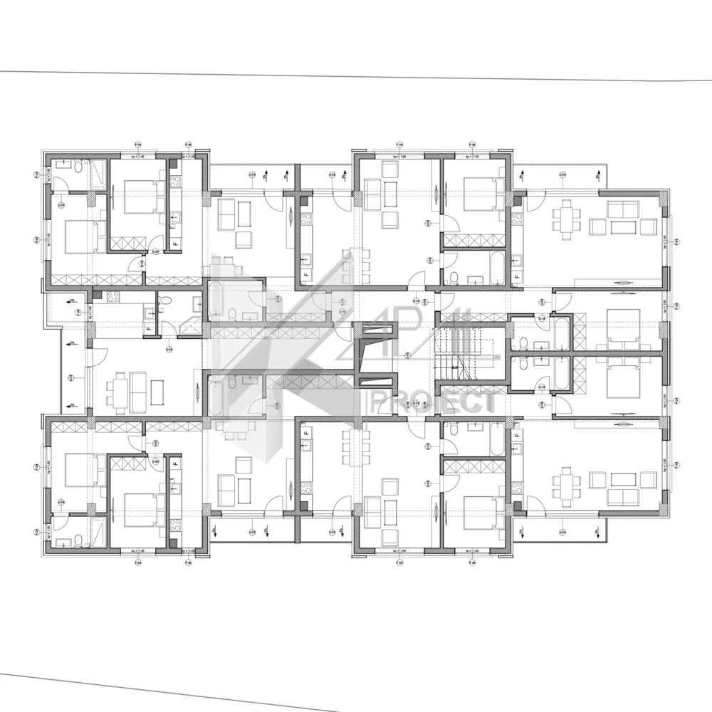
Etaj 3
Apartamente (Et. 3):
Ap. 16 – 2 camere (Su 52,93 mp)
Hol 7,29 mp; Baie 5,30 mp; Living 19,19 mp + balcon 4,92 mp; Bucătărie 7,24 mp; Dormitor 13,92 mp
Ap. 17 – 2 camere (Su 53,66 mp)
Living 23,11 mp + Bucătărie open space 12,70 mp + balcon 3,00 mp; Baie 5,10 mp; Dormitor 12,75 mp
Ap. 18 – 2 camere (Su 57,29 mp)
Hol 7,45 mp; Baie 4,58 mp; Dormitor 13,29 mp; Living + bucătărie open space 31,97 mp + balcon 5,45 mp
Ap. 19 – 2 camere (Su 57,44 mp)
Hol 7,45 mp; Baie 4,70 mp; Dormitor 13,41 mp; Living + bucătărie open space 31,88 mp + balcon 5,45 mp
Ap. 20 – 2 camere (Su 53,58 mp)
Living 23,11 mp; Bucătărie open space 12,62 mp + balcon 3,00 mp; Baie 5,10 mp; Dormitor 12,75 mp
Ap. 21 – 2 camere (Su 53,97 mp)
Hol 6,21 mp; Baie 5,30 mp; Living 21,28 mp + balcon 4,92 mp; Bucătărie 7,24 mp; Dormitor 13,94 mp
Ap. 22 – 2 camere (Su 61,77 mp)
Hol 15,40 mp; Baie 4,62 mp; Living 19,49 mp + balcon 8,00 mp; Bucătărie 7,25 mp; Dormitor 15,01 mp
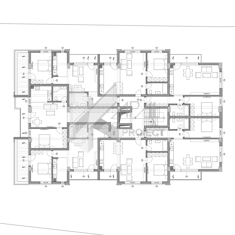
Etaj 4
Apartamente (Et. 4):
Ap. 23 – 3 camere (Su 75,52 mp)
Hol 7,05 mp; Depozitare 5,31 mp; Baie 4,61 mp; Living + bucătărie open space 24,35 mp + balcon 4,92 mp; Dormitor 13,68 mp; Dormitor 13,87 mp + baie 6,65 mp; balcon suplimentar 11,30 mp
Ap. 24 – 2 camere (Su 53,66 mp)
Living 23,11 mp; Bucătărie open space 12,70 mp + balcon 3,00 mp; Dormitor 12,75 mp; Baie 5,10 mp
Ap. 25 – 2 camere (Su 57,29 mp)
Hol 7,45 mp; Baie 4,58 mp; Dormitor 13,29 mp; Living + bucătărie open space 31,97 mp + balcon 5,45 mp
Ap. 26 – 2 camere (Su 57,29 mp)
Hol 7,45 mp; Baie 4,70 mp; Dormitor 13,41 mp; Living + bucătărie open space 31,88 mp + balcon 5,45 mp
Ap. 27 – 2 camere (Su 62,72 mp)
Living 23,11 mp; Bucătărie open space 12,62 mp + balcon 3,00 mp; Baie 5,10 mp; Dormitor 12,75 mp
Ap. 28 – 3 camere (Su 75,15 mp)
Hol 6,35 mp; Depozitare 5,95 mp; Living + bucătărie open space 24,03 mp + balcon 4,92 mp; Baie 4,81 mp; Dormitor 13,68 mp; Dormitor 13,68 mp + baie 6,65 mp; balcon 11,40 mp














