Această clădire de locuințe colective este concepută într-un limbaj arhitectural modern, amplasată pe un teren cu deschidere la trei străzi, ceea ce îi conferă vizibilitate ridicată și o bună integrare urbană. Regimul de înălțime Parter + 4 Etaje generează o volumetrie echilibrată, iar amprenta redusă la sol a nucleului de circulații permite eliberarea parterului pentru funcțiuni de parcare și spații tehnice.
Clădirea se remarcă prin suprafețe vitrate ample, balcoane bine integrate și o compoziție ordonată de accente orizontale gri, care dinamizează fațadele. Balustradele din sticlă și tâmplăria PVC antracit completează imaginea contemporană. Terasa circulabilă de la ultimul nivel oferă spații comune de relaxare, cu zone verzi amenajate.
Suprafața desfășurată totală este de 2.301,28 mp, iar suprafața utilă este de 1.349,42 mp. Acoperișul este de tip terasă circulabilă peste etajul 4 și terasă necirculabilă peste spațiul tehnic.
Parter
Casă scară
Lift
Spațiu tehnic
Spațiu depozitare deșeuri
Spațiu parcare biciclete
23 locuri de parcare
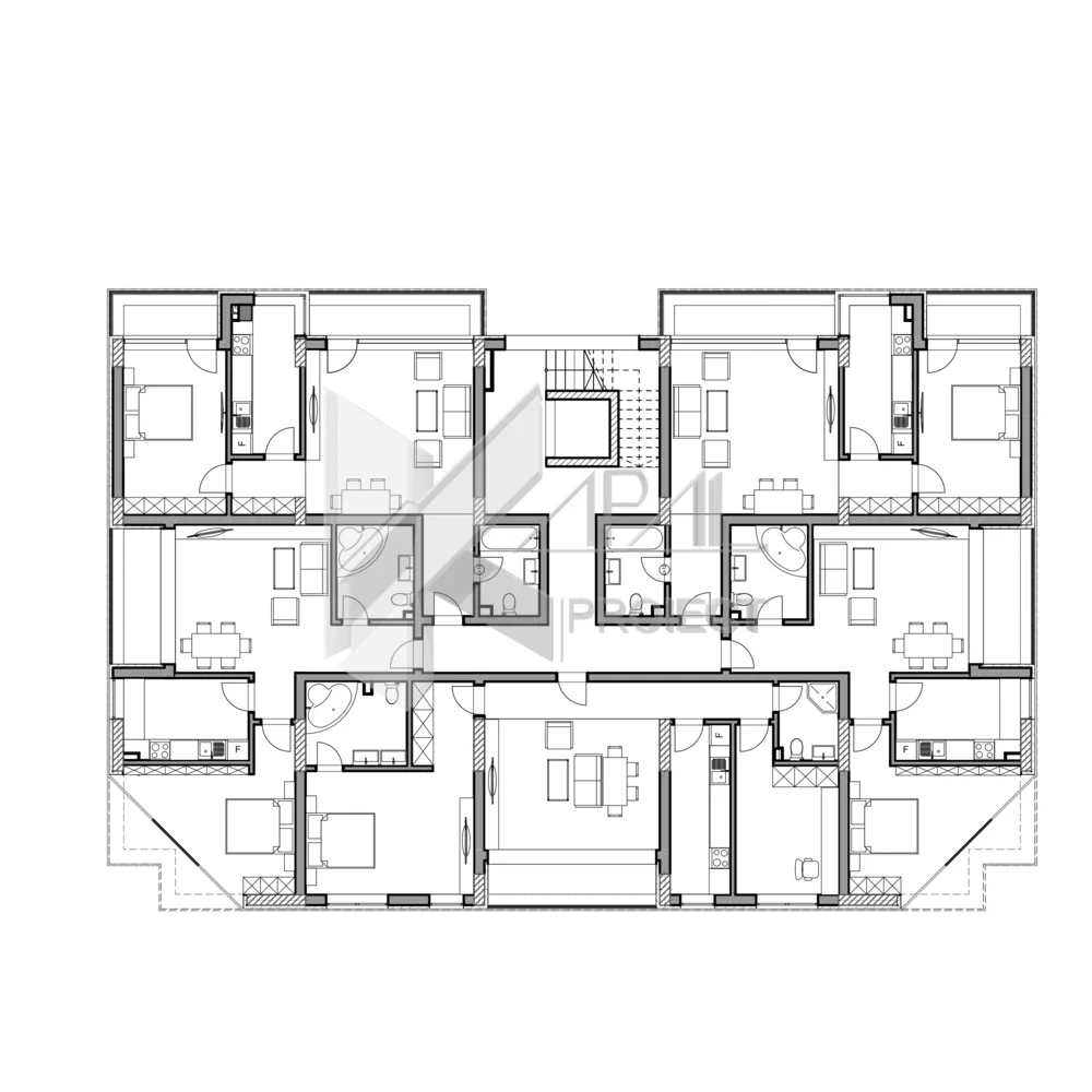
Etaj 1
Casă scară + nod vertical de circulație
Lift
Hol
Apartament tip A – 2 camere (53.52 mp) – 2 unități
Living – 24.31 mp + balcon 5.90 mp
Baie – 5.98 mp
Bucătărie – 8.44 mp
Dormitor – 14.59 mp
Apartament tip B – 2 camere (57.72 mp) – 2 unități
Hol – 4.34 mp
Baie – 4.51 mp
Living – 23.25 mp + balcon 6.62 mp
Bucătărie – 8.16 mp
Hol – 3.21 mp
Dormitor – 14.17 mp + balcon 4.11 mp
Apartament tip C – 3 camere (82.19 mp) – 1 unitate
Hol – 9.10 mp
Baie – 3.86 mp
Dormitor – 12.33 mp
Bucătărie – 8.46 mp
Dormitor – 22.06 mp + baie 6.98 mp
Living – 19.27 mp + balcon 6.34 mp
Etaje 2 – 3
Casă scară
Lift
Hol
Apartament tip A – 2 camere (53.24 mp) – 2 unități
Living – 24.31 mp + balcon 5.90 mp
Baie – 5.98 mp
Bucătărie – 8.48 mp
Dormitor – 14.31 mp + balcon 3.93 mp
Apartament tip B – 2 camere (57.72 mp) – 2 unități
Configurație identică etajului 1
Apartament tip C – 3 camere (82.19 mp) – 1 unitate
Configurație identică etajului 1
Etaj 4
Casă scară + nod vertical
Lift
Hol
Apartament tip D – 2 camere (57.10 mp) – 2 unități
Hol – 3.58 mp
Baie – 4.53 mp
Living – 23.25 mp + balcon 6.62 mp
Bucătărie – 8.16 mp
Hol – 3.21 mp
Dormitor – 14.17 mp + balcon 4.11 mp
Apartament tip E – 3 camere (96.97 mp) – 2 unități
Living – 34.20 mp + balcon 7.90 mp
Baie – 4.33 mp
Dormitor – 19.01 mp + baie 4.33 mp
Dressing – 6.16 mp + balcon 3.02 mp
Dormitor – 14.31 mp + balcon 3.93 mp
Bucătărie – 8.48 mp
Terasă circulabilă
Casă scară + nod vertical
Lift
Uscător cu grup sanitar
Terasă circulabilă
4 zone verzi amenajate














