Proiectul propune realizarea unui imobil de locuințe colective cu regim de înălțime Subsol + Parter + 3 Etaje, conceput pentru a oferi un echilibru între funcționalitate, confort și o expresie arhitecturală contemporană. Clădirea se remarcă prin dinamica volumetrică și prin balcoanele cu forme curbe, care aduc fluiditate compoziției și creează o imagine urbană prietenoasă și atractivă.
La nivelul parterului sunt amplasate spațiile comune și funcțiunile necesare bunei administrări a imobilului: zona de acces, holul principal, spațiul destinat depozitării deșeurilor, camera de administrație, grup sanitar și nucleul vertical de circulație cu lift și scară. Tot la parter sunt prevăzute trei apartamente, fiecare configurat pentru a oferi spații bine proporționate, iluminare naturală optimă și o organizare eficientă a zonelor de zi și de noapte.
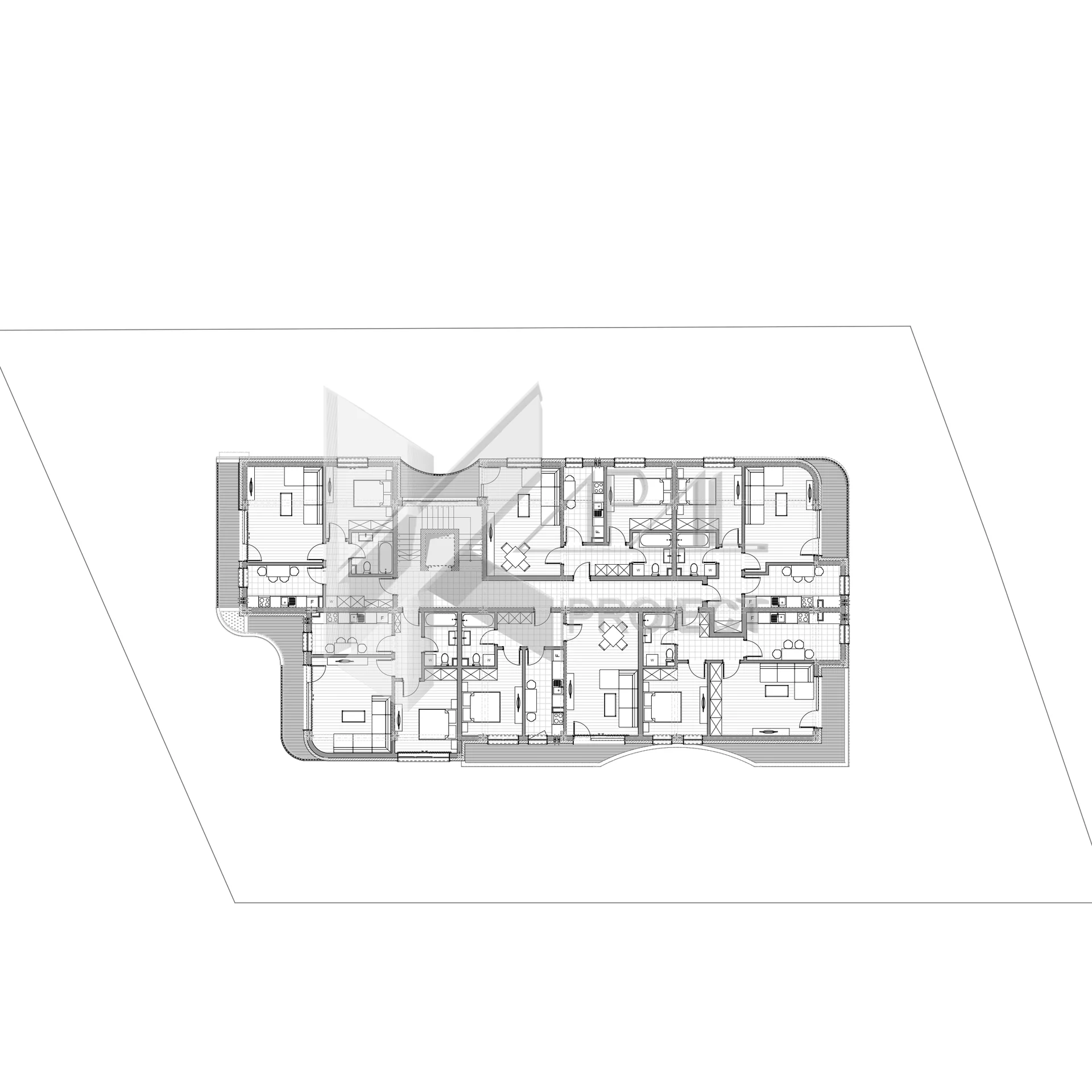
Etajele 1–3 adăpostesc apartamente variate ca suprafață și compartimentare, adaptate diferitelor tipuri de utilizatori. Spațiile de zi sunt generoase și bine conectate cu exteriorul prin balcoane ample, iar compartimentările urmăresc separarea clară a zonelor funcționale, oferind confort și flexibilitate în utilizare. Prezența balcoanelor contribuie atât la calitatea spațiilor interioare, cât și la dinamica fațadelor.
Din punct de vedere arhitectural, clădirea adoptă un limbaj modern, cu volume clare și accente organice. Fațadele utilizează tencuieli decorative în nuanțe de alb, gri deschis și gri închis, creând contraste echilibrate și evidențiind diferențierea registrelor volumetrice. Parterul este tratat cromatic într-o nuanță mai închisă, accentuând baza clădirii, în timp ce nivelurile superioare sunt mai luminoase, ceea ce conferă volumului un aspect suplu și elegant. Balcoanele sunt prevăzute cu balustrade din sticlă securizată și mână curentă din aluminiu, contribuind la imaginea modernă și la transparența ansamblului.
Formele curbe ale balcoanelor creează o legătură subtilă cu contextul urban al unui oraș cu deschidere către mare, sugerând mișcarea și fluiditatea valurilor, și oferind clădirii o identitate proprie în peisajul construit.
Imobilul are o lungime de 20,35 m și o lățime de 15,75 m, cu o amprentă la sol de 301 mp. Suprafața desfășurată totală este de 2.173 mp, din care aproximativ 568 mp reprezintă suprafața balcoanelor și a spațiilor tehnice, iar suprafața utilă totală este de 1.571 mp. Acoperișul este realizat sub formă de terasă necirculabilă cu zone înierbate, contribuind la integrarea clădirii într-un cadru urban sustenabil.












