Locuința propusă este o clădire individuală cu regim de înălțime Parter + Etaj, concepută pentru a răspunde cerințelor actuale de locuire eficientă pe terenuri cu suprafețe reduse, fără a compromite confortul și calitatea spațiului interior. Compartimentarea este clară și funcțională, zona de zi fiind organizată la parter, iar spațiile de odihnă la etaj, asigurând o separare firească între activitățile cotidiene și zona privată.
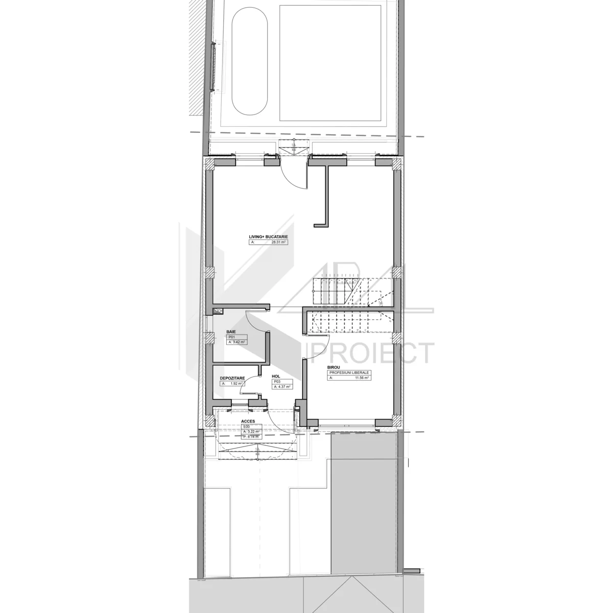
La parter sunt dispuse accesul și holul de primire, spațiile de depozitare, o baie, un birou ce poate fi utilizat și ca spațiu multifuncțional, precum și zona principală de zi, compusă din living, loc de luat masa și bucătărie într-un spațiu deschis, luminos și eficient organizat. Nodul vertical de circulație asigură legătura directă cu etajul.
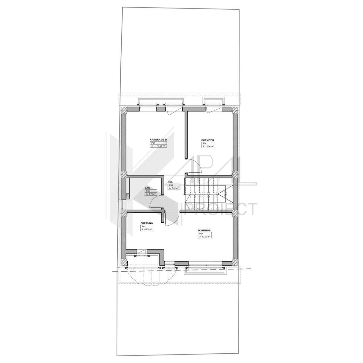
Nivelul superior este dedicat zonei de noapte și relaxare, fiind alcătuit dintr-un hol de distribuție, o baie comună, două dormitoare și o cameră de zi suplimentară, ce poate funcționa ca spațiu de relaxare, hobby sau birou. Dormitorul principal beneficiază de dressing propriu, sporind confortul utilizării zilnice.
Clădirea se remarcă prin proporțiile sale compacte, care permit amplasarea facilă pe loturi de dimensiuni mici sau în zone urbane dens construite. Imaginea arhitecturală este una elegantă și discretă, cu volume curate și detalii atent controlate. Fațadele deschise la culoare sunt puse în valoare de tâmplăria și balustradele metalice în nuanțe închise, creând un contrast plăcut și modern. Finisajele utilizate, în tonuri de alb și bej, contribuie la obținerea unei imagini luminoase și atemporale.
Construcția are dimensiuni reduse, cu o lungime de 9,60 m și o lățime de 7,225 m, o amprentă la sol de 66,10 mp și o suprafață desfășurată totală de 132,94 mp, oferind o suprafață utilă de 96,37 mp. Acoperirea este realizată cu o șarpantă în două ape ascunsă, soluție ce păstrează aspectul modern al volumului și asigură o integrare armonioasă în contextul urban sau rezidențial existent.












