Această locuință individuală este concepută într-o abordare clasică reinterpretată, bazată pe simplitatea volumelor, proporții echilibrate și o arhitectură curată, lipsită de decorații excesive. Regimul de înălțime Parter + Etaj 1 conferă clădirii o scară domestică plăcută, potrivită pentru o familie, iar organizarea funcțională urmărește separarea clară între zona de zi și zona de noapte.
Parterul este dedicat spațiilor de zi și funcțiunilor auxiliare, fiind organizat pentru a asigura o circulație firească și un grad ridicat de confort. Zona de living și dining este generoasă și beneficiază de deschideri ample către terasă, favorizând lumina naturală și relația cu exteriorul. Bucătăria este poziționată astfel încât să fie ușor accesibilă din zona de zi, iar biroul oferă posibilitatea desfășurării activităților profesionale într-un spațiu separat.
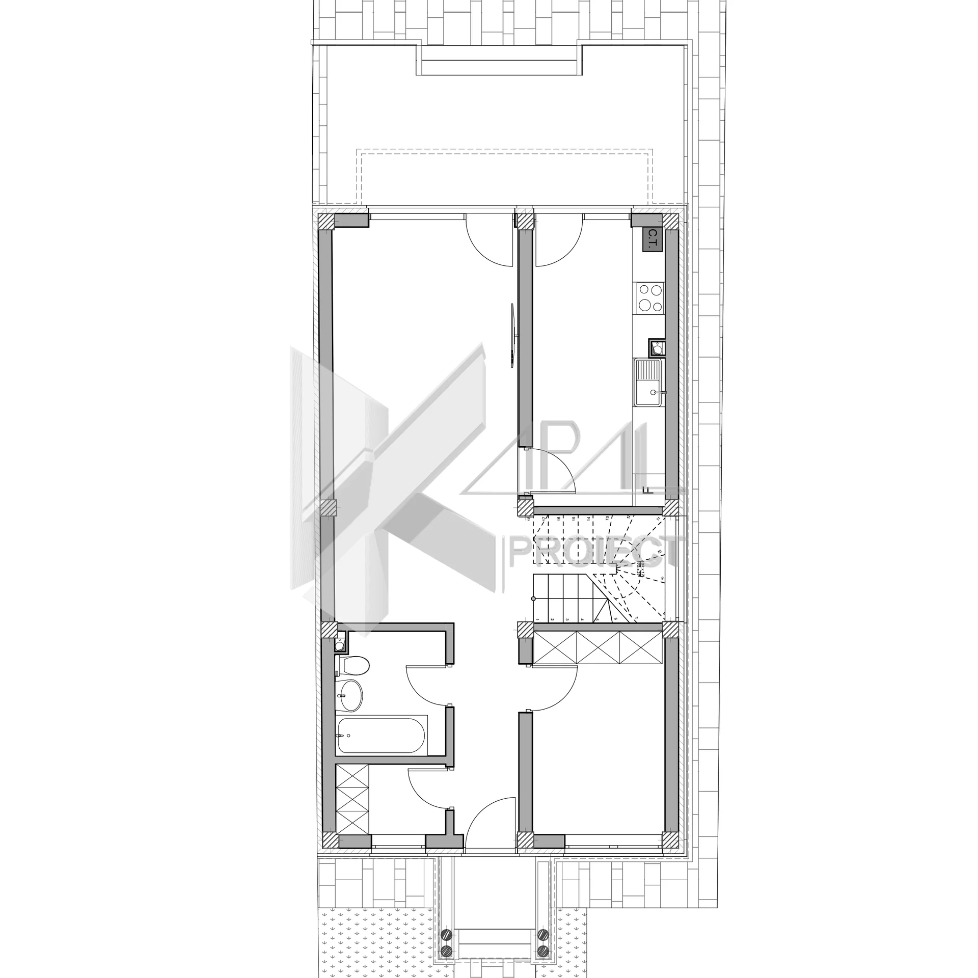
Etajul 1 adăpostește zona de noapte, formată din trei dormitoare, dintre care unul matrimonial cu baie proprie, asigurând intimitate și confort. Două dintre dormitoare sunt conectate prin intermediul unui balcon comun, care adaugă valoare spațiilor și creează o legătură suplimentară cu exteriorul.
Clădirea are o lungime maximă de 11,90 m și o lățime de 6,85 m, o amprentă la sol de 81,08 mp, o suprafață desfășurată totală de 185,88 mp și o suprafață utilă de 118,24 mp. Acoperișul de tip șarpantă completează imaginea unei locuințe clasice, coerente și bine proporționate.
Parter
Hol – 4.67 mp
Spațiu tehnic – 2.63 mp
Baie – 4.59 mp
Birou – 9.17 mp
Nod vertical de circulație
Bucătărie – 12.49 mp
Living + loc de luat masa – 25.52 mp
Terasă – 18.86 mp
Etaj 1
Nod vertical de circulație
Hol – 4.48 mp
Balcon comun – 5.29 mp
Dormitor 1 – 14.08 mp
Dormitor 2 – 15.07 mp
Dormitor matrimonial – 17.11 mp
Baie proprie – 4.31 mp












