Această locuință individuală cu regim de înălțime Parter + Etaj este concepută pentru a îmbina eleganța arhitecturii clasice cu cerințele stilului de viață contemporan. Proporțiile atent studiate, detaliile decorative discrete și volumetria echilibrată oferă o imagine rafinată și atemporală, adaptată contextului rezidențial modern.
Fațadele sunt tratate într-un limbaj clasic reinterpretat, evidențiat prin ancadramente decorative, cornișe profilate și ferestre arcuite care adaugă ritm compoziției. Balconul susținut de coloane și registrul ornamental superior accentuează verticalitatea volumului și creează un punct focal elegant al compoziției arhitecturale.
Accesul principal este marcat de un portal modern integrat într-un cadru minimalist cu panouri verticale decorative din lemn, element ce creează contrast între stilul clasic al volumului și accentele contemporane. Împrejmuirea joasă și vegetația ornamentală completează imaginea ansamblului, contribuind la integrarea armonioasă în ambient.
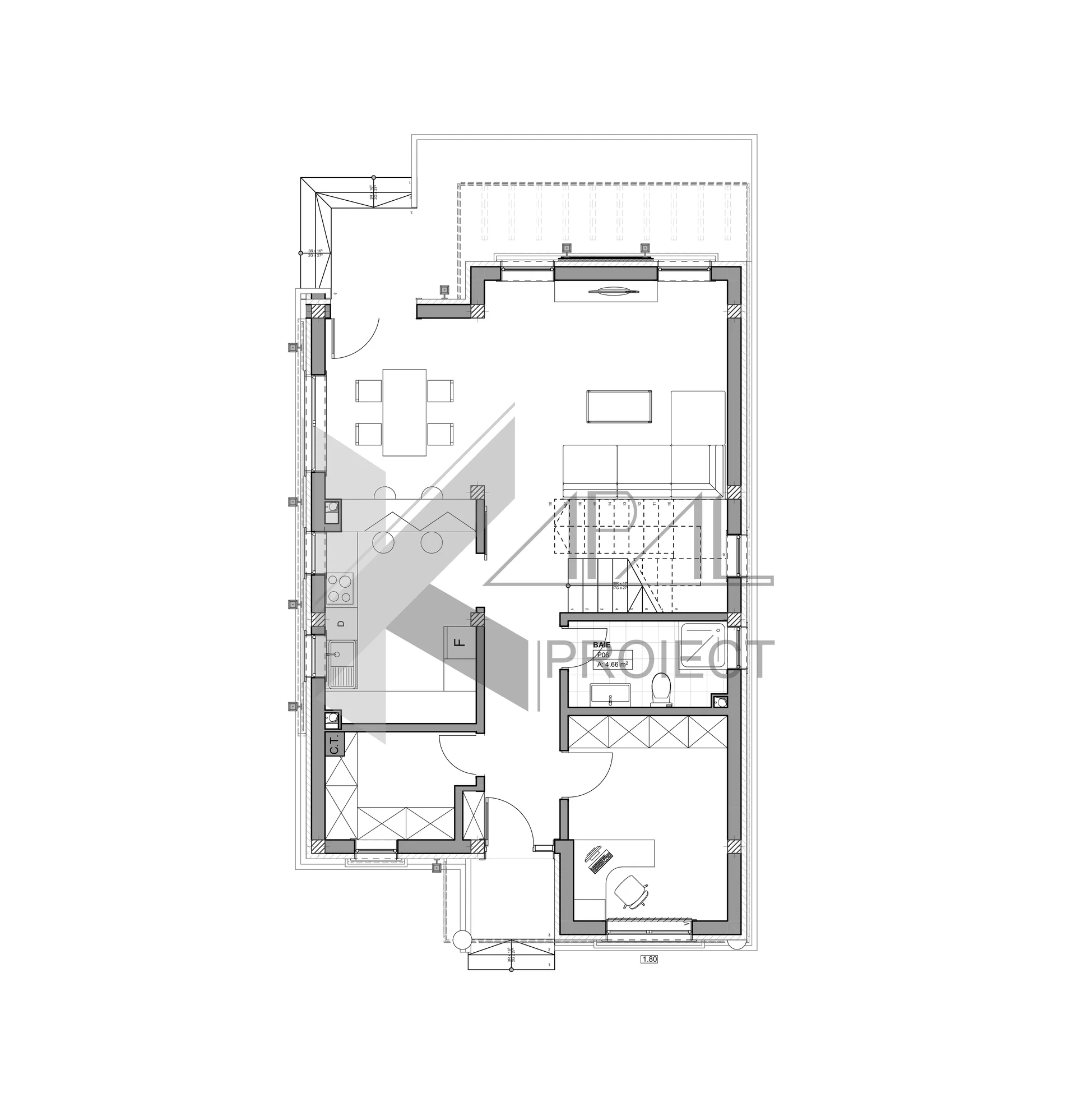
Organizarea funcțională a fost gândită pentru eficiență, confort și flexibilitate. Zona de zi este amplă și luminoasă, cu legătură directă către terasă, iar bucătăria poate fi deschisă spre dining prin realizarea unui bar, oferind multiple variante de amenajare. Biroul de la parter poate fi transformat într-un al patrulea dormitor, adaptând locuința la nevoile viitoare ale familiei.
Etajul este dedicat zonei de noapte și oferă dormitoare generoase, fiecare cu iluminare naturală optimă și acces la balcoane. Organizarea asigură intimitate, funcționalitate și circulații fluide.
Proiectul este ideal pentru o familie cu doi copii care își dorește o locuință elegantă, bine compartimentată și eficientă energetic, cu spații aerisite și lumină naturală abundentă.
Volumetria simplă, proporțiile clasice și integrarea elementelor decorative moderne creează un echilibru vizual între tradiție și actualitate — o soluție potrivită atât pentru zone rezidențiale noi, cât și pentru contexte urbane consolidate.
Parter
Windfang — 3.16 mp
Hol — 4.63 mp
Spațiu tehnic — 5.20 mp
Birou — 11.06 mp
Baie — 4.66 mp
Nod vertical circulație
Bucătărie — 9.86 mp
Living + dining — 30.60 mp
Terasă — 17.02 mp
Etaj 1
Nod vertical circulație
Hol — 3.92 mp
Baie — 4.76 mp
Dormitor 1 — 14.68 mp
Dormitor 2 — 14.98 mp
Balcon — 7.49 mp
Dormitor matrimonial — 14.56 mp
Baie matrimonială — 4.71 mp
Dressing — 4.76 mp
Balcon — 4.72 mp











