Acest proiect de locuință modernă cu regim de înălțime Parter + Etaj este conceput pentru familii care caută un echilibru între estetică contemporană, funcționalitate și eficiență spațială. Volumetria curată, liniile orizontale și jocul de materiale creează o arhitectură actuală, elegantă și bine proporționată.
Fațadele sunt tratate printr-o compoziție modernă de suprafețe albe și bej deschis, accentuate de panouri din placaj de piatră gri și inserții de HPL în nuanță mahon. Accesul principal este evidențiat prin cadre geometrice și riflaje verticale decorative, realizate din elemente structurale din beton armat finisate alb, care oferă adâncime vizuală și un caracter distinct volumului.
Ferestrele ample și suprafețele vitrate mari asigură iluminare naturală optimă pe tot parcursul zilei, în timp ce balcoanele cu balustrade transparente conferă fațadelor lejeritate și continuitate vizuală. Terasa de la parter extinde zona de zi spre exterior, generând un spațiu ideal pentru relaxare și socializare.
Compartimentarea este gândită ergonomic, cu separarea clară a zonei de zi de zona de noapte. Proiectul permite flexibilitate funcțională — biroul de la parter poate deveni un dormitor suplimentar, adaptând locuința la nevoile viitoare ale familiei.
Prin proporții echilibrate, materiale contemporane și soluții spațiale inteligente, această locuință reprezintă un exemplu de arhitectură rezidențială modernă optimizată pentru confort, lumină naturală și eficiență.
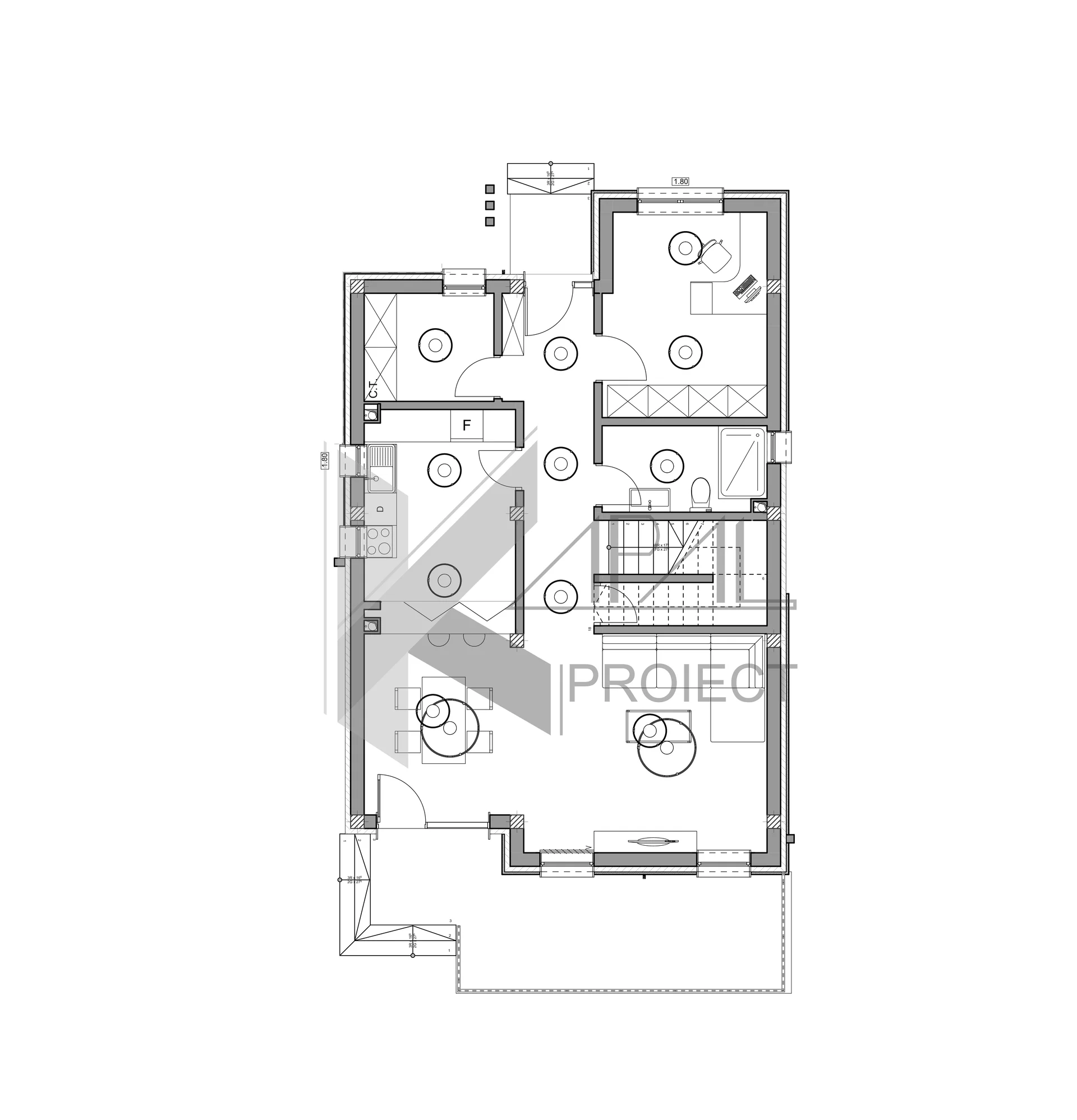
Parter
Windfang — 3.40 mp
Hol — 4.16 mp
Spațiu tehnic — 4.80 mp
Birou — 11.29 mp
Baie — 4.82 mp
Bucătărie — 9.86 mp
Living + dining — 30.64 mp
Depozitare sub scară — 2.48 mp
Terasă — 17.02 mp
Nod vertical de circulație
Etaj 1
Hol — 3.77 mp
Baie — 4.76 mp
Dormitor 1 — 14.58 mp
Dormitor 2 — 15.09 mp
Dormitor matrimonial — 14.40 mp
Baie matrimonială — 4.69 mp
Dressing — 4.76 mp
Balcon 1 — 8.10 mp
Balcon 2 — 5.69 mp
Nod vertical de circulație












