Locuința propusă este o casă individuală dezvoltată pe subsol, parter și mansardă, concepută într-un stil clasic reinterpretat, care pune accent pe proporții echilibrate, spații generoase și o organizare clară a funcțiunilor, adaptată unei familii ce își dorește confort și zone dedicate activităților cotidiene și recreative.
La nivelul subsolului sunt organizate spațiile tehnice și zonele de depozitare, separate de zona de locuire pentru un confort sporit la nivelurile superioare. Accesul se realizează prin nodul vertical de circulație și conduce către un hol generos din care sunt distribuite centrala termică și mai multe spații tehnice, destinate echipamentelor și depozitării, asigurând funcționarea eficientă a întregii locuințe.
Parterul reprezintă nivelul principal de locuire, organizat astfel încât să ofere atât spații private, cât și zone ample pentru viața de zi cu zi. Din holul principal se realizează accesul către dormitorul de la parter, prevăzut cu baie proprie, dar și către un birou de profesiuni liberale, dotat de asemenea cu baie proprie, permițând desfășurarea activităților profesionale într-o zonă separată de restul casei. Parterul mai include un dressing, o baie suplimentară și zonele de zi, formate dintr-un living generos și o bucătărie spațioasă, gândite pentru întâlniri de familie și activități sociale. Circulația este completată de un hol secundar și de accesul către subsol.
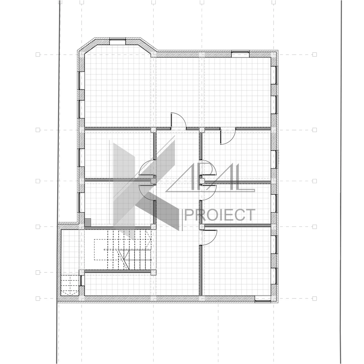
La nivelul mansardei sunt amenajate spații destinate relaxării și activităților recreative, oferind flexibilitate în utilizare. Aici sunt prevăzute două camere hobby de dimensiuni generoase, alături de alte camere ce pot fi folosite ca dormitoare sau spații multifuncționale, completate de dressing și baie. Acest nivel oferă posibilitatea adaptării spațiilor în funcție de nevoile familiei.
Din punct de vedere arhitectural, clădirea se remarcă printr-un limbaj clasic reinterpretat, evidențiat prin marcarea soclului și a registrului superior, utilizarea ancadramentelor fine la ferestre și prin împărțirea tradițională a tâmplăriilor. Fațadele sunt finisate cu placaj de piatră gri la nivelul soclului, tencuială decorativă crem și zone accentuate cu piatră decorativă în nuanțe apropiate, compoziția fiind completată de tâmplării PVC de culoare maro cu geam termoizolant. Acoperișul în șarpantă de lemn cu învelitoare din țiglă gri întărește caracterul clasic al locuinței. Structura de rezistență este mixtă, realizată din zidărie portantă din BCA întărită cu elemente din beton armat, completată de cadre din beton armat, asigurând stabilitate și durabilitate construcției.
Locuința are o lungime maximă de 18,75 m și o lățime maximă de 11,20 m, o suprafață construită de 202,88 mp și o suprafață desfășurată totală de 558,69 mp, din care 165,39 mp reprezintă suprafața balcoanelor. Suprafața utilă totală este de 408,20 mp, iar acoperișul este realizat în sistem șarpantă de lemn cu învelitoare din țiglă gri, soluție potrivită pentru integrarea armonioasă a construcției într-un context rezidențial clasic.













