Acest proiect este o locuință individuală cu o prezență elegantă și atemporală, gândită pentru o familie numeroasă care își dorește confort, spații generoase și o ambianță clasică rafinată. Volumetria compactă este accentuată de terasele ample ce oferă puncte spectaculoase de belvedere către împrejurimi. Limbajul arhitectural mizează pe ordine, ritm și proporție, cu ornamente discrete, fără supraîncărcări, astfel încât fațadele rămân curate și coerente.
Paleta de materiale propune tencuială în nuanțe deschise (bej și alb), în dialog cu piatra naturală – o combinație care îmbină căldura cromatică cu robustețea materială. Ancadramentele ferestrelor, balustradele și cornișele subtile consolidează caracterul clasic, în vreme ce suprafețele vitrate dimensionate echilibrat asigură lumină naturală din abundență. Deasupra, șarpanta în patru ape completează compoziția, oferind o siluetă ordonată și durabilă.
Funcțional, casa este proiectată pentru fluxuri zilnice eficiente: zona de zi deschisă, spațiu tehnic separat, spălătorie la etaj, depozitare dedicată și băi individuale pentru fiecare dormitor. Anexa de loisir adaugă valoare experienței locuirii – un loc perfect pentru socializare, hobby-uri sau relaxare, în familie și cu prietenii.
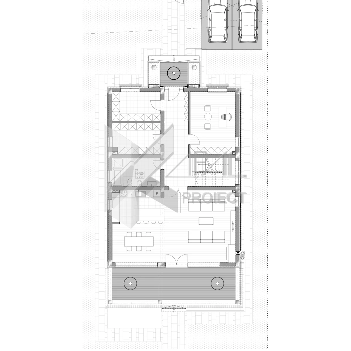
Parter
Acces – 7,64 mp
Hol – 15,69 mp; circulații clare către zona de zi și birou
Dressing – 9,80 mp; depozitare la intrare
Spațiu tehnic – 10,45 mp; utilități și echipamente separate
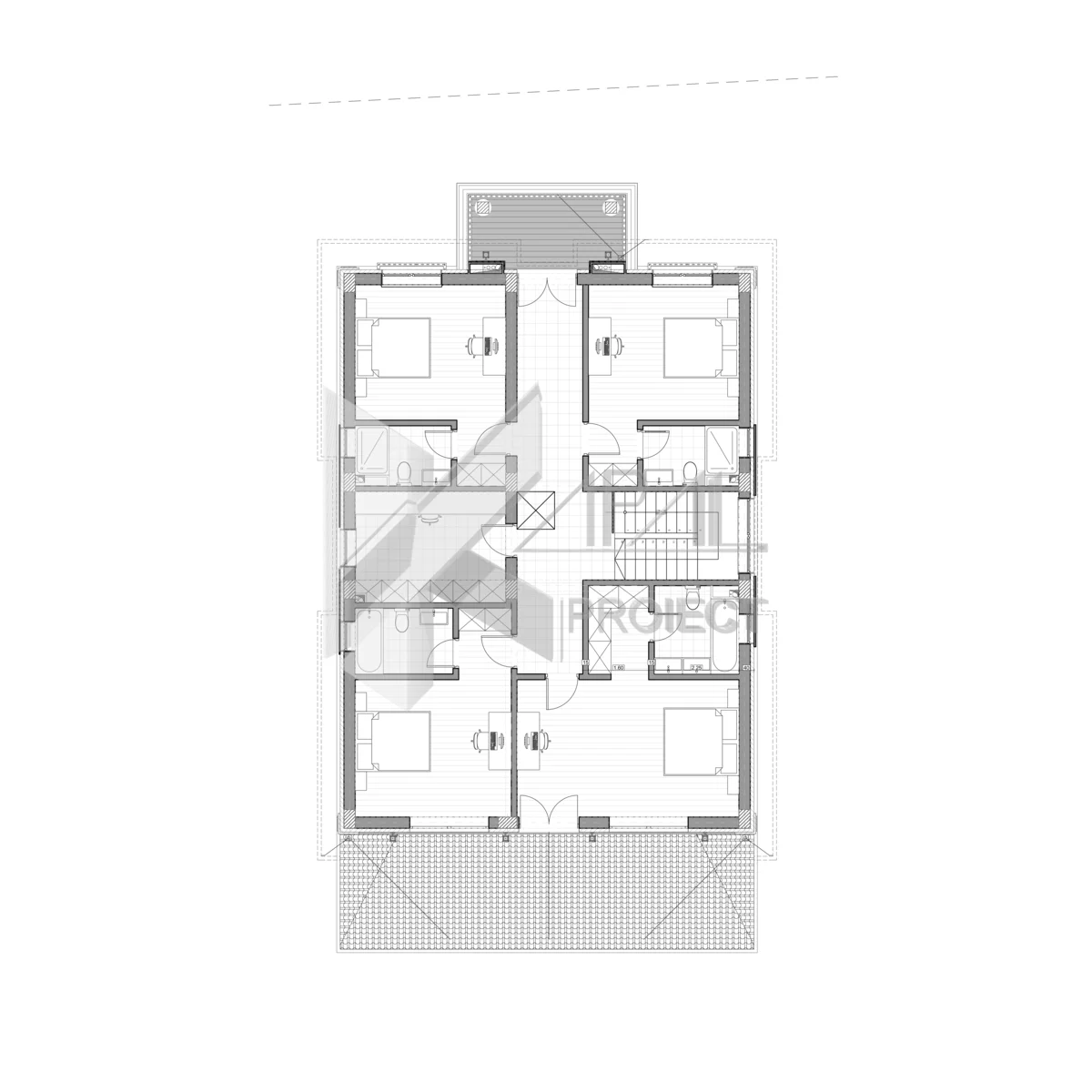
Etaj 1
Hol – 26,93 mp; distribuție fluentă către dormitoare
Spălătorie – 11,89 mp; utilități separate, eficiență în mentenanță
Dormitor 1 – 16,67 mp + baie 3,82 mp + balcon 7,64 mp
Dormitor 2 – 16,68 mp + baie 3,82 mp
Dormitor matrimonial – 19,45 mp + baie 4,54 mp
Dormitor 3 – 18,20 mp + baie 4,55 mp
Terasă – 30,51 mp; cadru de relaxare și belvedere












