Proiectul propune o clădire cu regim de înălțime Parter + 2 Etaje, având funcțiune mixtă – spațiu comercial la parter și locuință amplă desfășurată pe toate nivelurile. Arhitectura este tratată într-un stil clasic reinterpretat, cu proporții bine echilibrate, registre verticale ordonate și detalii decorative care conferă eleganță și rafinament volumului construit.
Fațadele sunt compuse din tencuieli în nuanțe de alb și bej deschis, completate de profile decorative discrete, ancadramente și cornișe care subliniază nivelurile clădirii. Balcoanele cu balustrade din sticlă securizată aduc un contrast contemporan și oferă transparență compoziției clasice.
Parterul este organizat astfel încât să asigure o separare clară între zona comercială, orientată către stradă și puternic vitrată, și zona de locuire, care beneficiază de spații confortabile și bine proporționate. Accesul către nodul vertical se realizează din holul central, asigurând o circulație logică și eficientă.
Etajele sunt dedicate zonei de noapte, fiecare nivel fiind organizat cu dormitoare ample, băi proprii și zone de dressing sau depozitare, răspunzând cerințelor unei familii numeroase sau ale unui beneficiar care apreciază confortul și spațiile generoase.
Prin expresia arhitecturală, funcționalitate și integrarea armonioasă a spațiului comercial, clădirea devine o prezență urbană elegantă, potrivită pentru zone centrale sau de colț.
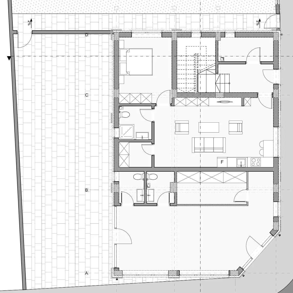
Parter – Zonă comercială și locuire
Spațiu comercial – 35.73 mp
Depozitare spațiu comercial – 8.15 mp
Grup sanitar A – 2.94 mp
Grup sanitar B – 2.85 mp
Living + bucătărie – 28.91 mp
Depozitare – 2.93 mp
Baie – 3.84 mp
Dormitor A – 12.44 mp
Hol acces – 5.04 mp
Nod vertical de circulație
Spațiu tehnic – 4.71 mp
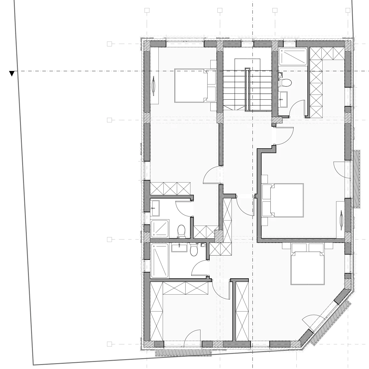
Etaj 1 – Zonă de noapte
Dormitor matrimonial A – 23.22 mp
Dressing – 10.92 mp
Baie – 4.45 mp
Balcon – 0.78 mp
Dormitor B – 26.84 mp
Baie – 4.50 mp
Balcon – 0.81 mp
Cameră A – 10.77 mp
Depozitare – 2.81 mp
Cameră B – 10.79 mp
Depozitare – 2.76 mp
Hol distribuție – 6.99 mp
Hol secundar – 3.36 mp
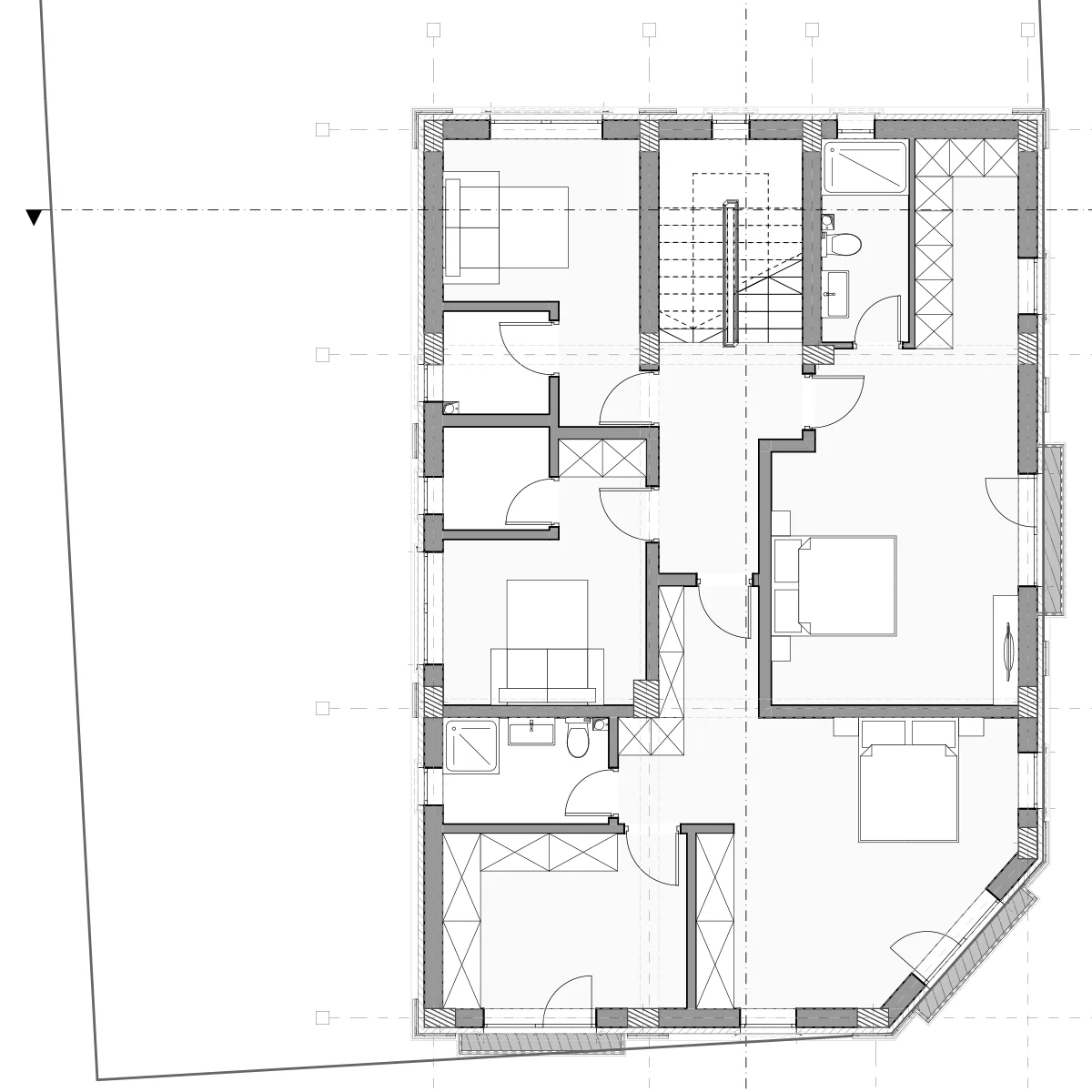
Etaj 2 – Zonă de noapte
Dormitor matrimonial – 23.22 mp
Dressing – 10.92 mp
Baie – 4.45 mp
Balcon – 0.78 mp
Dormitor C – 26.79 mp
Baie – 4.50 mp
Balcon – 0.81 mp
Dormitor D – 24.77 mp
Baie – 3.61 mp
Baie comună – 4.45 mp
Hol distribuție – 7.63 mp













