K020 este o locuință clasică reinterpretată în registru contemporan, gândită pentru familii care apreciază eleganța atemporală și funcționalitatea clară. Compoziția volumetrică este echilibrată, iar detaliile discrete — soclu din piatră, marcarea registrului inferior, cornișă profilată, portal de intrare cu stâlpi și ancadramente la ferestre — conferă casei prestanță fără a încărca fațadele.
Planul funcțional separă riguros zonele: tehnic la subsol, viața de zi la parter, intimitatea la etaj, iar timpul liber la mansardă. Livingul de 30,68 mp se deschide către o terasă de 22,97 mp, creând o relație firească interior–exterior pentru socializare. Bucătăria închisă (18,46 mp) asigură confort acustic și olfactiv, iar biroul (15,41 mp) permite lucru de acasă sau studiu în liniște. La etaj, fiecare dormitor dispune de baie proprie, iar matrimonialul beneficiază și de dressing (11,07 mp) și balcon generos (11,99 mp).
Materialele și culorile — tencuieli bej & alb, piatră decorativă maro, ornamente de ipsos alb — alcătuiesc o paletă caldă, rafinată, pusă în valoare de acoperișul din țiglă metalică maro. Rezultă un proiect coerent, eficient și reprezentativ pentru un stil clasic contemporan durabil.
Subsol
Nod vertical de circulație
Spațiu tehnic 1 – 55,75 mp
Spațiu tehnic 2 – 18,97 mp
Spațiu tehnic 3 – 21,97 mp
Subsolul adăpostește echipamentele și zonele auxiliare, eliberând nivelurile superioare pentru funcțiuni de locuire.
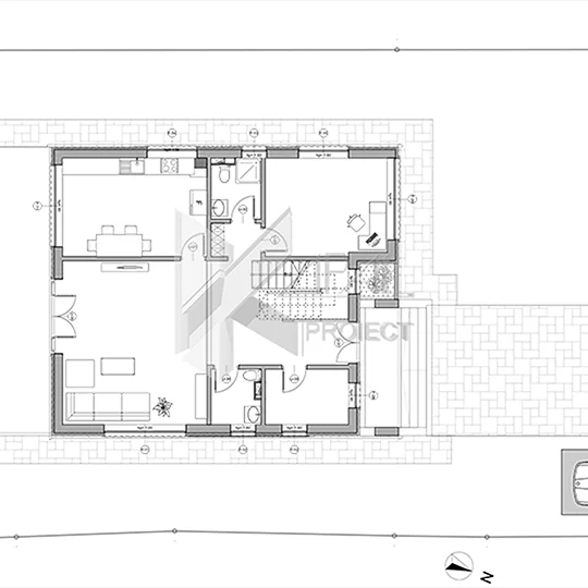
Parter
Hol – 14,87 mp
Nod vertical de circulație
Spațiu tehnic – 5,99 mp
Baie – 3,60 mp
Birou – 15,41 mp + baie – 3,96 mp
Living – 30,68 mp cu deschidere spre
Bucătărie închisă – 18,46 mp
Terasa – 22,97 mp
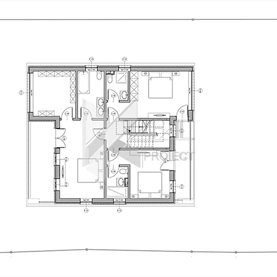
Etaj 1
Nod vertical de circulație & hol – 3,36 mp
Dormitor 1 – 17,57 mp + baie – 3,63 mp + ieșire balcon 8,32 mp
Dormitor 2 – 12,93 mp + baie – 3,96 mp
Dormitor matrimonial – 19,97 mp + baie – 7,07 mp + dressing – 11,07 mp + balcon – 11,99 mp
Fiecare dormitor are baie proprie; suită matrimonială cu dressing separat și balcon generos pentru confort sporit.













