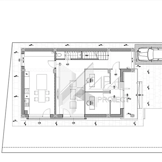
Parter
Hol acces – 6,32 mp
Birou 1 – 7,70 mp
Birou 2 – 7,77 mp
Hol secundar – 9,33 mp
Living – 22,47 mp
Bucătărie închisă – 27,09 mp
Scară de acces la etaj
Grup sanitar sub scară – 2,64 mp
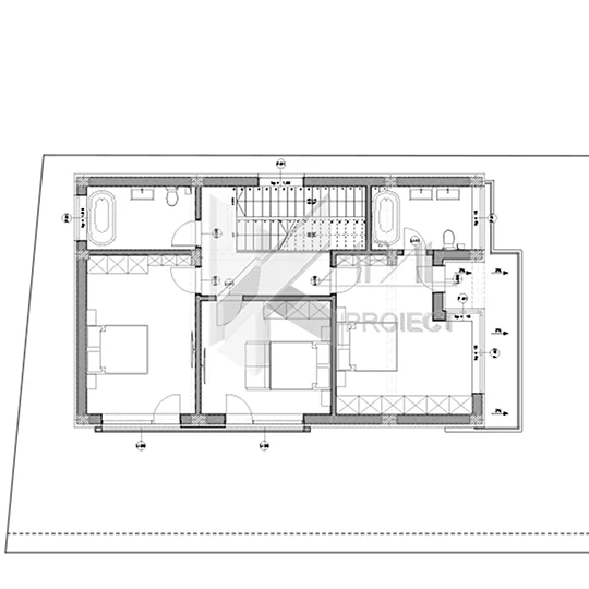
Etaj 1
Hol – 8,86 mp + scările
Baie comună – 7,39 mp
Dormitor – 19,10 mp
Dormitor – 16,10 mp
Dormitor matrimonial – 20,44 mp cu baie proprie – 6,87 mp
Balcon aferent matrimonialului – 9,78 mp
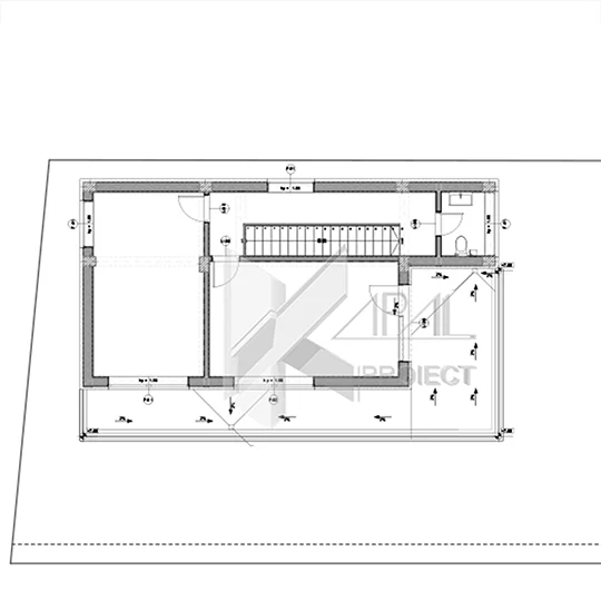
Etaj 2
Hol – 10,28 mp
Grup sanitar – 2,94 mp
Cameră hobby 1 – 21,22 mp
Cameră hobby 2 – 22,77 mp
Terasă neacoperită













