Această casă modernă este concepută ca imobil cuplat, cu regim de înălțime Parter + 2 Etaje, având o organizare funcțională clară și orientarea principală a spațiilor către curte. Volumetria este accentuată prin balcoane generoase care marchează orizontalitatea clădirii, iar pergola de la ultimul nivel completează compoziția arhitecturală.
Parterul include atât spații de zi, cât și camere cu acces secundar din curte, ceea ce permite o utilizare flexibilă a locuinței. Etajele superioare adăpostesc camere și dormitoare cu băi, majoritatea beneficiind de balcoane sau terase. Finisajele în alb și gri, completate de placaje din lemn, susțin caracterul contemporan al clădirii.
Clădirea are o suprafață desfășurată totală de 402,26 mp, o suprafață utilă de 233,94 mp și este acoperită cu terasă necirculabilă.
Parter
Acces principal (din stradă)
Hol – 3.19 mp
Scară către etaj
Living + bucătărie – 19.56 mp
Birou – 11.78 mp
Baie – 4.16 mp
Acces secundar (din curte)
Cameră – 19.22 mp
Baie – 3.85 mp
Dormitor – 15.15 mp
Baie proprie – 5.23 mp
Terasă – 25.00 mp
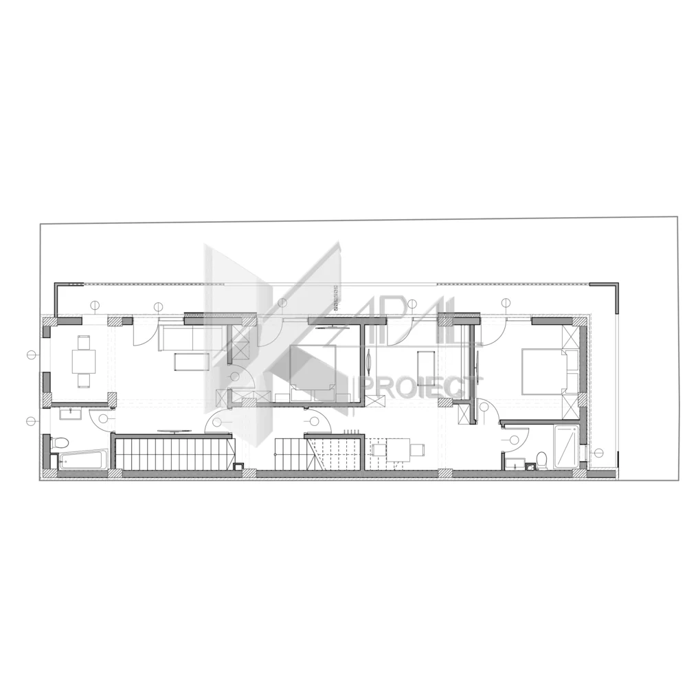
Etaj 1
Hol – 4.16 mp
Scară
Unitate 1
Cameră – 20.73 mp
Baie – 4.44 mp
Dormitor – 11.99 mp
Balcon – 9.47 mp
Unitate 2
Cameră – 21.75 mp
Baie – 4.06 mp
Dormitor – 12.02 mp
Balcon – 14.45 mp
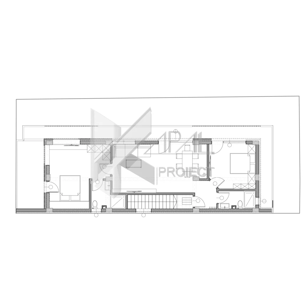
Etaj 2
Hol – 1.36 mp
Cameră – 30.51 mp
Baie – 3.95 mp
Dormitor – 12.38 mp
Dormitor – 19.96 mp
Baie proprie – 4.51 mp
Terasă – 34.66 mp













