Acest proiect propune extinderea, etajarea și modernizarea unei construcții existente parter, realizată din chirpici, transformând-o într-o locuință contemporană cu regim de înălțime Parter + 2 Etaje. Intervenția urmărește valorificarea amplasamentului și obținerea unor spații generoase, bine iluminate, printr-o volumetrie articulată ce generează terase și balcoane.
Parterul este organizat cu separarea zonei publice, orientată către stradă, de zona privată, deschisă către curtea din spate. Etajele adaugă spații de dormit și zone de relaxare, culminând cu un living amplu la etajul 2, cu deschidere pe trei fațade. Finisajele în alb și gri, completate de placaje din piatră gri, susțin caracterul modern al intervenției.
Locuința are o suprafață desfășurată totală de 415,00 mp, o suprafață utilă de 229,81 mp și este acoperită cu șarpantă ascunsă și învelitoare din tablă cutată cu profil trapez.
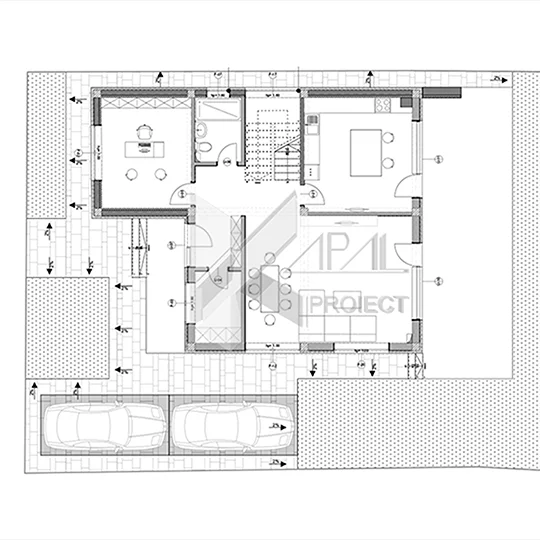
Parter
Public (spre stradă): terasă de acces 8,02 mp, windfang 3,60 mp, spațiu tehnic 5,04 mp, hol 6,81 mp, birou 15,01 mp, baie 4,50 mp, nod vertical de circulație.
Privat (spre curte): bucătărie închisă 18,67 mp și living 32,15 mp, ambele cu ieșire pe terasă 39,20 mp.
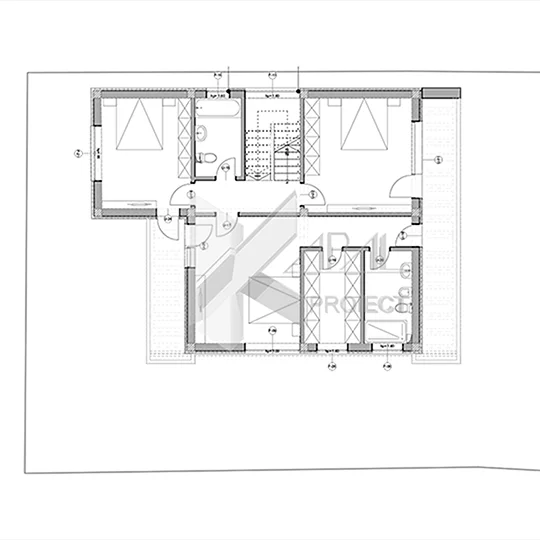
Etaj 1
Nod vertical & hol 5,13 mp
Baie 5,49 mp
Dormitor 1 – 15,01 mp
Dormitor 2 – 18,67 mp
Dormitor matrimonial – 25,51 mp cu dressing 7,92 mp și baie 6,66 mp
Două balcoane: unul spre stradă, unul spre curtea din spate
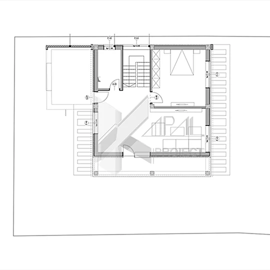
Etaj 2
Nod vertical & baie 5,49 mp
Living 35,48 mp cu deschidere pe trei fațade
Dormitor 18,67 mp
Două terase circulabile













