Locuința propusă este o casă modernă dezvoltată pe subsol, parter și etaj, concepută pentru a oferi spații generoase și o organizare clară între zonele tehnice, cele de zi și zona de noapte. Arhitectura urmărește o imagine contemporană, bazată pe volume curate și gesturi minimaliste, rezultând o clădire elegantă, dar în același timp primitoare.
Subsolul este dedicat funcțiunilor tehnice și depozitării, integrând un garaj generos, spații multiple de depozitare și camera tehnică, asigurând astfel degajarea nivelurilor superioare și o bună organizare a întregii locuințe.
La parter se dezvoltă zona de zi, gândită ca un spațiu deschis și luminos. Accesul se face printr-o terasă care conduce către zona centrală a casei, unde bucătăria, spațiile de circulație și livingul generos comunică fluent între ele. Livingul se deschide către terasa exterioară descoperită, concepută ca o extensie naturală a spațiului interior și loc ideal pentru relaxare sau întâlniri cu familia și prietenii. Pe acest nivel este amplasat și un dormitor cu dressing și baie proprie, potrivit pentru oaspeți sau pentru utilizare permanentă la nivelul parterului.
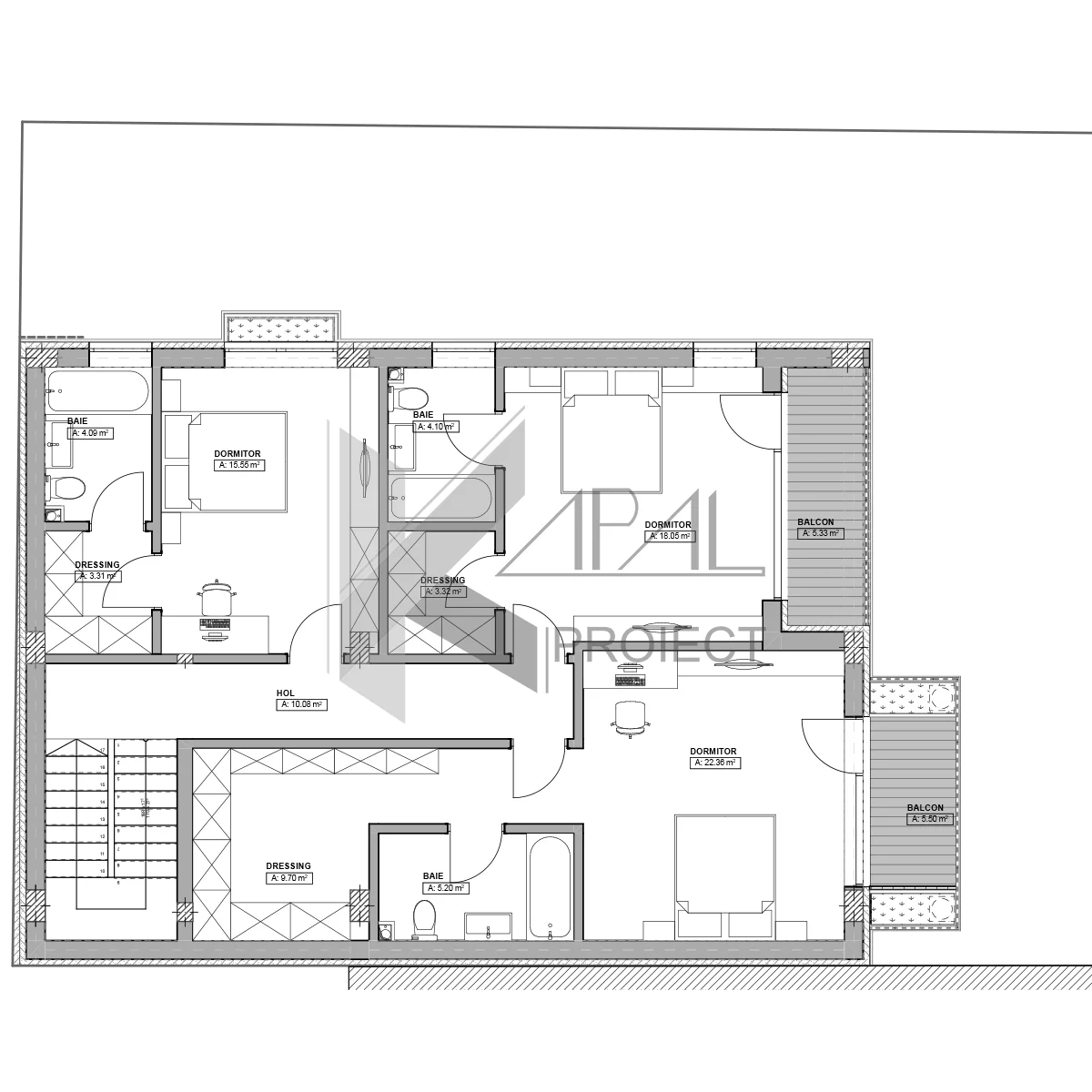
Etajul este rezervat zonei de noapte și oferă un grad ridicat de confort, fiecare dormitor beneficiind de baie și dressing propriu, o soluție dorită în locuințele contemporane pentru intimitate și funcționalitate sporită. Dormitoarele principale au acces către balcoane care aduc lumină naturală și creează legătura cu exteriorul.
Din punct de vedere arhitectural, locuința se remarcă printr-o volumetrie echilibrată și o cromatică simplă, dar elegantă, bazată pe tonuri de alb și crem, completate de profile decorative care adaugă rafinament compoziției. Terasele de la parter și etaj sunt gândite ca extensii ale spațiilor interioare, devenind locuri ideale pentru relaxare și socializare. Tâmplăria în nuanță gri antracit și balustradele din sticlă securizată și laminată completează imaginea modernă a clădirii.
Rezultatul este o locuință spațioasă și bine organizată, potrivită unei familii numeroase sau unei familii care apreciază spațiile ample și zonele dedicate întâlnirilor sociale.
Clădirea are o lungime maximă de 13,62 m și o lățime de 9,90 m, o amprentă la sol de 134,21 mp și o suprafață desfășurată totală de 451,02 mp, din care 187,93 mp reprezintă suprafața balcoanelor. Suprafața utilă totală este de 307,66 mp, iar acoperirea este realizată prin șarpantă cu învelitoare din țiglă ceramică de culoare maro, soluție care completează armonios imaginea generală a locuinței.













