Această casă modernă este concepută ca o locuință cochetă și spațioasă, cu regim de înălțime Demisol + Parter + Etaj 1, având o organizare funcțională clară și o separare eficientă între zonele de zi și cele de noapte. Volumetria compactă și proporțiile echilibrate sunt completate de suprafețe vitrate generoase, care asigură lumină naturală din abundență.
Zona de zi este orientată către partea mai publică a parcelei, în timp ce spațiile private sunt retrase, oferind intimitate. Demisolul este destinat funcțiunilor tehnice și depozitării, parterul adăpostește principalele spații de locuire, iar etajul completează locuința cu camere suplimentare și zone flexibile.
Finisajele combină tencuiala decorativă albă și gri cu placaje de tip Trespa în nuanțe calde, rezultând o imagine contemporană și echilibrată. Locuința are o suprafață desfășurată totală de 415,40 mp, o suprafață utilă de 307,41 mp și este acoperită cu terasă necirculabilă.Demisol
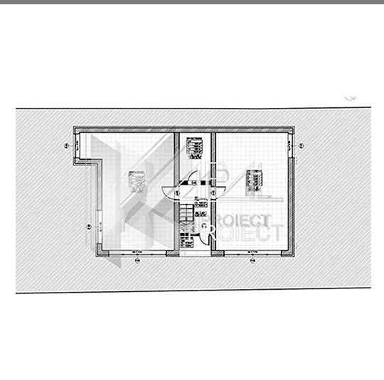
Nod vertical de circulație (scară)
Spațiu tehnic 1 – 41,03 mp
Spațiu tehnic 2 – 6,99 mp (ventilat & iluminat natural)
Spațiu tehnic 3 – 38,31 mp
Depozitare – 2,15 mp (ventilată & iluminată natural)
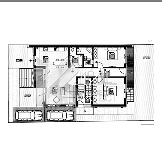
Parter
Zona de zi (orientată spre partea publică – stradă):
Living – 28,69 mp
Bucătărie open-space – 16,54 mp
Baie – 5,28 mp
Zona de noapte (retrasă, cu acces secundar):
Hol – 10,12 mp
Dormitor 1 – 20,72 mp
Dormitor 2 – 15,28 mp
Baie – 5,48 mp
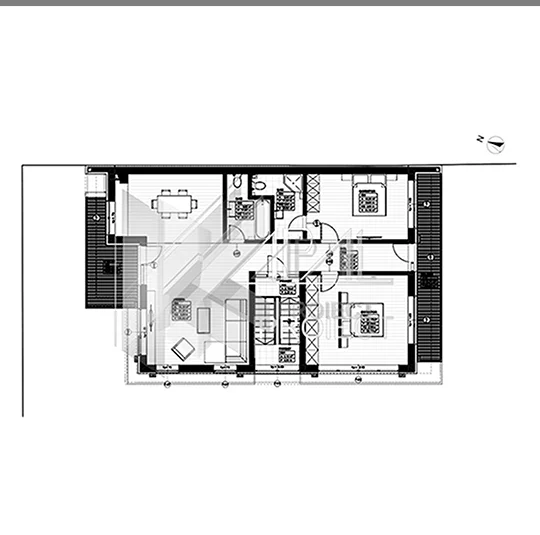
Etaj 1
Zona de zi (spre partea publică – stradă):
Cameră – 45,23 mp, cu balcon – 10,00 mp
Baie – 5,28 mp (la confluența zonelor)
Zona de noapte (spre partea privată a casei):
Hol – 10,51 mp
Dormitor cu dressing – 20,80 mp
Dormitor – 15,28 mp cu baie – 5,48 mp













