Proiectul propune o locuință modernă cu regim de înălțime Parter + Etaj, concepută pentru un stil de viață contemporan, în care confortul, funcționalitatea și expresia arhitecturală se îmbină armonios. Volumetria este clară și bine proporționată, fiind accentuată printr-o combinație echilibrată de materiale și texturi.
Fațadele sunt tratate cu placaje din piatră naturală, panouri HPL de culoare maro, riflaje din lemn și tencuială albă, generând un joc vizual modern și elegant. Intrarea principală este protejată și bine marcată, oferind un parcurs clar și reprezentativ către interior.
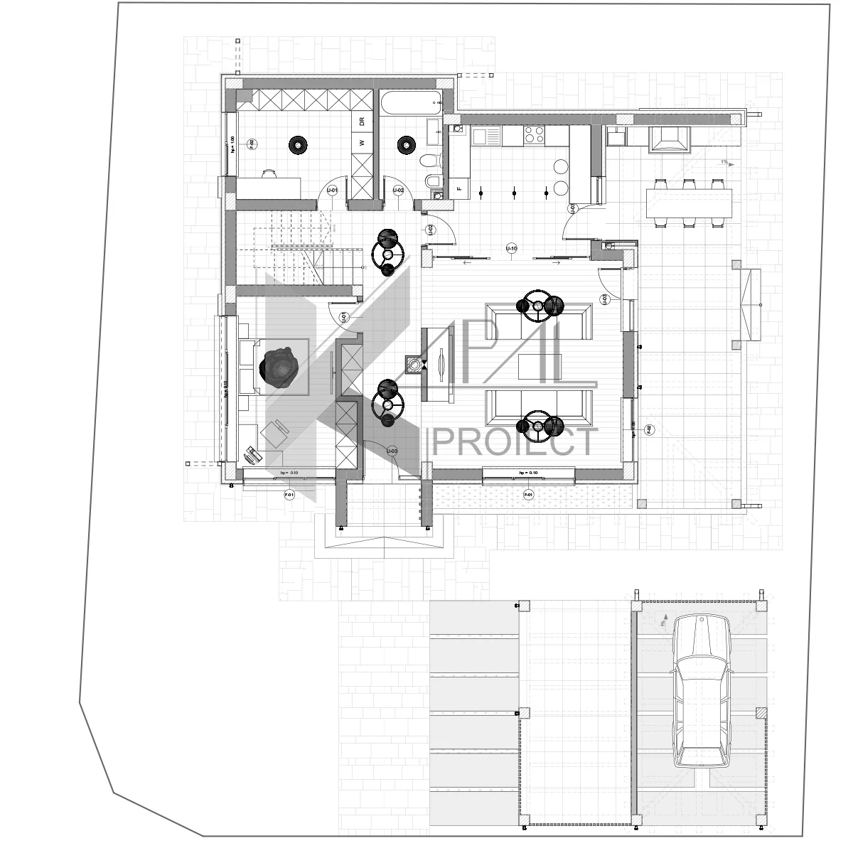
Zona de zi de la parter este organizată ca un spațiu generos și luminos, cu living și bucătărie separate, dar conectate vizual și funcțional. Terasa acoperită devine o extensie naturală a zonei de zi, găzduind un spațiu de gătit cu grătar, zonă de luat masa și loc de relaxare, ideal pentru petrecerea timpului în aer liber.
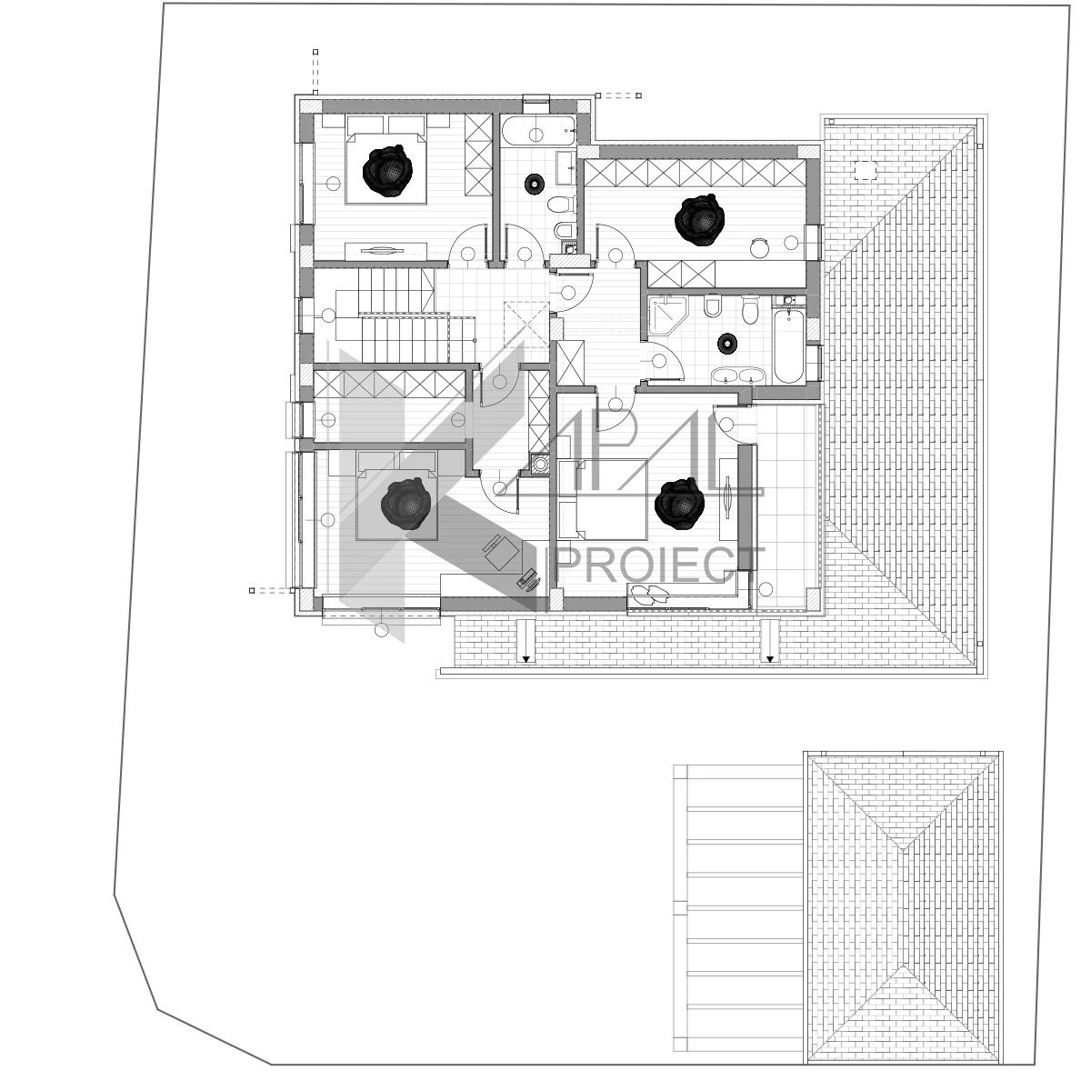
Etajul este dedicat zonei de noapte, oferind dormitoare confortabile, dressinguri generoase și băi bine dimensionate, asigurând intimitate și confort pentru toți membrii familiei. Suprafața vitrată generoasă asigură iluminare și ventilare naturală optimă în toate încăperile.
Prin organizare, finisaje și volumetrie, locuința se adresează unei familii care își dorește o casă modernă, eficientă și cu o identitate arhitecturală puternică.
Parter – Zonă de zi
Hol acces – 13.84 mp
Dormitor – 15.26 mp
Living – 31.07 mp
Bucătărie – 14.98 mp
Baie – 5.56 mp
Cameră tehnică – 11.80 mp
Scară interioară
Terasă acoperită (gătit, dining, relaxare) – 33.74 mp
Etaj 1 – Zonă de noapte
Scară interioară
Hol distribuție – 4.89 mp
Dormitor – 15.63 mp
Dressing – 5.26 mp
Hol distribuție – 4.65 mp
Dormitor matrimonial – 18.07 mp
Dressing – 12.95 mp
Baie – 6.66 mp
Balcon – 5.62 mp
Amenajări propuse pe teren
Foișor – 19.58 mp
Garaj – 23.94 mp











