Proiectul K070 propune o casă clasică P+1E cu o compoziție echilibrată pe trei registre – soclu, etaj și cornișă – subliniate prin profile decorative. Accesul principal este marcat de terasa de primire și balconul etajului, susținute vizual de coloane dorice și baluștri din beton, iar glisarea volumului conferă ansamblului o notă monumentală. Ancadramentele ferestrelor și tâmplăria divizată adaugă ritm și eleganță fațadelor. Încăperile sunt orientate cardinal și gândite pentru aport de lumină naturală pe parcursul zilei, prin poziționarea strategică a golurilor vitrate, ceea ce crește gradul de confort și reduce nevoia de iluminat artificial. Fațadele sunt finisate cu tencuială decorativă crem, completată de profile albe din polistiren extrudat pentru detalii clasice curate. Tâmplăria maro accentuează ritmul golurilor și conferă contrast elegant volumetriei. Acoperișul de tip șarpantă este învelit cu țiglă ceramică maro, potrivită limbajului clasic propus.
Plan Parter:
Terasa de acces (13,12 mp) introduce o zonă de tranziție protejată.
Living & dining (66,10 mp): spațiu amplu, ideal pentru reuniuni de familie și socializare, cu deschideri vitrate ample pentru lumină naturală.
Bucătărie (18,89 mp) cu dublu acces: intrare din exterior (practică pentru aprovizionare) și din interior (flux facil cu diningul).
Scară monumentală către etaj, cu depozitare integrată (2,10 mp) sub trepte.
Hol (3,93 mp) + baie (5,87 mp) pentru zona de zi.
Două dormitoare (~18 mp fiecare): pot funcționa ca birou, cameră de oaspeți sau dormitoare pentru membri ai familiei care preferă nivelul parterului.
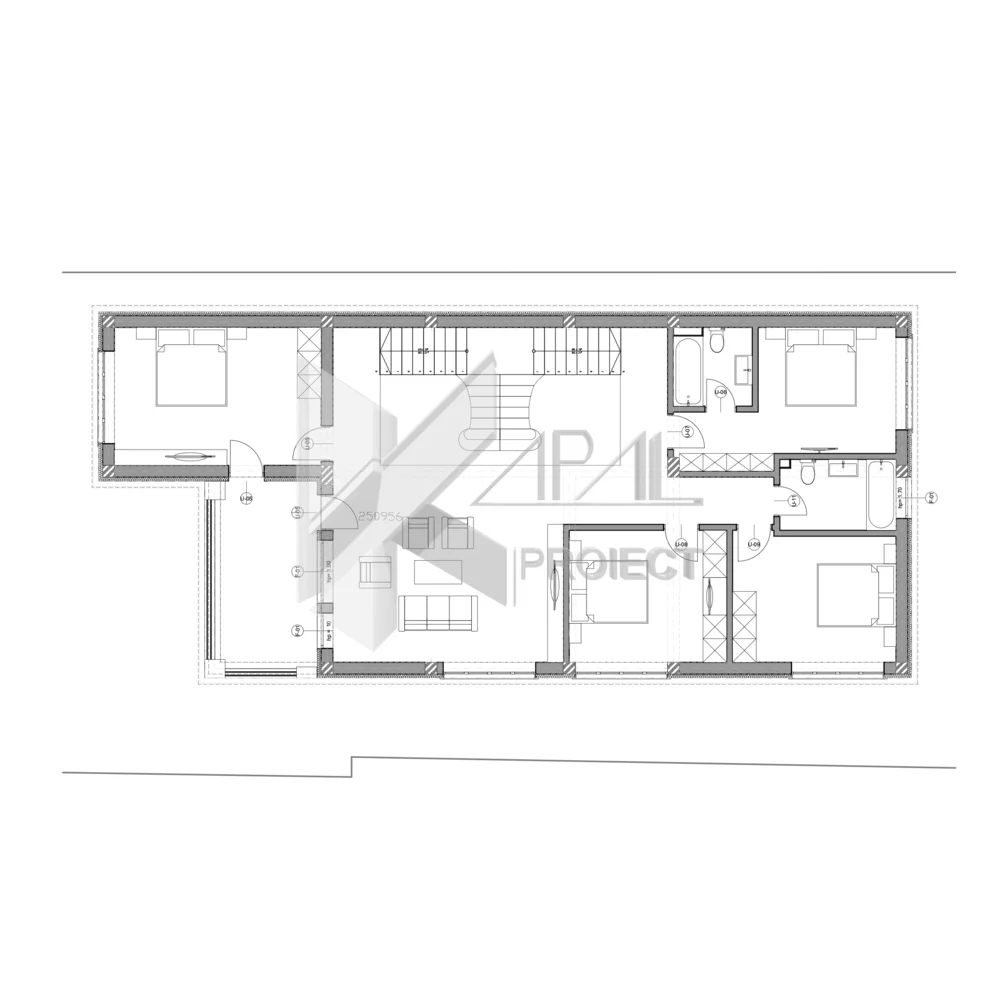
Plan Etaj 1:
Living (33,04 mp): a doua zonă de zi, ideală ca family room sau bibliotecă.
Balcon (12,16 mp): extindere în aer liber pentru relaxare.
Două dormitoare ~14 mp + un dormitor 18,96 mp + un dormitor 14,98 mp cu baie proprie (3,83 mp): distribuție echilibrată pentru familie numeroasă, cu 3 băi la nivelul casei (inclusiv parter).
Baie comună (5,25 mp): deservire eficientă pentru dormitoarele fără baie proprie.












