O casă modernă P+1E concepută ca monovolum cu goluri vitrate generoase până în pardoseală, ce pun în valoare lumina naturală și relația cu exteriorul. Cu 107.64 mp utili și o amprentă la sol de 77.56 mp, locuința optimizează fiecare metru pătrat, oferind o compartimentare clară între zona de zi la parter și zona de noapte la etaj.
Fațadele combină tencuieli fine în tonuri de alb, gri deschis și gri închis cu placaje de piatră decorativă gri, completate de ancadramente ale ferestrelor în alb sau negru pentru un contrast elegant. Ferestrele până în pardoseală creează perspective largi și o ambianță luminoasă pe tot parcursul zilei. Volumetria simplă este protejată de un acoperiș tip șarpantă, care asigură durabilitate și un aspect contemporan echilibrat.
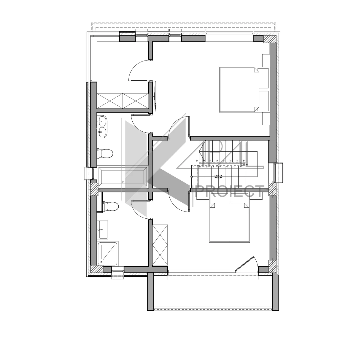
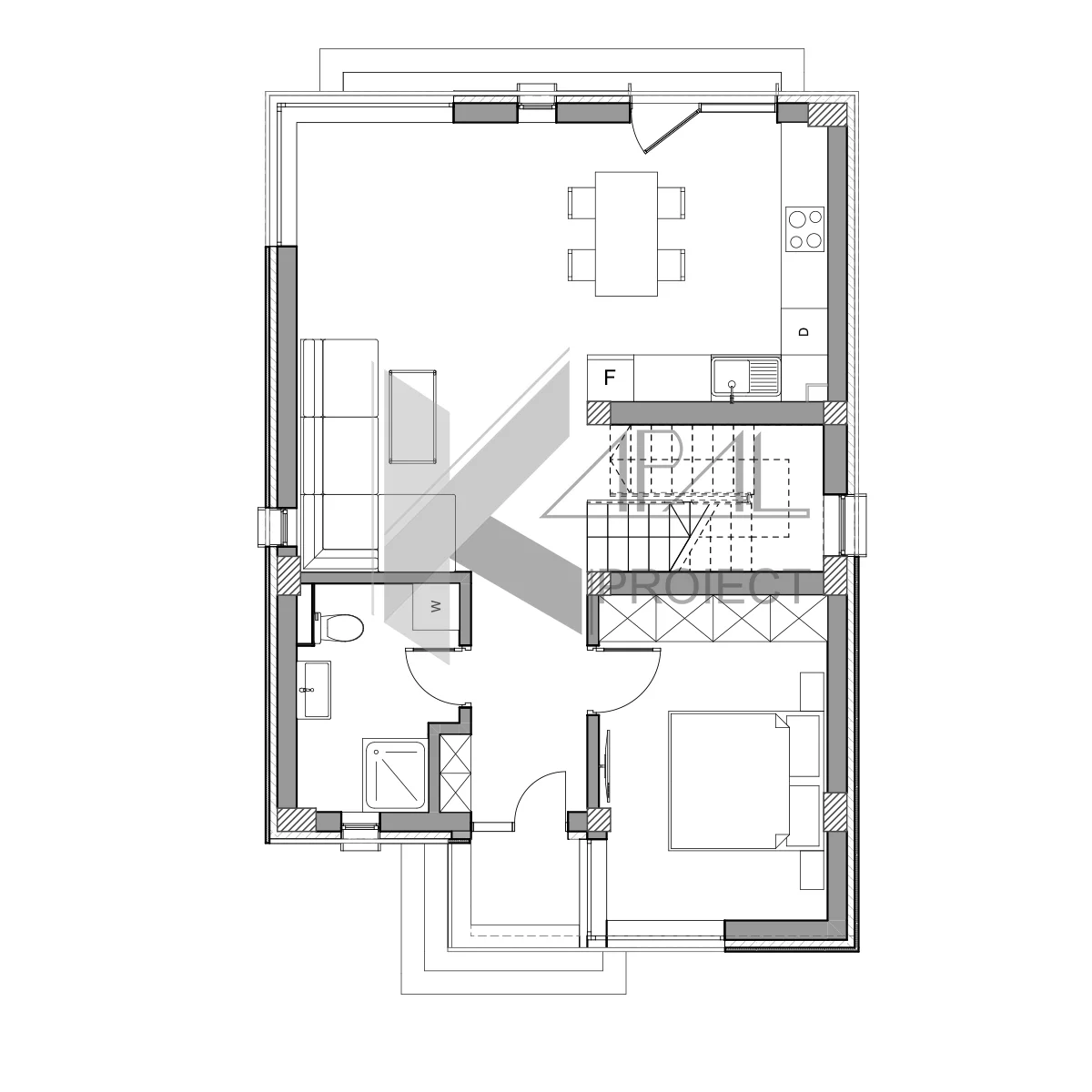
Planul răspunde nevoilor unei familii moderne: living + bucătărie + loc de luat masa (32.81 mp) într-un open-space fluid, 3 dormitoare și 3 băi, plus spații de depozitare și circulații compacte. La etaj, masterul beneficiază de dressing dedicat și baie proprie, iar al doilea dormitor are baie proprie și acces la balconul de 7.38 mp. Dimensiunile controlate — 11.05 × 7.55 m — fac proiectul potrivit pentru loturi urbane medii, păstrând totodată o prezență arhitecturală puternică.












