Locuința propusă este o casă modernă cu regim de înălțime Parter + Etaj, concepută ca locuință individuală, cu o organizare funcțională clară și spații optimizate pentru confortul unei familii. Compartimentarea urmărește separarea firească a zonei de zi de spațiile de odihnă, oferind atât funcționalitate, cât și o atmosferă plăcută pentru viața de zi cu zi.
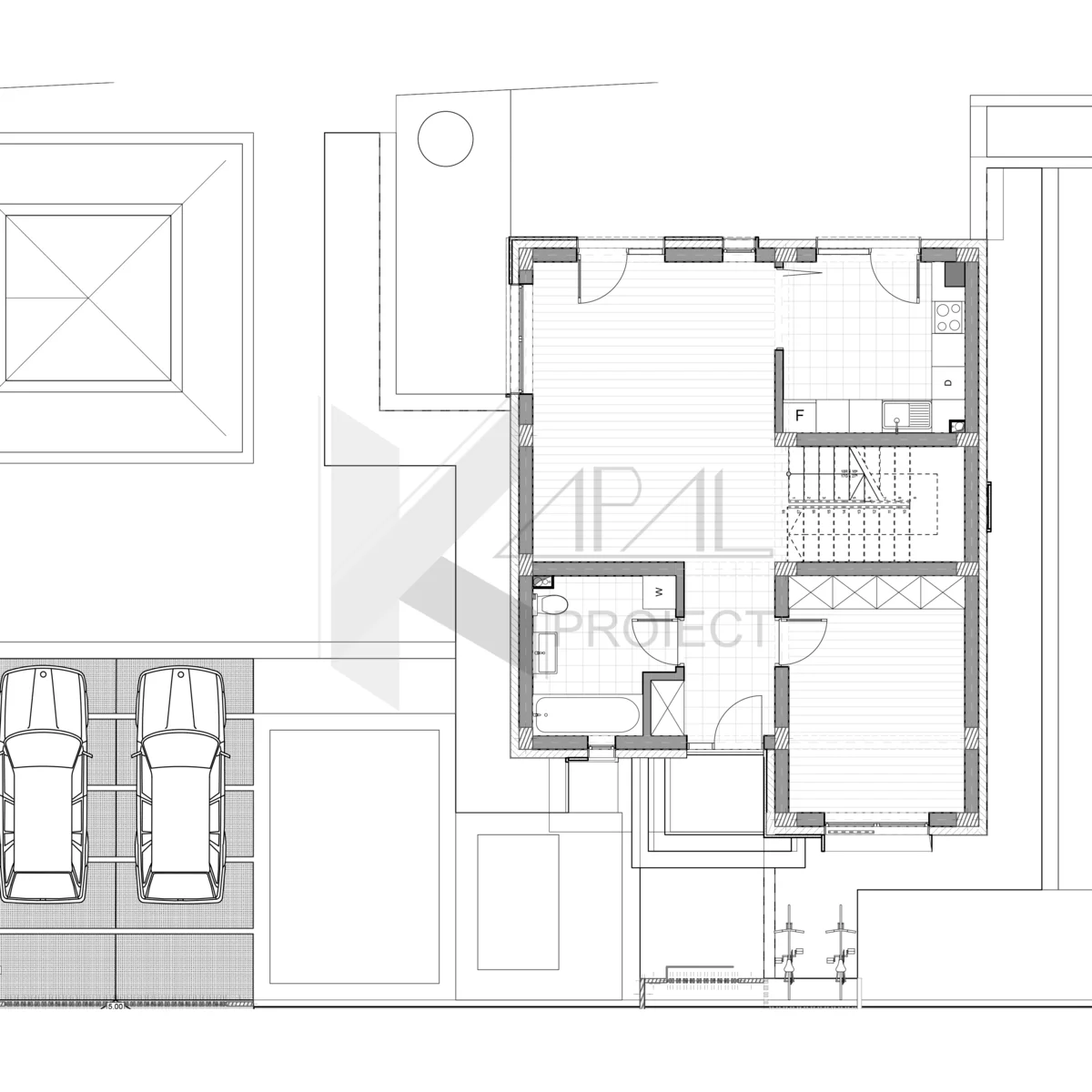
La nivelul parterului sunt dispuse spațiile principale de zi, accesul realizându-se printr-un hol de primire care distribuie către o baie, un dormitor ce poate funcționa și ca birou sau cameră pentru oaspeți, precum și către zona de zi compusă din living și loc de luat masa, configurate într-un spațiu generos și luminos. Bucătăria este organizată separat, având o relație directă cu zona de luat masa, iar nodul vertical de circulație face legătura cu etajul.
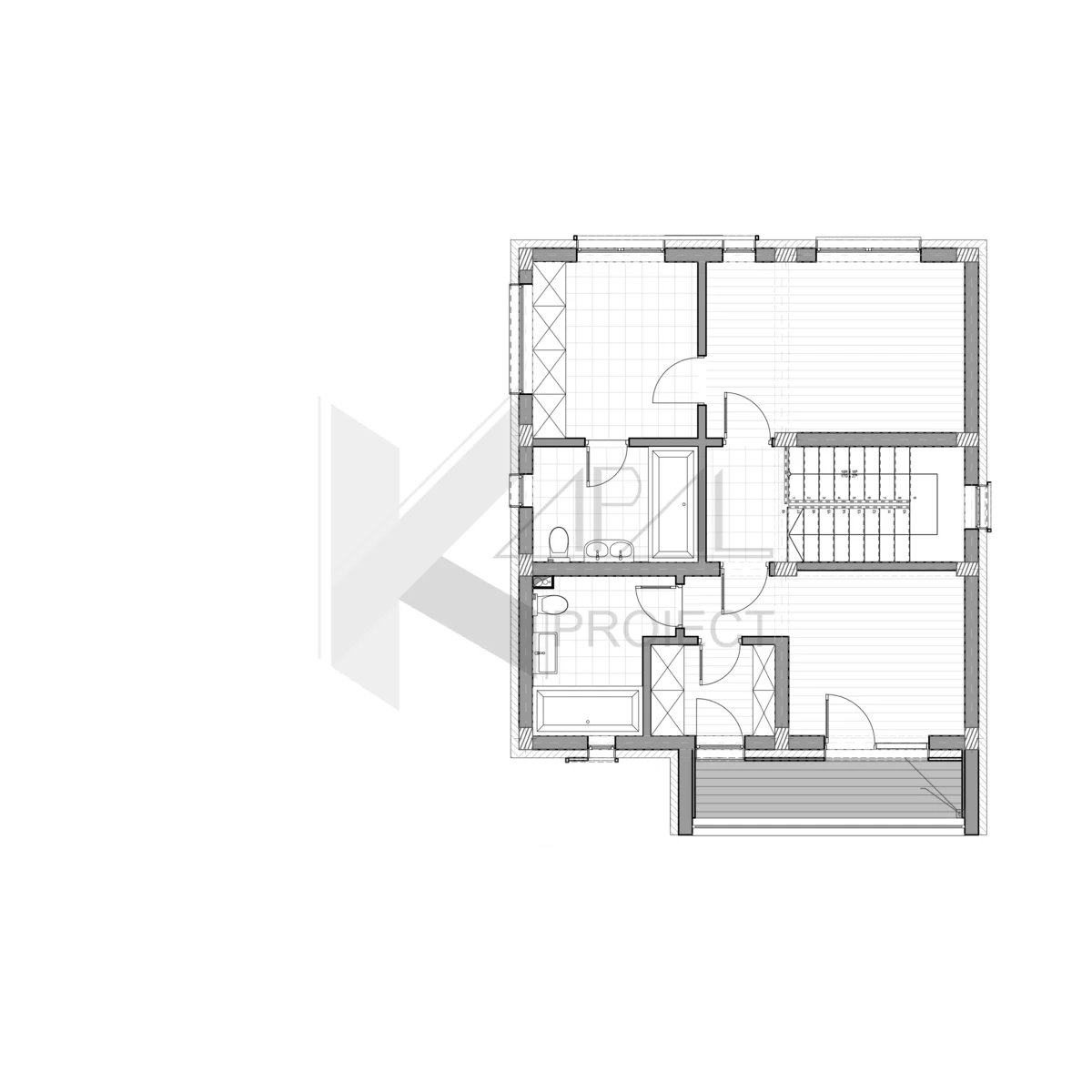
Etajul este dedicat zonei de noapte și asigură un grad ridicat de confort și intimitate. Din holul de distribuție se accesează două dormitoare, fiecare beneficiind de baie proprie și spații de depozitare. Dormitorul principal dispune de un dressing generos și o baie proprie, în timp ce al doilea dormitor beneficiază, la rândul său, de dressing și baie proprie, configurând astfel un nivel superior complet funcțional și bine echilibrat.
Clădirea este concepută sub forma unui monovolum cu goluri vitrate generoase, oferind o imagine modernă și elegantă. Balconul amplasat la fațada principală devine un element de accent ce dinamizează compoziția volumetrică și atrage atenția, în timp ce terasa din spatele casei creează un spațiu ideal pentru relaxare și petrecerea timpului liber în aer liber. Deși volumetria este relativ simplă, compoziția fațadelor și jocul materialelor conferă clădirii o prezență puternică și contemporană.
Finisajele contribuie la conturarea unui aspect modern și echilibrat, fiind utilizate tencuieli decorative în nuanțe de alb și gri deschis, completate de placaje din cărămidă decorativă în tonuri calde și de ancadramente ale ferestrelor în culori închise, ce creează contraste elegante. Împreună cu gardul propus și amenajarea vegetală, ansamblul capătă coerență și personalitate.
Locuința are dimensiuni compacte, cu o lungime de 10,80 m și o lățime de 8,65 m, o amprentă la sol de 86,91 mp și o suprafață desfășurată totală de 173,62 mp, din care 5,40 mp reprezintă suprafața balcoanelor și teraselor. Suprafața utilă totală este de 116,83 mp, oferind un echilibru optim între spațiu și eficiență. Acoperirea este realizată cu șarpantă din tablă, soluție durabilă și potrivită imaginii moderne a construcției.












