Locuință modernă P+1E gândită pentru familii care apreciază atât intimitatea, cât și zonele de socializare. Volumetria clară și consola acoperișului tip terasă creează o cornișă elegantă; intradosul din lemn adaugă textură și protecție fațadelor, în timp ce vitrajele înalte și balustradele metalice minimaliste subliniază liniile orizontale ale compoziției.
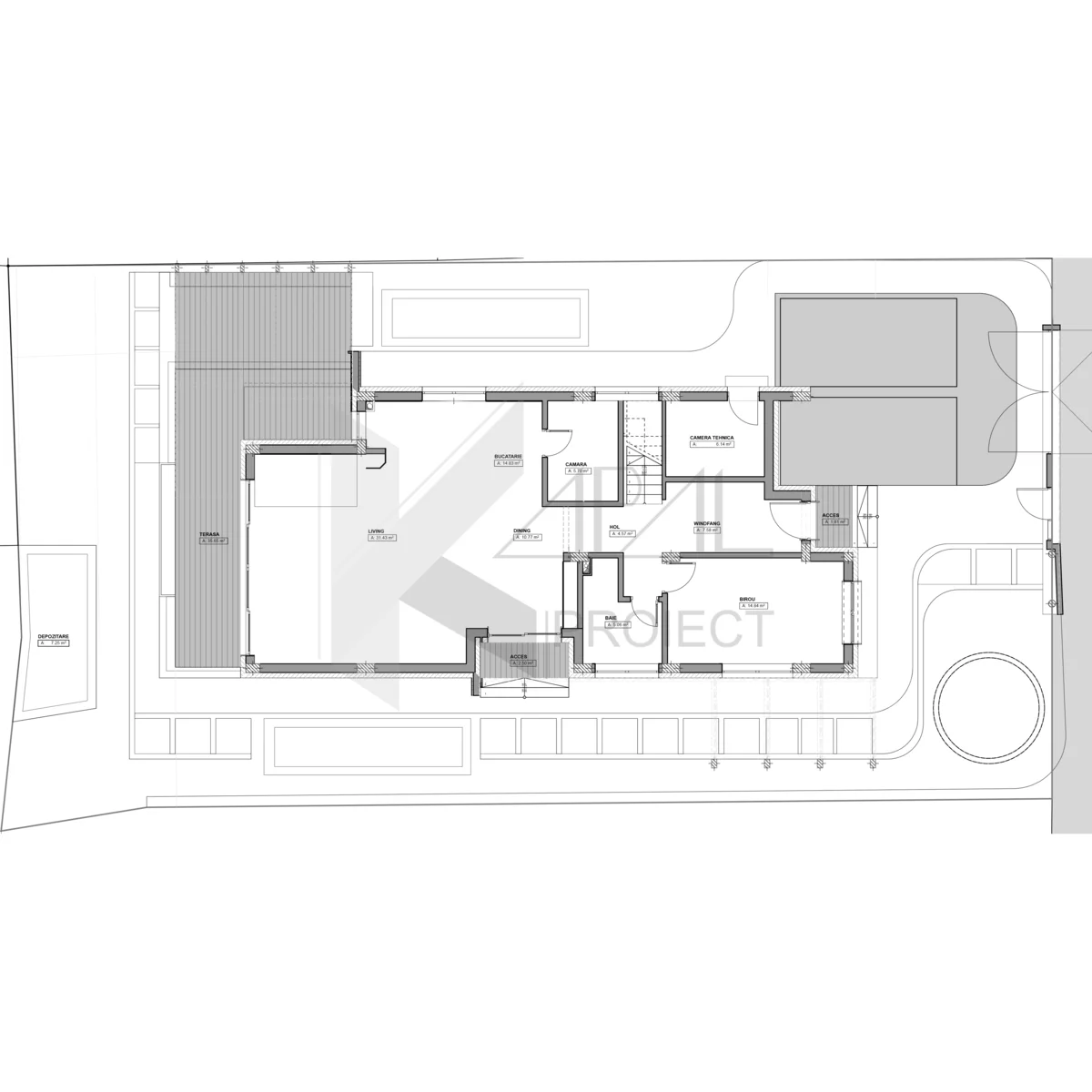
La parter, fluxul se desfășoară natural din windfang spre zona de zi: livingul de 31,43 mp se deschide către o terasă din lemn de 24,43 mp, cu pergolă albă și loc dedicat pentru lounge + dining exterior. Bucătăria (14,83 mp) cu dining (10,77 mp) este completată de cămară generoasă, iar biroul de 14,84 mp permite lucrul în liniște, separat de zona de zi. Camera tehnică și baia parter eficientizează funcționarea locuinței.
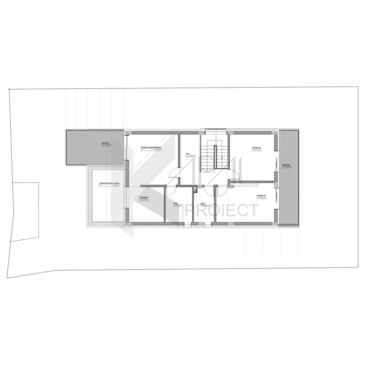
La etaj, zona de noapte este bine proporționată: dormitorul matrimonial (18,45 mp) are dressing (9,00 mp), baie proprie (6,90 mp) și balcon (9,45 mp). Dormitoarele A (16,41 mp) și B (15,34 mp) împart o a doua baie (5,05 mp), iar balconul de 13,60 mp creează o legătură cu exteriorul, aducând lumină și perspective ample.
Materialitatea combină cărămidă aparentă, lemn și tencuială alb-gri, cu tâmplărie PVC albă. Rezultă o casă cu suprafețe generoase, potrivită unei familii numeroase sau pentru cei care iubesc evenimentele cu prietenii, cu terase și balcoane ce extind firesc spațiul de locuit.












