Acest proiect este o casă modernă P+1E proiectată pentru familii care își doresc un spațiu contemporan, eficient și luminos. Volumetria dinamică este accentuată de un mix echilibrat de materiale – tencuieli în nuanțe de alb și maro, placaje ceramice gri (deschis/închis) și panouri TRESPA în tonuri de maro ce evocă căldura lemnului. Ferestrele generoase unesc interiorul cu exteriorul, inundând spațiile cu lumină naturală și punând în valoare zona de zi ce se deschide către o terasă de 46,06 mp – locul perfect pentru socializare și relaxare.
Planul funcțional se sprijină pe circulații clare și spații bine dimensionate: la parter, viața de zi cu zi se desfășoară fluid între living, dining și bucătărie, completate de un birou confortabil pentru lucru de acasă. Garajul integrat și spațiul tehnic asigură practicul de zi cu zi, în timp ce baia de serviciu și holurile compacte optimizează traseele. La etaj, zona de noapte oferă intimitate: dormitorul matrimonial are dressing dedicat și baie proprie, iar celelalte două dormitoare dispun de baie separată și acces facil la spălătorie. Balconul de la etaj completează relația cu exteriorul.
Prin proporțiile atent controlate (L 16,40 m, l 8,60 m) și o suprafață utilă de 197,17 mp, K105 îmbină estetica contemporană cu o funcționalitate riguroasă, potrivită pentru un stil de viață modern.
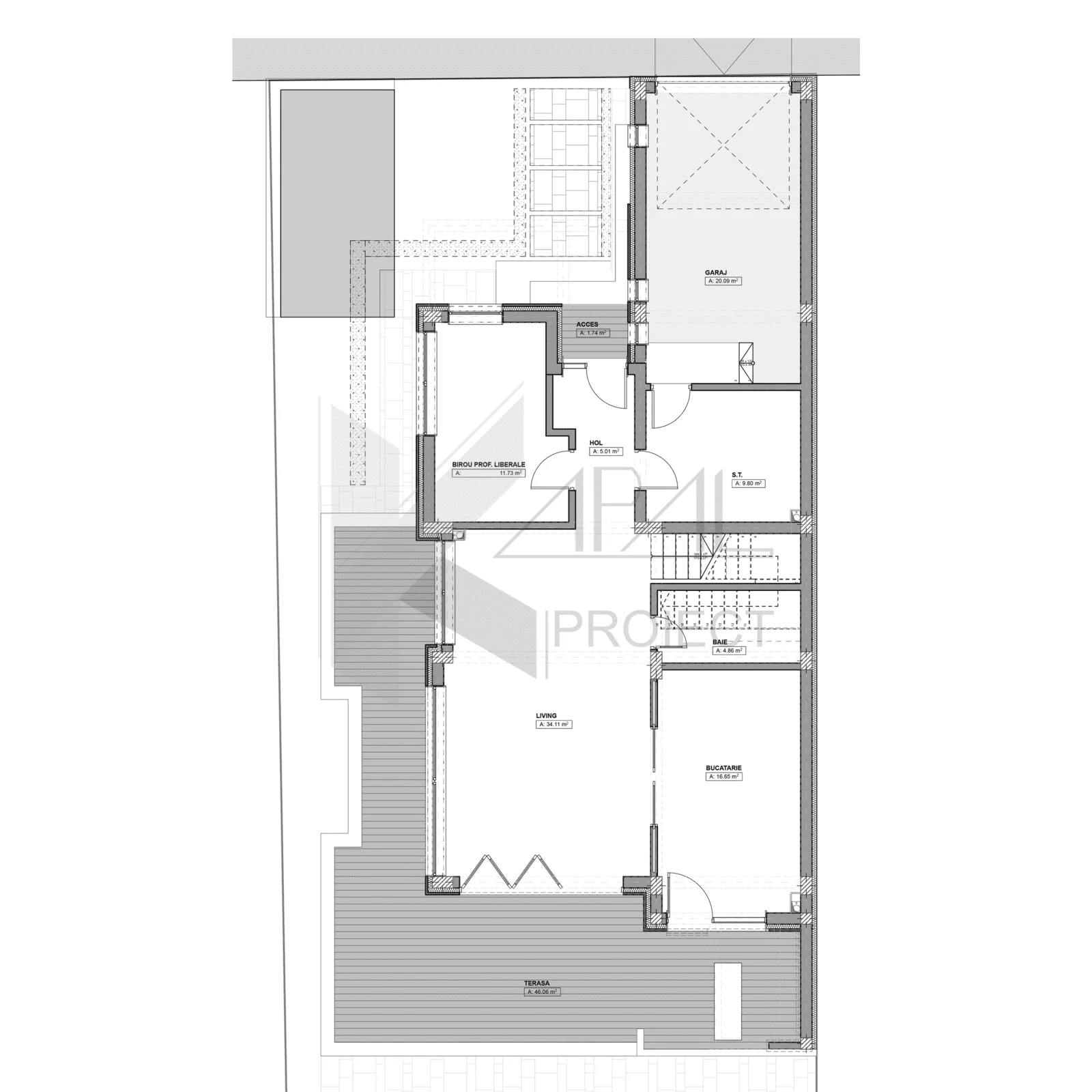
Parter
Acces: 2,85 mp
Hol: 5,01 mp
Spațiu tehnic: 9,80 mp
Garaj: 20,09 mp (acces comod către interior)
Birou: 11,73 mp (ideal home office)
Nod vertical de circulație
Baie: 4,86 mp
Living + loc de luat masa: 34,11 mp (deschidere către exterior)
Bucătărie: 16,65 mp (separată, cu relație directă cu dining-ul)
Terasă: 46,06 mp (spațiu exterior generos pentru relaxare/grătar)
Etaj 1
Hol: 5,40 mp
Nod vertical de circulație
Dormitor 1: 18,27 mp + baie proprie 4,27 mp
Dormitor 2: 15,89 mp
Baie: 4,78 mp (deservire comună)
Spălătorie: 7,02 mp (practică, reduce traseele și dezordinea)
Dormitor matrimonial: 21,60 mp
Dressing matrimonial: 10,77 mp
Baie matrimonială: 6,57 mp
Balcon: 7,51 mp












