Proiectul propune o locuință unifamilială modernă cu regim de înălțime Parter + Etaj, caracterizată printr-o volumetrie clară, cu forme simple și linii drepte, care definesc o imagine contemporană și elegantă.
Fațada principală este compusă din volume suprapuse și console, evidențiate prin jocul dintre tencuieli deschise și placaje cu textură minerală în nuanțe de gri. Balconul de la etaj, prevăzut cu balustradă din sticlă securizată, adaugă transparență și ușurință compoziției, oferind totodată o legătură directă între interior și exterior.
Suprafețele vitrate ample permit iluminarea naturală optimă a tuturor încăperilor și contribuie la crearea unor spații interioare luminoase și primitoare. Iluminatul arhitectural exterior este integrat discret în fațadă, accentuând volumele și materialele pe timp de seară.
Locuința este destinată unei familii care își dorește un spațiu contemporan, funcțional și ușor de utilizat, cu o separare clară între zona de zi și zona de noapte.
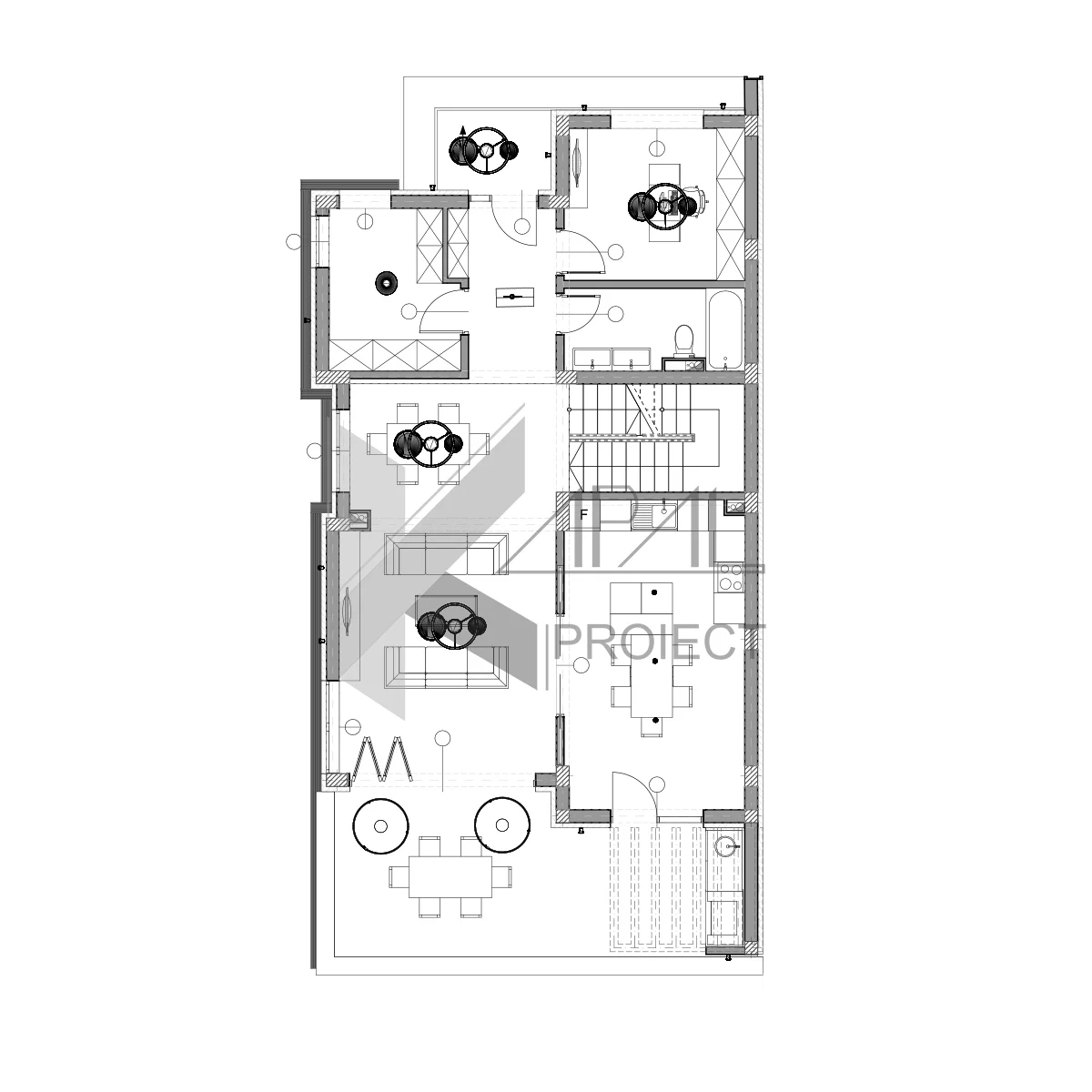
Parter – Zonă de zi
Hol de acces
Living generos cu deschidere către exterior
Bucătărie (închisă sau open-space)
Loc de luat masa
Baie
Spațiu tehnic / depozitare
Terasă acoperită sau platformă exterioară
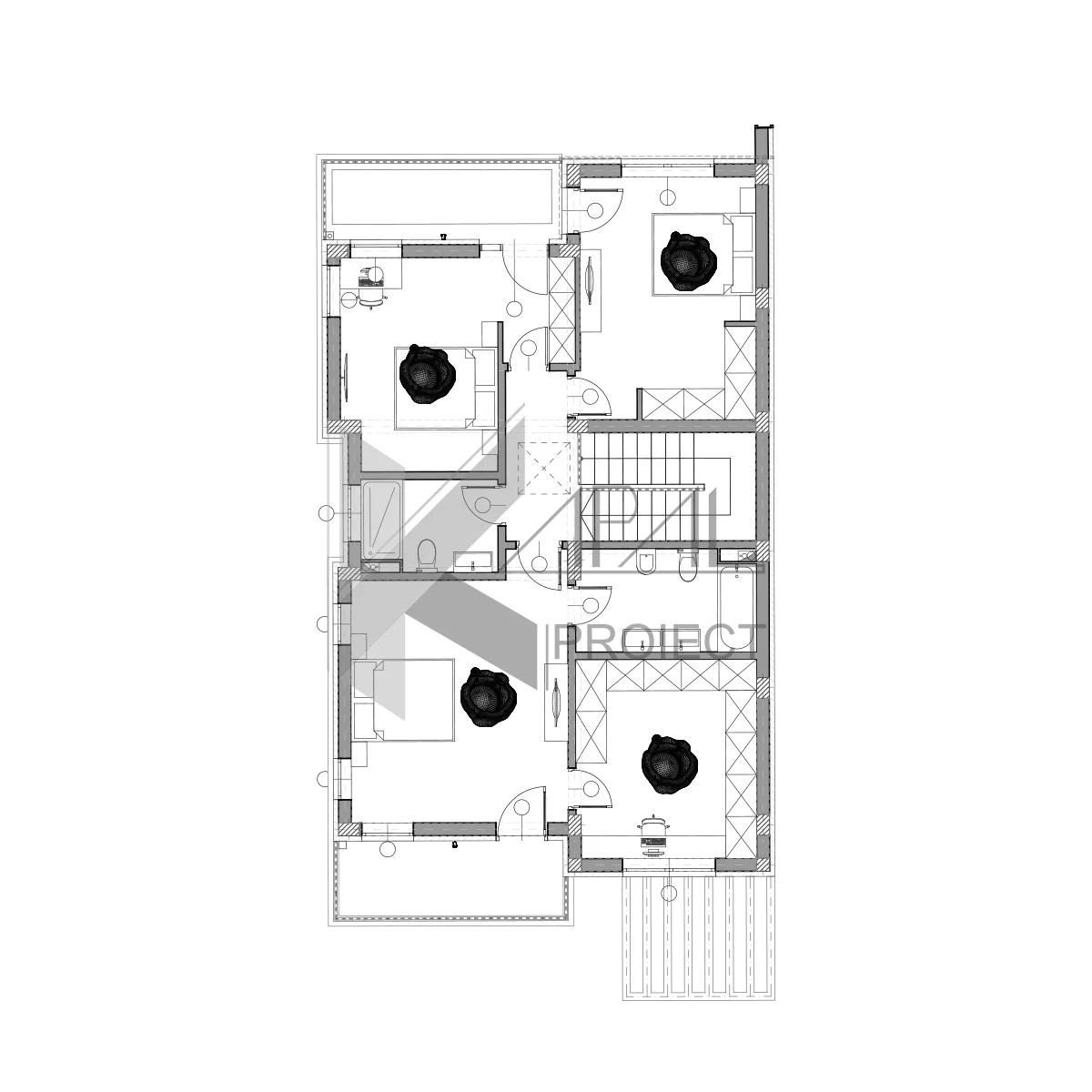
Etaj – Zonă de noapte
Hol
Dormitor matrimonial cu acces la balcon
Dormitor secundar
Dormitor secundar / birou
Baie
Balcon











