Acest proiect propune o casă modernă cu subsol tehnic, parter și etaj, gândită pentru o familie care își dorește spații fluide, luminoase și o imagine contemporană, ușor de întreținut. Volumetria clară și suprafețele vitrate generoase valorifică orientarea cardinală, aducând lumină naturală în toate zonele principale ale locuinței.
La exterior, compoziția este definită de tencuială decorativă albă, placaj de piatră în ton maro deschis și placaj tip Trespa în nuanțe de maro, într-un dialog elegant cu jardinierele integrate pe ambele niveluri. Relația cu exteriorul este consolidată printr-o terasă spațioasă la parter și două balcoane la etaj, configurate de forma în plan a casei pentru a crea zone de relaxare la soare sau umbră, pe tot parcursul zilei.
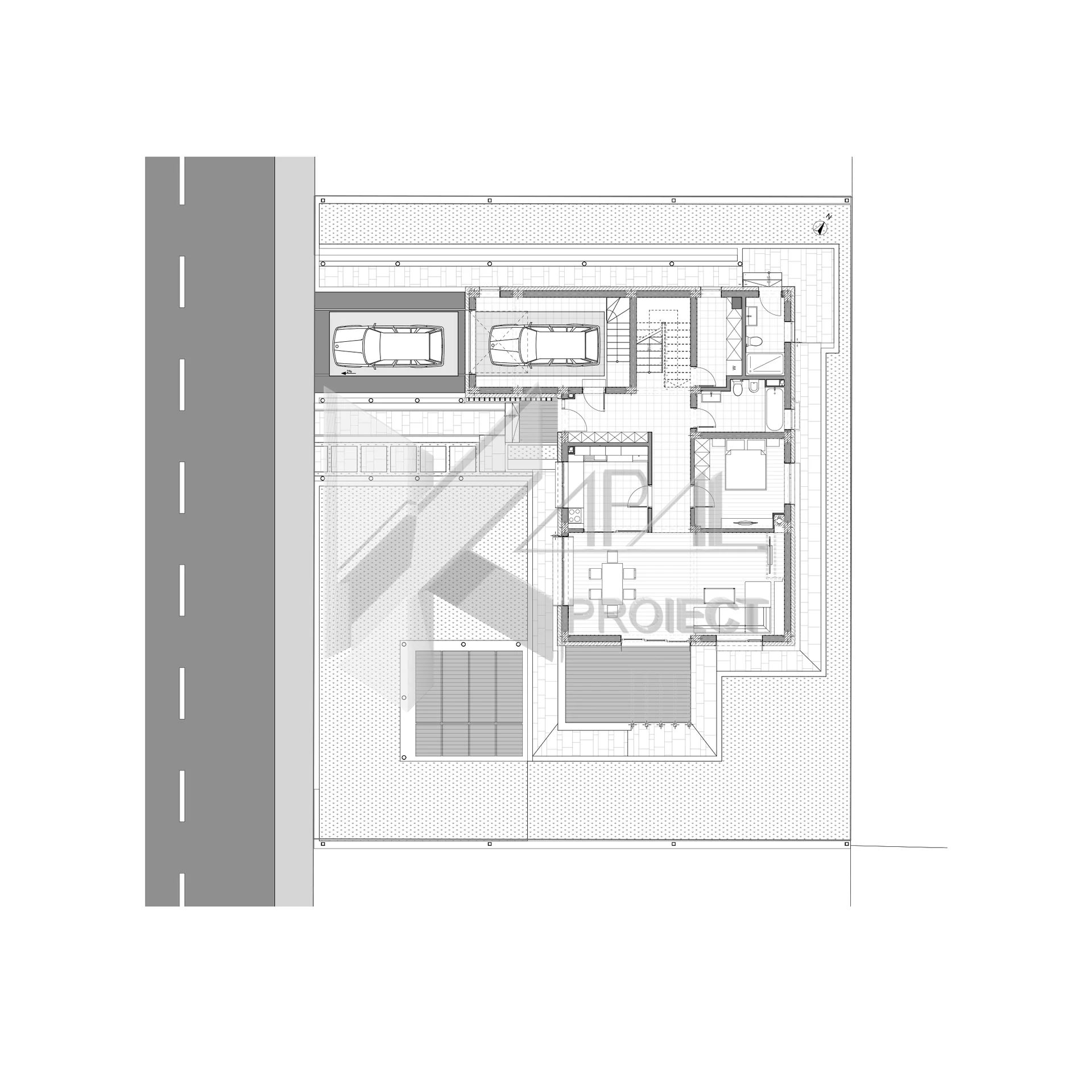
Planimetria optimizează diferențierea între zona de zi (living + dining, bucătărie, terasă) și zona de noapte (3 dormitoare la etaj cu dressing și băi), iar garajul integrat și spațiul tehnic asigură funcționalitatea cotidiană. Cu 197,39 mp utili și 298,65 mp suprafață desfășurată, pe o amprentă de 143,82 mp, locuința echilibrează perfect confortul, estetica și eficiența spațiilor. Acoperișul tip terasă necirculabilă contribuie la o întreținere simplă și la o imagine arhitecturală curată.
Subsol tehnic
Subsol tehnic dedicat instalațiilor și depozitării, optimizând întreținerea sistemelor casei și eliberând spațiile de la parter.
Parter
Acces – 2,62 mp: intrare protejată, cu zonă de tranziție spre hol.
Hol – 16,17 mp: distribuție clară către zona de zi, grup sanitar, garaj și scara interioară (nod vertical de circulație).
Nod vertical de circulație: scară ergonomică, bine iluminată natural.
Garaj – 21,00 mp: acces direct în casă, comod pentru cumpărături și în zilele cu vreme nefavorabilă.
Spațiu tehnic – 5,91 mp: centralizare instalații, depozitare dedicată.
Grup sanitar – 4,57 mp: util pentru zona de zi și oaspeți.
Baie – 6,16 mp: suplimentar pentru confortul parterului.
Bucătărie – 9,85 mp: posibilitate de închidere parțială/totală, relație facilă cu diningul.
Dormitor – 11,96 mp: flexibil ca birou/camera oaspeți.
Living + loc de luat masa – 33,59 mp: spațiu principal, vitrat larg, deschidere către terasă.
Terasa – 15,45 mp: extindere naturală a livingului, ideală pentru mese în aer liber.
Etaj 1
Nod vertical de circulație + Hol – 6,80 mp: acces central către zona de noapte.
Baie – 4,85 mp: deservire pentru dormitoarele A și B.
Dressing – 10,20 mp: spațiu generos de depozitare pentru întreaga familie.
Dormitor A – 13,94 mp: cameră luminoasă, ușor de mobilat.
Dormitor B – 14,71 mp: volum similar, orientare optimă pentru confort termic și lumină.
Dormitor C (master) – 15,05 mp + baie proprie – 3,88 mp: suită intimă, separată funcțional.
Balcoane – 7,31 mp și 5,41 mp: două puncte de belvedere și ventilare naturală, protejate în planul fațadelor.













