Această locuință unifamilială impresionează printr-o arhitectură clasică reinterpretată într-o manieră contemporană, unde proporțiile elegante, simetria fațadelor și detaliile decorative creează o prezență vizuală impunătoare și rafinată. Volumetria este clar definită, iar compoziția fațadei principale este dominată de porticul cu coloane și balcon central, accentuat de un fronton ornamental care conferă identitate și noblețe construcției.
Finisajele exterioare sunt alese pentru a sublinia caracterul sofisticat al proiectului: tencuială decorativă deschisă, ancadramente profilate, balustrade vitrate și tâmplării verticale proporționate armonios. Iluminatul arhitectural evidențiază ritmul elementelor clasice și accentuează texturile volumelor în timpul serii.
Organizarea funcțională urmărește separarea clară a zonelor de zi și noapte, asigurând confort, intimitate și eficiență în utilizare. Orientarea camerelor este gândită pentru lumină naturală optimă și ventilație eficientă pe tot parcursul zilei. Dimensiunile generale ale construcției – lungime maximă 14.65 m și lățime 8.25 m – permit integrarea armonioasă pe parcelă fără a compromite spațiile interioare.
Suprafața desfășurată totală este de 333.57 mp, incluzând balcoane generoase de 110.57 mp, ceea ce conferă locuinței spații exterioare ample pentru relaxare și socializare.
Acoperișul tip terasă cu șarpantă ascunsă și învelitoare tip țiglă metalică maro păstrează aspectul clasic al volumului, dar oferă performanțe moderne de durabilitate și întreținere redusă.
Per ansamblu, proiectul reprezintă o alegere ideală pentru beneficiarii care caută o casă elegantă, reprezentativă, dar perfect adaptată stilului de viață actual.
Subsol
scară exterioară acces
spațiu tehnic – 42.58 mp
Parter – Zona de zi
hol – 5.18 mp
dormitor / birou – 11.51 mp
spațiu tehnic – 4.93 mp
baie – 4.77 mp
hol secundar – 1.98 mp
depozitare – 3.05 mp
nod vertical circulație
living – 40.18 mp
bucătărie – 15.95 mp
terasă – 46.88 mp
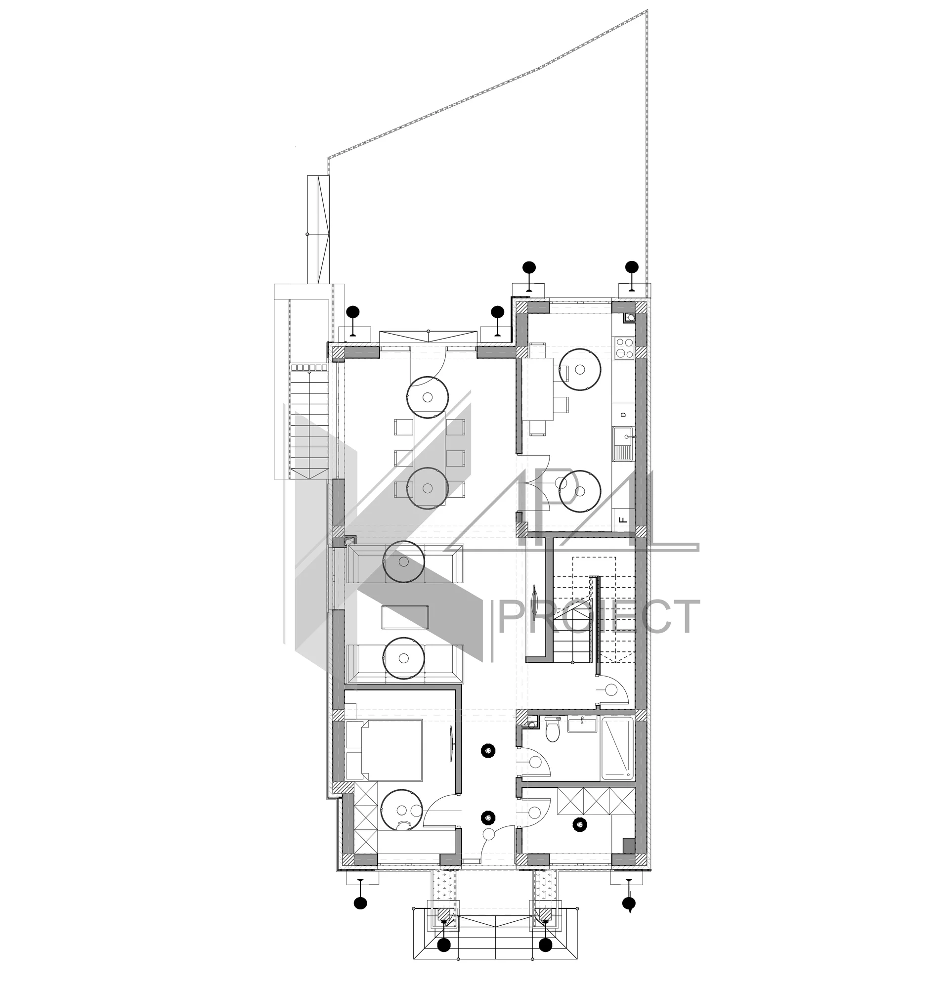
Etaj – Zona de noapte
nod vertical circulație
hol – 11.88 mp
baie – 5.13 mp
dormitor – 16.87 mp + balcon 2.92 mp
dormitor – 14.02 mp + balcon 0.72 mp













