Această locuință parter în stil clasic îmbină armonios proporțiile echilibrate, detaliile ornamentale și materialele naturale, rezultând o casă elegantă și atemporală, ideală pentru familii care apreciază arhitectura rafinată și funcționalitatea bine gândită.
Volumetria clădirii este atent modelată pentru a crea două zone exterioare distincte: o terasă de acces cu rol reprezentativ și o terasă acoperită orientată către zona privată a curții, destinată relaxării zilnice. Această separare funcțională oferă un plus de confort și intimitate, dar și o expresie arhitecturală dinamică.
Fațadele sunt tratate cu o compoziție elegantă de materiale: soclu din piatră naturală ce conferă stabilitate vizuală, tencuială decorativă albă pentru luminozitate și accente din placaj tip lemn în zona arcadelor, completate de texturi decorative în registrul superior. Ornamentele clasice și proporțiile atent studiate accentuează caracterul nobil al construcției.
Acoperișul tip șarpantă din lemn cu învelitoare din țiglă completează imaginea tradițională reinterpretată modern, oferind atât protecție climatică eficientă, cât și o siluetă arhitecturală bine definită.
Prin dimensiunile compacte și planul inteligent organizat, locuința valorifică optim suprafața construită de 131.10 mp și oferă un spațiu interior aerisit, luminos și ușor de mobilat, adaptat stilului de viață contemporan.
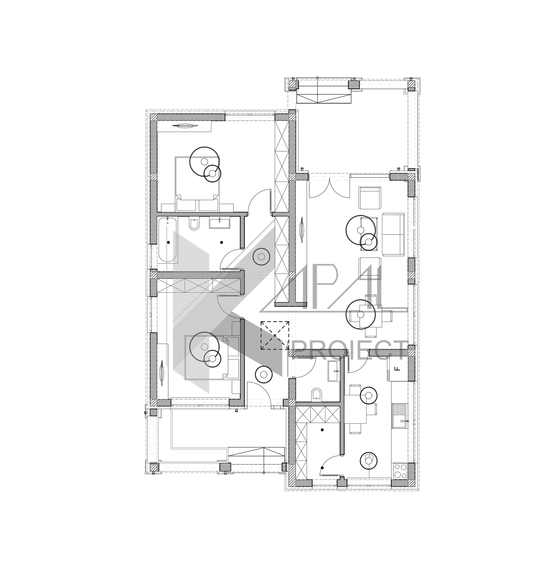
Parter
Acces + terasă acces — 8.51 mp
Hol — 11.20 mp
Baie — 2.64 mp
Living + dining — 24.71 mp
Terasă acoperită — 11.17 mp
Bucătărie — 10.24 mp
Debara — 4.24 mp
Dormitor — 13.04 mp
Baie — 6.00 mp
Dormitor — 15.68 mp










