Această locuință parter este concepută într-un limbaj clasic, cu accente moderne, oferind o imagine echilibrată și elegantă, potrivită pentru o familie care își dorește confort și o relație strânsă cu spațiul exterior. Casa este amplasată într-o curte generoasă și este completată de un foișor independent, destinat bucătăriei de vară și zonei de luat masa.
Volumetria este simplă și coerentă, iar terasele acoperite sunt tratate asemenea unor pridvoare, fiind încadrate de arce, ceea ce conferă construcției un caracter cald și primitor. Fațadele sunt compuse în trei registre — soclu, registru median și registru superior — cu tratare diferențiată, registrul inferior și cel superior fiind placate cu piatră naturală.
Finisajele combină tencuiala decorativă albă, ancadramentele albe și tâmplăria gri, rezultând un contrast plăcut și o imagine rafinată. Locuința are o amprentă la sol de 131,93 mp, iar foișorul 28,11 mp, suprafața construită totală fiind de 160,04 mp. Suprafața utilă totală este de 112,74 mp, iar acoperișul este de tip șarpantă, cu învelitoare din țiglă ceramică maro.
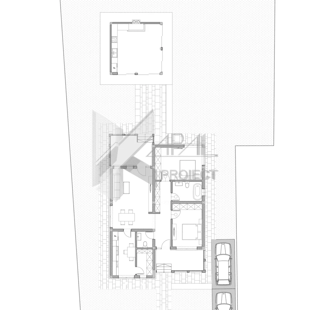
Parter – Locuință
Terasă acces acoperită
Hol – 11.20 mp
Baie – 2.64 mp
Living + dining – 24.71 mp
Bucătărie – 10.24 mp
Cămară – 4.24 mp
Dormitor – 15.68 mp
Baie – 6.00 mp
Dormitor – 13.04 mp
Terasă acoperită – 11.88 mp
Parter – Foișor
Bucătărie de vară
Loc de luat masa











