K014 propune o casă parter simplă și grațioasă, în care spiritul neoromânesc este reinterpretat contemporan: proporții echilibrate, pridvoare cu arce care protejează zonele de acces și terasa, plus un joc discret al ancadramentelor din lemn maro pe un fundal crem.
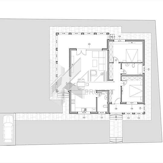
Volumetria compactă (13,75 × 12,55 m) optimizează circulațiile și reduce suprafețele neutilizate, oferind 98,68 mp utili într-o distribuție clară zi–noapte. Livingul de 34,70 mp comunică fluid cu bucătăria deschisă de 12,72 mp, iar deschiderea către terasa de 29,35 mp transformă zona de zi într-un spațiu extins pentru familie și prieteni, protejat de pridvorul cu arcade.
Materialele și cromatica afirmă eleganța clasică: tâmplărie maro, tencuială decorativă crem, detalii de lemn și soclu de piatră crem, completate de acoperișul din țiglă ceramică maro. Ansamblul este coerent, atemporal și ușor de întreținut.
Funcțional, proiectul oferă două dormitoare confortabile (13,00 mp și 16,64 mp), două băi bine dimensionate (5,04 mp și 5,69 mp), un hol generos (10,90 mp) și două terase care preiau rolul tradițional al pridvorului, creând tranziții plăcute între interior și exterior.
Parter
Terasa de acces: 6,96 mp – intrare protejată, tratată ca pridvor cu arce.
Hol: 10,90 mp – distribuție clară zi/noapte, spațiu pentru garderobă.
Living: 34,70 mp – zonă de zi amplă, legătură directă cu terasa principală.
Bucătărie deschisă: 12,72 mp – relație vizuală și funcțională cu livingul.
Terasa principală: 29,35 mp – pridvor acoperit, ideal pentru dining exterior.
Baie 1: 5,04 mp – deservire zonă de zi/oaspeți.
Dormitor 1: 13,00 mp – potrivit ca birou sau cameră copil.
Dormitor 2: 16,64 mp – dormitor matrimonial.
Baie 2: 5,69 mp – deservire zonă de noapte.











