Proiectul propune o locuință unifamilială parter, cu un limbaj arhitectural clasic-modern, caracterizat prin proporții echilibrate, linii curate și o imagine elegantă. Volumetria joasă și compactă oferă clădirii o prezență calmă și rafinată, potrivită atât zonelor urbane, cât și celor rezidențiale liniștite.
Fațadele sunt tratate în nuanțe deschise, completate de soclu placat cu piatră naturală și profile decorative discrete, care adaugă profunzime și textură. Tâmplăria închisă la culoare creează un contrast plăcut, iar cornișa perimetrală subliniază caracterul ordonat al compoziției.
Accesul principal este protejat și integrat într-un mic spațiu retras, cu vegetație decorativă, care creează o tranziție elegantă între exterior și interior. Terasa acoperită, amplasată în zona de zi, devine o extensie naturală a livingului și un spațiu ideal pentru relaxare și socializare.
Iluminatul arhitectural accentuează volumele pe timp de seară, evidențiind textura materialelor și oferind clădirii o imagine caldă și primitoare.
Locuința este destinată unei familii care își dorește un spațiu confortabil, ușor de utilizat și cu o estetică echilibrată, ce îmbină tradiția cu elemente contemporane.
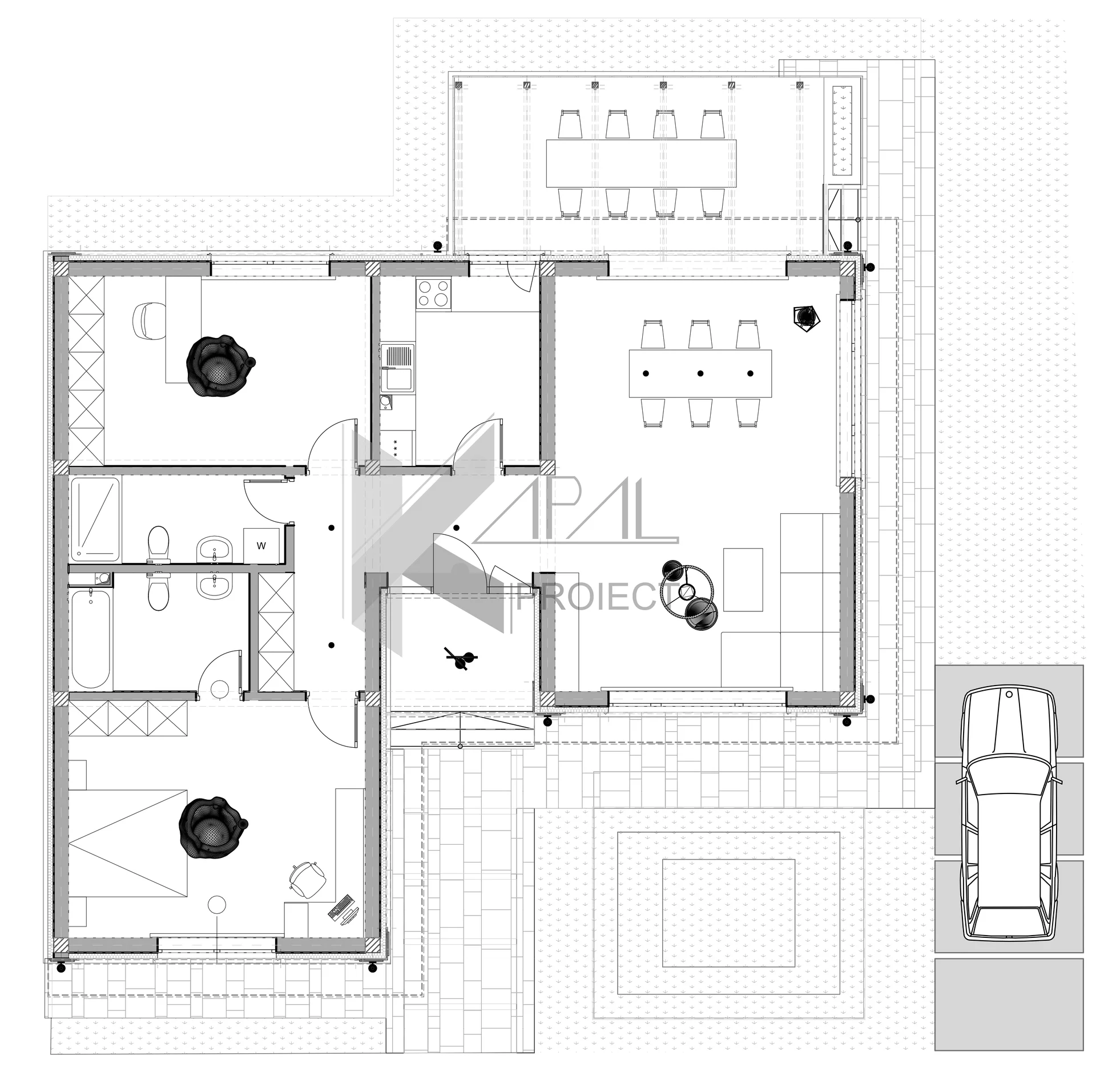
Hol – 10.86 mp
Living + loc de luat masa – 33.60 mp
Ieșire pe terasă – 18.68 mp
Bucătărie – 8.59 mp
Dormitor 1 – 20.00 mp
Dormitor 2 – 16.35 mp
Baie – 5.91 mp
Baie – 5.47 mp











