Acest proiect de locuință parter impresionează printr-un concept arhitectural echilibrat, care combină eleganța stilului modern cu căldura elementelor rustice. Volumetria în plan în formă de „L” nu este doar o alegere estetică, ci și una funcțională, generând două zone exterioare protejate ce extind spațiul de locuire către exterior și creează o relație naturală între interior și grădină.
Fațadele sunt definite de contrastul dintre tencuiala decorativă albă și placajul din piatră în tonuri naturale de maro, element ce conferă construcției personalitate și durabilitate vizuală. Texturile minerale sunt completate de tâmplării PVC maro și de acoperișul în două ape realizat pe șarpantă din lemn cu învelitoare din țiglă ceramică, soluție clasică și eficientă din punct de vedere tehnic și estetic.
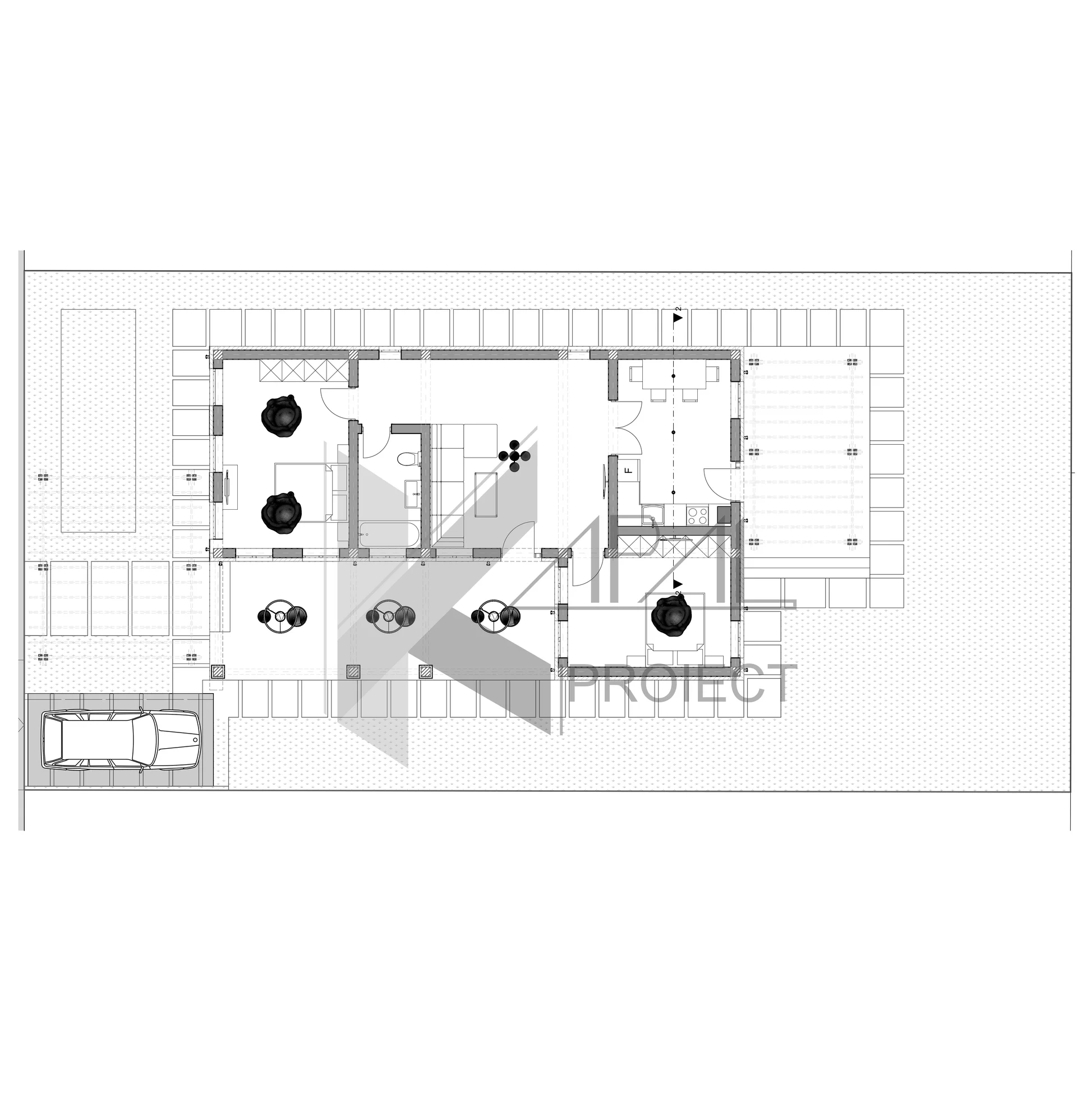
Zona de zi este orientată către terase, beneficiind de deschideri vitrate ample ce permit iluminare naturală abundentă și ventilare eficientă. Terasa principală, accesibilă din living, funcționează ca extensie a spațiului social, iar terasa secundară, conectată la bucătărie, devine locul ideal pentru servirea mesei în aer liber.
Organizarea interioară este gândită pentru o familie cu un copil, oferind două dormitoare confortabile și un spațiu de zi generos, fără suprafețe irosite. Distribuția camerelor asigură fluxuri logice de circulație și separarea clară între zona de zi și cea de noapte. Toate încăperile beneficiază de lumină naturală directă, conform orientării cardinale.
Prin proporții echilibrate, materiale naturale și o compoziție arhitecturală coerentă, proiectul reprezintă o soluție locativă eficientă, estetică și adaptată cerințelor actuale de confort.
Parter
Terasă acoperită — 28.72 mp
Living — 24.48 mp
Hol — 3.41 mp
Baie — 5.27 mp
Dormitor — 17.34 mp
Dormitor — 14.81 mp
Bucătărie — 13.72 mp
Terasă bucătărie — 19.38 mp










