Proiectul propune realizarea unui ansamblu arhitectural complex, cu funcțiune religioasă, administrativă și socială, destinat comunității musulmane. Ansamblul este alcătuit din trei corpuri distincte – lăcaș de cult, sediu administrativ și anexă – organizate coerent în jurul unei curți comune, care devine elementul central de legătură, orientare și socializare.
Arhitectura este tratată într-un stil clasic, cu proporții echilibrate, volume clare și detalii decorative discrete. Cromatica este sobră și elegantă, bazată pe nuanțe de alb și bej deschis, completate de profile decorative și cornișe care subliniază ordonarea volumelor.
Lăcașul de cult este pus în valoare prin volumetrie și prin prezența minaretului, care funcționează ca reper urban și element simbolic al ansamblului. Sediul administrativ și social adăpostește funcțiuni diverse – săli multifuncționale, birouri, bibliotecă și spații de întâlnire – și se deschide către curtea interioară printr-un portic care oferă protecție climatică și continuitate spațială.
Anexa amplasată în curte găzduiește zona de ablutiune și spațiile de servire a ceaiului, funcționând ca un foaier social pentru întreaga comunitate. Iluminatul arhitectural integrat accentuează volumele și detaliile fațadelor, oferind ansamblului o imagine reprezentativă și coerentă pe timp de seară.
Prin organizare, expresie arhitecturală și funcțiuni, ansamblul răspunde atât nevoilor religioase, cât și celor sociale și administrative, devenind un punct de referință urban și comunitar.
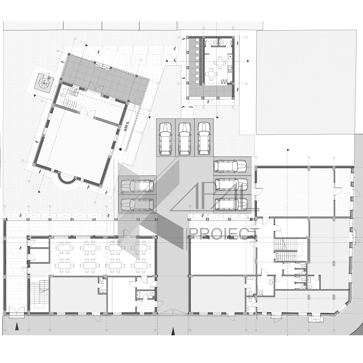
Parter - Lăcaș de cult musulman
Terasă acces – 40,34 mp
Hol – 19,35 mp
Sală de rugăciuni bărbați – 71,64 mp
Parter - Sediu administrativ și social
Spații tehnice PSI și hidranți
Cantină – 68,56 mp
Bucătărie – 16,97 mp
Săli multifuncționale
Săli de rugăciune
Vestiare și grupuri sanitare (inclusiv pentru persoane cu dizabilități)
Windfang – 13,09 mp
Holuri și spații de distribuție
Parter - Anexă
Terasă – 6,10 mp
Zonă de ablutiune – 13,33 mp
Zonă servire ceai – 13,63 mp
Grupuri sanitare aferente
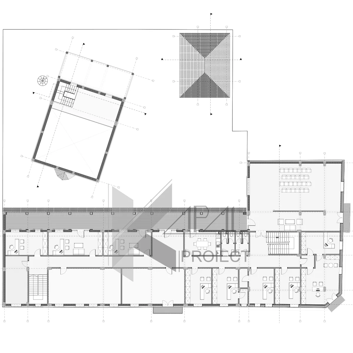
Etaj 1 - Lăcaș de cult
Zonă de rugăciune femei – 25,50 mp
Etaj 1 - Sediu administrativ și social
Birouri administrative (8 unități)
Bibliotecă – 19,27 mp
Săli de rugăciune
Săli de întâlnire pentru enoriași – 112,00 mp
Holuri, balcoane și grupuri sanitare










