Proiectul propune o casă modernă Parter + Etaj 1, concepută pentru parcele înguste și amplasare în regim cuplat, având o volumetrie compactă și un limbaj arhitectural contemporan. Clădirea este caracterizată prin linii clare, console și suprafețe vitrate generoase, care oferă o imagine elegantă și actuală.
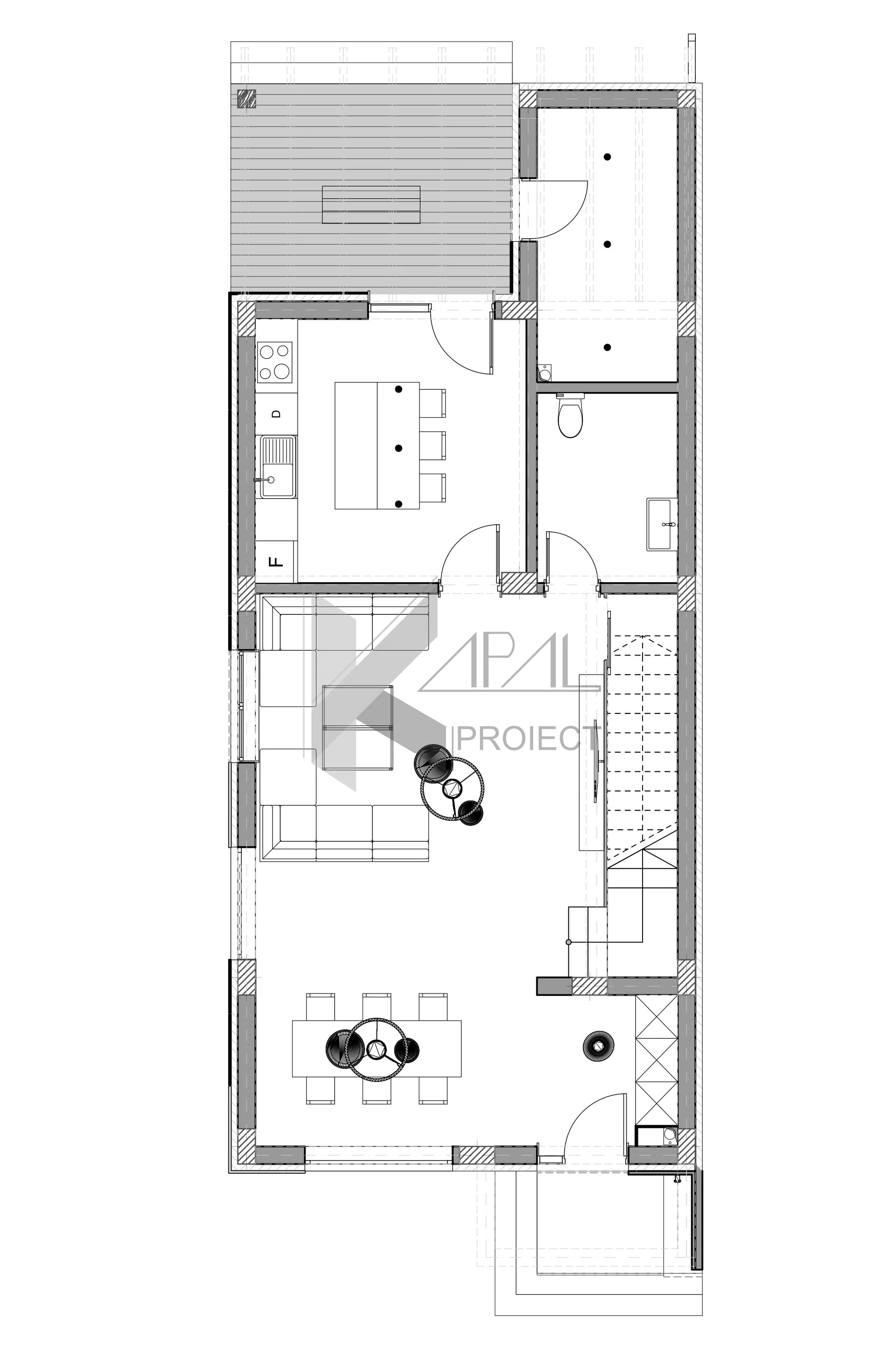
Zona de zi este amplasată la parter și este organizată în jurul unui living cu loc de luat masa generos, conectat direct cu bucătăria și terasa acoperită din spatele casei. Această configurare creează un spațiu ideal pentru viața de zi cu zi și pentru activități sociale.
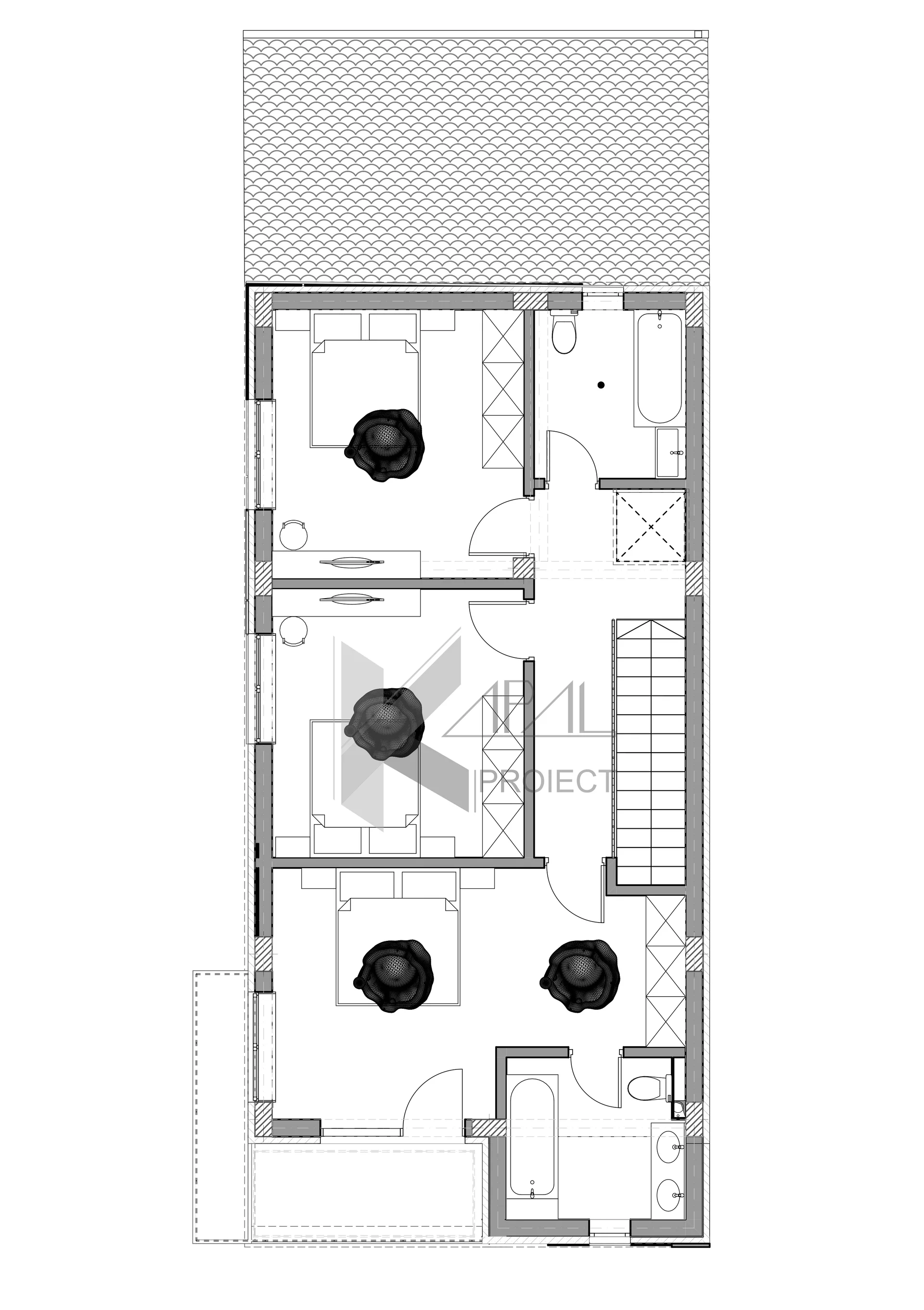
Etajul este dedicat zonei de noapte și cuprinde trei dormitoare, dintre care unul matrimonial cu baie proprie și balcon, precum și o baie comună. Compartimentarea asigură intimitate, confort și o bună separare între zona de zi și zona de odihnă.
Fațadele combină tencuiala decorativă albă cu placaje în nuanțe diferite, creând un joc echilibrat de volume și texturi. Consola de la etaj marchează accesul și protejează intrarea, iar tâmplăria PVC gri antracit și balustradele din sticlă completează imaginea modernă a locuinței.
Parter – Zonă de zi
Living + loc de luat masa – 40.55 mp
Bucătărie – 14.66 mp
Baie – 5.40 mp
Spațiu tehnic – 7.80 mp
Terasă acoperită – 12.00 mp
Etaj 1 – Zonă de noapte
Hol – 8.31 mp
Baie – 5.34 mp
Dormitor 1 – 14.22 mp
Dormitor 2 – 14.79 mp
Dormitor matrimonial – 18.82 mp
Baie proprie – 5.93 mp
Balcon – 4.72 mp












