Subsol
Spatiu tehnic- accesul se face printr-un chepeng
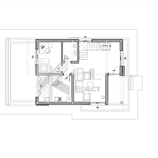
Parter
Living: 30,00 mp — spațiu luminos, cu deschidere către terasa de 24,00 mp
Bucătărie: 13,16 mp — separată, cu posibilitate de dining
Birou: 10,64 mp — ideal pentru work-from-home sau cameră hobby
Baie: 4,23 mp
Scară de acces către etaj
Terasă: 24,00 mp — extindere a zonei de zi, perfectă pentru dining exterior
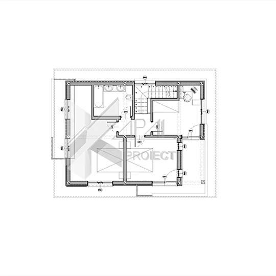
Etaj 1
Hol: 3,50 mp
Două dormitoare: 11,38 mp fiecare
Dormitor matrimonial cu dressing: 22,65 mp
Baie: 6,93 mp











