Locuință modernă P+1E, proiectată ca unitate cuplată pentru a valorifica eficient terenul și a oferi un stil de viață contemporan. Volumele curate, golurile vitrate mari și contrastul dintre tencuiala albă, griul închis și accentul din lemn creează o fațadă echilibrată, caldă și elegantă.
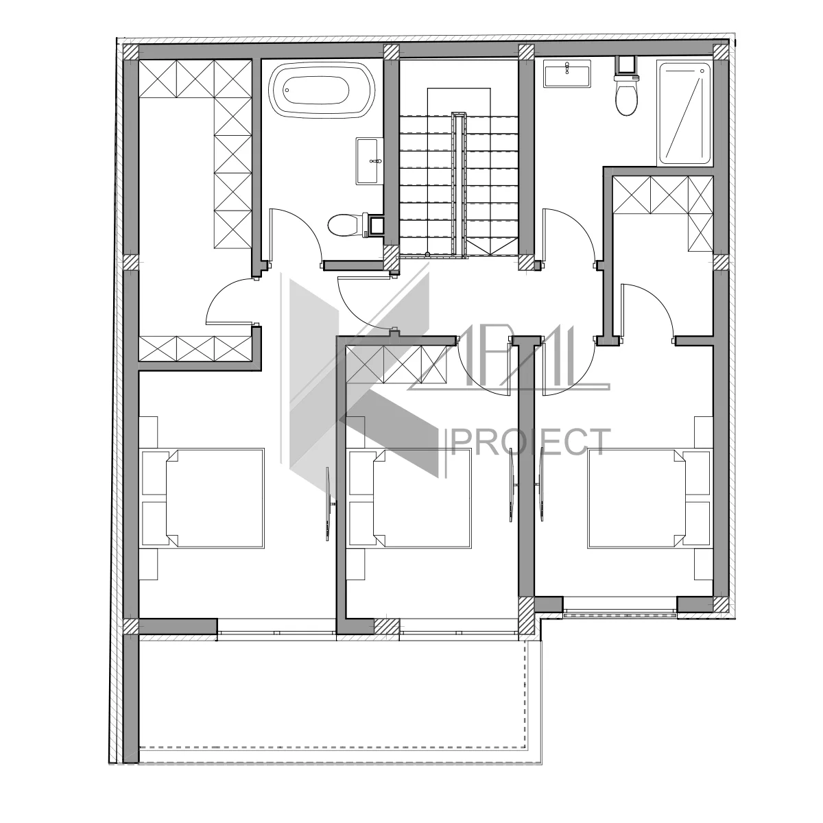
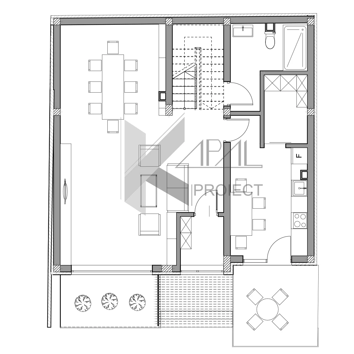
Cu o suprafață utilă de 138,51 mp (S.D.T. 212,02 mp) și o amprentă de 95,52 mp, casa propune o zonă de zi amplă la parter — living cu loc de luat masa de 43,14 mp conectat la terasa de 9,38 mp — și o bucătărie bine dimensionată, completată de cămară pentru depozitare eficientă. La etaj, trei dormitoare și două băi asigură intimitate și confort familiei, iar balconul generos de 11,60 mp extinde spațiul de relaxare în aer liber.
Planul compact (9,85 × 9,70 m) facilitează amplasarea pe diverse parcele, iar acoperișul tip șarpantă conferă durabilitate și o expresie arhitecturală familiară. K119 îmbină estetica modernă cu funcționalitatea, oferind un cămin luminos, coerent și ușor de întreținut.












