Locuinta individuala moderna, cu regim de inaltime parter si etaj, este conceputa ca o cladire cuplata ce integreaza la nivelul strazii un spatiu comercial, oferind o solutie eficienta pentru combinarea functiunii de locuire cu cea economica. Proiectul raspunde nevoilor unui stil de viata contemporan, in care locuinta si activitatea profesionala pot coexista in acelasi ansamblu construit.
La parter, cladirea este organizata astfel incat spatiul comercial de 25.16 mp, insotit de un grup sanitar propriu, beneficiaza de acces direct din strada, functionand independent fata de zona rezidentiala. Locuinta este accesata separat si include un hol de distributie, o baie, bucataria de 9.54 mp si zona de living cu loc de luat masa de 22.38 mp, configurate ca un spatiu de zi luminos si functional. Nivelul este completat de nodul vertical de circulatie care face legatura cu etajul.
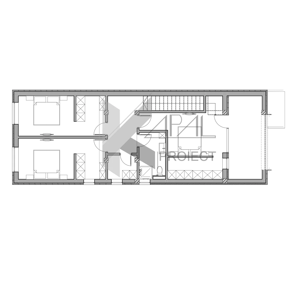
Etajul este dedicat zonei de noapte si este organizat in jurul unui hol de distributie de 8.11 mp. Aici sunt amplasate trei dormitoare, fiecare beneficiind de spatii proprii de dressing, oferind un plus de confort si depozitare. Dormitorul principal dispune de acces la un balcon generos de 14.37 mp, in timp ce nivelul este completat de o baie comuna si o zona suplimentara de depozitare.
Din punct de vedere arhitectural, cladirea adopta un limbaj modern minimalist, exprimat prin proportii echilibrate, suprafete curate si modul atent de dispunere a golurilor de fatada. Materialele utilizate contribuie la imaginea contemporana a ansamblului: tencuiala fina alba este completata de panouri tip Trespa in nuante maro, iar ancadramentele ferestrelor in tonuri inchise accentueaza liniile volumetriei.
Cladirea are dimensiunile de 17.40 x 6.45 m, o amprenta la sol de 112.23 mp si o suprafata utila de 142.39 mp. Acoperisul este de tip terasa necirculabila, completand imaginea moderna si compacta a unei locuinte urbane ce imbina eficient functiunea rezidentiala cu cea comerciala.












