O locuință individuală modernă, desfășurată pe Parter + 1 Etaj, gândită pentru familii care doresc un raport optim între suprafețele utile și confortul zilnic. Volumetria simplă, golurile vitrate ample și logia/balconul care protejează intrarea definesc o compoziție contemporană, eficientă și primitoare.
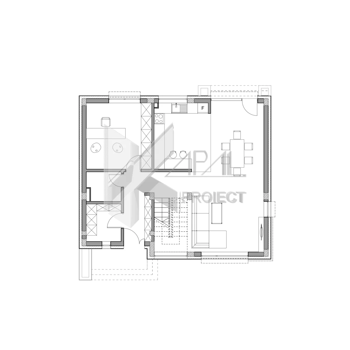
Fațadele combină tencuială fină albă, cărămidă decorativă albă și panouri tip TRESPA în nuanță lemn, oferind caldură vizuală și durabilitate. Planul funcțional propune la parter o zonă de zi luminoasă, cu living și loc de luat masa integrate, în relație cu bucătăria și cu un birou confortabil pentru lucru de acasă. La etaj, zona de noapte include 3 dormitoare bine dimensionate, dintre care dormitorul matrimonial beneficiază de dressing dedicat și balcon de 9,13 mp.
Cu 148,14 mp utili și 207,81 mp desfășurați, proiectul optimizează circulațiile și spațiile de depozitare (inclusiv spațiul tehnic), oferind confort, eficiență și o imagine arhitecturală coerentă. Acoperișul tip șarpantă asigură o integrare firească în zone rezidențiale variate și permite soluții eficiente pentru termo-hidroizolații.












