Această locuință individuală este concepută într-un limbaj arhitectural modern, cu regim de înălțime Subsol + Parter + Etaj 1, având o volumetrie echilibrată și o imagine contemporană, definită prin jocul volumelor, al decrosurilor și al fațadei ventilate. Clădirea se remarcă printr-o expresie elegantă și discretă, cu elemente de surpriză pe toate cele trei laturi.
Fațadele sunt realizate cu placaje ceramice și panouri tip TRESPA în nuanțe de alb, gri și maro, intrarea fiind accentuată prin panouri TRESPA de culoare maro și gri. Suprafețele vitrate generoase asigură iluminare naturală optimă în toate spațiile, iar gardul integrează elemente vegetale și preia limbajul material al fațadei, contribuind la coerența ansamblului.
Clădirea are o lungime de 13,65 m și o lățime de 8,95 m, o amprentă la sol de 107,71 mp, o suprafață desfășurată totală de 249,22 mp (din care 35,50 mp balcoane) și o suprafață utilă de 149,21 mp. Acoperișul este de tip terasă necirculabilă.
Subsol
Acces – 2.16 mp
Spațiu tehnic – 14.63 mp
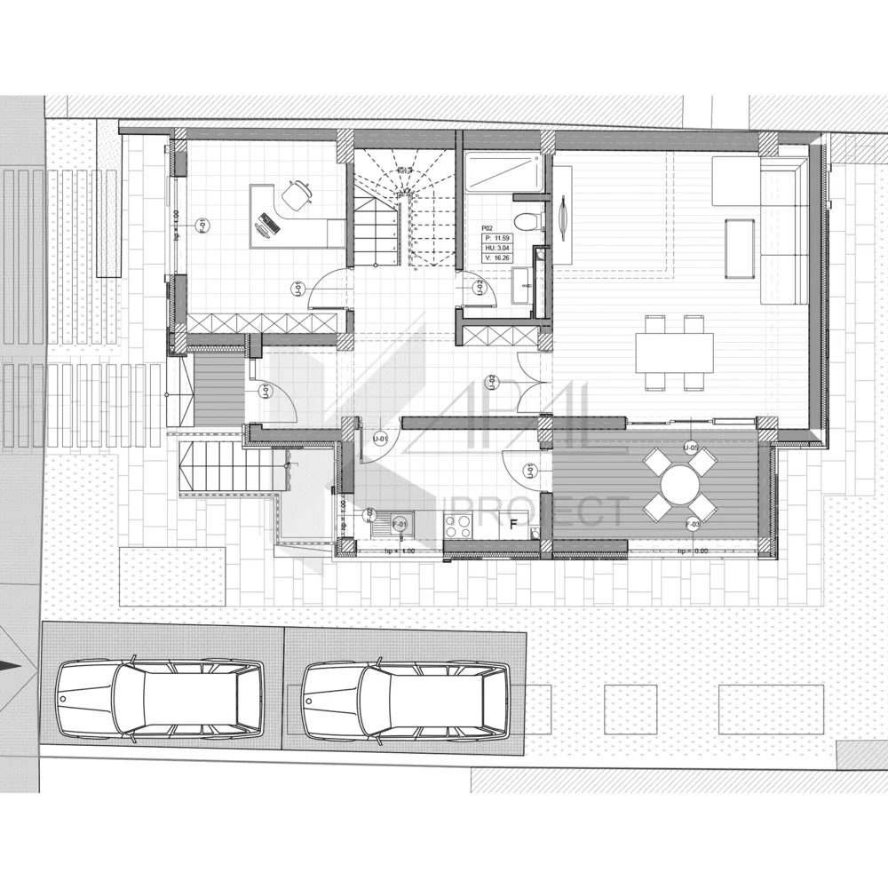
Parter
Acces – 1.58 mp
Hol – 12.78 mp
Birou – 12.86 mp
Nod vertical de circulație
Bucătărie – 8.57 mp
Baie – 5.35 mp
Living + loc de luat masa – 28.87 mp
Terasă închisă – 9.56 mp
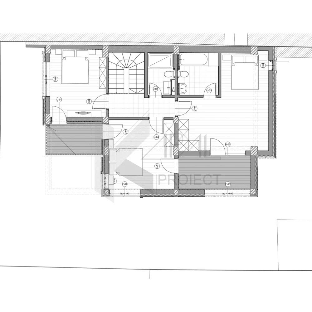
Etaj 1
Nod vertical de circulație
Hol – 4.93 mp
Dormitor A – 12.85 mp
Balcon – 6.53 mp
Baie – 3.62 mp
Dormitor B – 15.55 mp
Dormitor C – 23.49 mp
Baie – 5.71 mp
Balcon închis – 8.50 mp












