Locuința propusă este o casă modernă cu accente clasice, dezvoltată pe parter și etaj, concepută pentru a oferi un echilibru între eleganța tradițională și confortul unei organizări contemporane a spațiului. Volumetria simplă este completată de elemente decorative discrete, care conferă clădirii un caracter cald și atemporal.
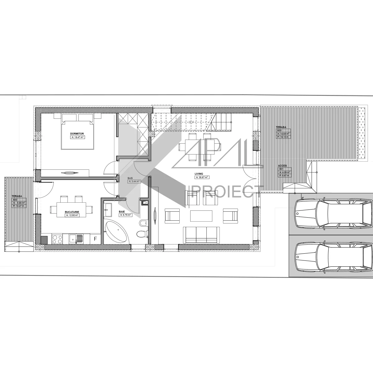
La nivelul parterului, accesul se face printr-o terasă ce conduce către zona de zi, unde livingul generos devine spațiul principal al casei, deschis către exterior și prelungit natural către terasa de relaxare. Bucătăria, amplasată în apropiere, beneficiază de propria ieșire către o terasă secundară, facilitând activitățile zilnice și mesele în aer liber. Parterul mai include o baie, un sas de legătură și un dormitor amplu, potrivit atât pentru oaspeți, cât și pentru un membru al familiei care preferă utilizarea spațiilor la nivelul inferior. Scara ce face legătura cu etajul este integrată în zona livingului, contribuind la fluiditatea spațiului.
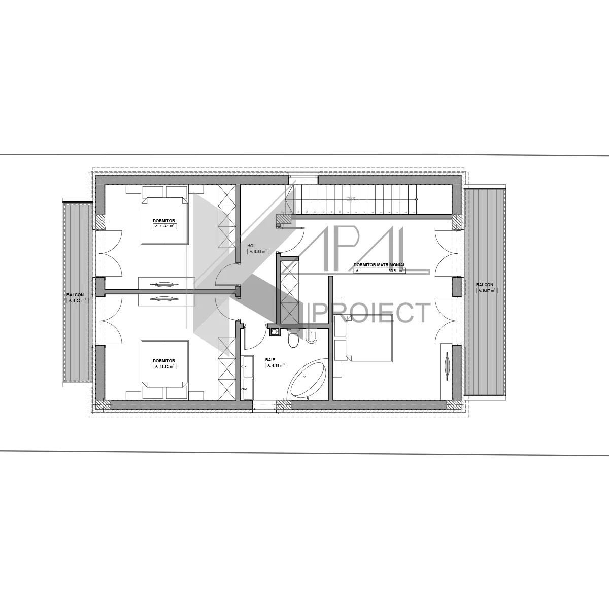
Etajul este dedicat zonei de noapte și oferă o organizare confortabilă pentru întreaga familie. Holul central distribuie accesul către două dormitoare, o baie comună și un dormitor matrimonial generos, care beneficiază de acces propriu la balcon. Un balcon continuu, cu parapet din sticlă clară, unifică fațada și asigură deschideri largi către exterior, oferind în același timp protecție vizuală discretă și lumină naturală abundentă.
Din punct de vedere arhitectural, casa îmbină linii moderne cu elemente clasice reinterpretate. Cromatica este simplă, dar elegantă, bazată pe tonuri de alb, crem și maro, care creează o imagine caldă și echilibrată. Fațadele sunt accentuate de cornișe și benzi orizontale în nuanțe bej, iar soclul din piatră naturală oferă volumului stabilitate și rafinament. Tâmplăriile în nuanță caldă de lemn și suprafețele vitrate ample deschid interiorul către grădină, în timp ce balustradele din sticlă securizată contribuie la imaginea modernă a ansamblului. Pe latura laterală, o pergolă din lamele de lemn creează un coridor umbrit către curte, adăugând un plus de confort spațiilor exterioare.
Rezultatul este o locuință elegantă și primitoare, potrivită pentru o familie care își dorește un spațiu echilibrat, luminos și bine organizat, cu zone generoase pentru petrecerea timpului împreună și o relație armonioasă cu exteriorul.
Clădirea are o lungime maximă de 12,45 m și o lățime maximă de 8,00 m, o amprentă la sol de 99,62 mp și o suprafață desfășurată totală de 253,73 mp, din care 36,49 mp reprezintă suprafața balcoanelor. Suprafața utilă totală este de 150,58 mp, iar acoperirea este realizată printr-o șarpantă cu învelitoare din țiglă maro, soluție ce completează armonios caracterul modern cu accente clasice al locuinței.












