Această locuință individuală contemporană este concepută pentru confort familial, funcționalitate eficientă și o relație echilibrată între spațiile interioare și cele exterioare. Configurația Subsol + Parter + Etaj 1 permite o organizare clară a funcțiunilor, cu separarea zonelor tehnice, de zi și de noapte, rezultând o casă coerentă, ușor de utilizat și de întreținut. Volumetria compactă, cu proporții bine controlate și linii simple, conferă clădirii o prezență elegantă și echilibrată.
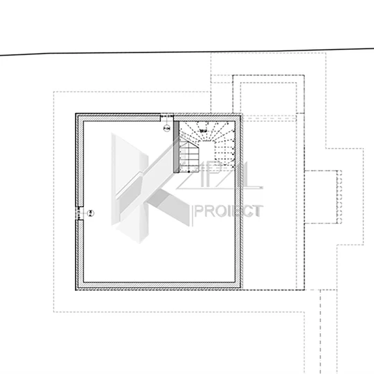
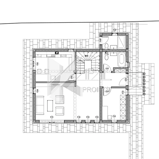
La nivelul subsolului sunt amplasate nodul de circulație și un spațiu generos de depozitare, destinat organizării eficiente a locuinței și susținerii activităților cotidiene. Parterul este dedicat zonei de zi și funcțiunilor auxiliare, cu un vestibul primitor, hol de distribuție, spațiu tehnic, baie și grup sanitar, precum și o bucătărie bine dimensionată, conectată direct cu livingul și zona de luat masa. Spațiul de zi beneficiază de deschideri ample, asigurând lumină naturală din belșug și o legătură firească cu exteriorul.
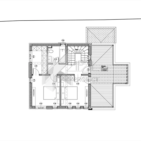
Etajul 1 adăpostește zona de noapte, compusă din două dormitoare și o baie. Unul dintre dormitoare are acces direct către o terasă generoasă de 25 mp, oferind un spațiu exterior privat ideal pentru relaxare, iar cel de-al doilea dormitor este completat de un dressing, sporind confortul și capacitatea de depozitare. Circulațiile sunt clare și compacte, optimizând suprafețele utile.
Fațadele sunt finisate cu tencuială în nuanțe de alb și bej, completate de placaje din piatră decorativă maro deschis, rezultând o cromatică caldă și primitoare, care accentuează caracterul domestic al clădirii. Acoperișul de tip șarpantă completează imaginea arhitecturală și asigură o bună protecție climatică.
Cu o amprentă la sol de 89,41 mp, o suprafață desfășurată totală de 236,77 mp și o suprafață utilă de 152,50 mp, locuința oferă un echilibru între dimensiune, confort și eficiență, fiind adaptată cerințelor actuale de locuire și unui stil de viață modern.
Subsol
Nod de circulație (scară/hol)
Depozitare: 44,23 mp – spațiu generos pentru sezonier, echipamente, boxe, arhivă personală.
Parter
Vestibul: 4,31 mp – tampon termic și zonă de primire.
Baie: 4,82 mp – utilă pentru zona de zi/oaspeți.
Spațiu tehnic: 8,80 mp – pentru echipamente (încălzire, ventilare, spălătorie, depozit).
Hol: 4,18 mp – distribuție clară către spațiile parterului.
Nod vertical de circulație – scară către subsol și etaj.
Bucătărie: 13,33 mp – separată, cu acces facil către dining, optimă pentru gătit intens.
Living + Spațiu de luat masa: 26,52 mp – zonă socială amplă, luminată natural, cu posibilitatea deschiderii către terasă.
Grup sanitar: 3,82 mp – suplimentar pentru confortul familiei și al oaspeților.
Etaj 1
Nod vertical de circulație + Hol: 6,57 mp – distribuție către zona de noapte.
Baie: 4,39 mp – comună, eficient dimensionată.
Dormitor 1: 12,56 mp – acces către terasă de 25,00 mp, ideală pentru relaxare în aer liber.
Dormitor 2: 12,75 mp – dressing dedicat: 6,21 mp, pentru organizare optimă.













