Acest proiect este o casă modernă P+1E, gândită pentru o familie cu doi copii, care îmbină eleganța volumetriilor simple cu funcțiuni perfect calibrate pentru viața de zi cu zi. Proiectată pentru terenuri cu deschidere mică, locuința poate fi cuplată pe o latură, păstrând totodată o relație fluidă cu grădina prin terasă, balcoane și pergole.
La exterior, un joc între volume intersectate, riflaje de lemn, placaje de piatră naturală și tencuieli alb/gri conturează o imagine contemporană, caldă și rafinată. Jardinierele de la nivelul parterului marchează accesul și consolidează legătura cu spațiul verde, în timp ce suprafețele vitrate generoase aduc lumină naturală în profunzimea planului.
Organizarea funcțională este clară și eficientă: zona de zi la parter – amplă, luminoasă și deschisă către terasă – iar zona de noapte la etaj, cu trei dormitoare bine proporționate și o suită matrimonială completă. Dimensiunile sunt echilibrate: 149,05 mp utili, S.D. 244,89 mp, amprentă 104,37 mp, cu balcoane/terase total 40,58 mp. Soluția de acoperiș tip șarpantă ascunsă cu învelitoare țiglă metalică Gerard păstrează linia curată a aticului și oferă durabilitate în exploatare.
Prin planificarea atentă a circulațiilor și vitrajelor, K006 livrează o locuință confortabilă, eficientă și ușor de întreținut — un proiect de casă modernă potrivit familiilor care își doresc un echilibru între estetică, funcționalitate și buget.
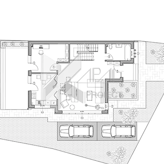
Parter
Windfang / Vestibul: 4,06 mp – filtru termic și spațiu pentru depozitare rapidă
Living: 39,48 mp – spațiul central al casei, orientat către terasă și grădină
Bucătărie închisă: 12,54 mp – separată fonic/olfactiv, cu acces facil din living
Birou: 14,70 mp – cameră flexibilă (home office / oaspeți)
Baie parter: 6,41 mp – baie completă pentru zona de zi și oaspeți
Nod vertical de circulație (scară + distribuții)
Terasă: 23,54 mp – zonă acoperită/parțial umbrită de pergole, conectată la grădină
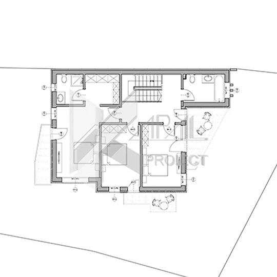
Etaj 1
Hol & distribuție: 9,77 mp
Dormitor 1: 13,33 mp + balcon
Dormitor 2: 13,33 mp + balcon
Baie comună: 6,77 mp – pentru dormitoarele secundare
Dormitor matrimonial: 18,50 mp cu dressing 5,75 mp și baie 4,42 mp + balcon privat











