Această casă clasică este concepută ca o locuință impunătoare și elegantă, cu regim de înălțime Parter + Etaj 1, având o compoziție arhitecturală echilibrată și o atenție deosebită acordată detaliilor. Volumetria amplă și proporțiile bine controlate conferă clădirii un caracter reprezentativ, potrivit unei locuințe de familie.
Parterul este dedicat în principal zonei de zi și activităților cotidiene, având ca element central un living generos, care devine inima casei. Etajul completează locuința cu spații suplimentare de relaxare și dormit, beneficiind de balcoane ample și deschideri către exterior.
Arhitectura clasică este pusă în valoare prin bosajul parterului, coloane dorice la balcoane și acces, ancadramente la ferestre și profile ornamentale, iar pentru o notă contemporană sunt integrate pergole la nivelul etajului. Finisajele în tencuială decorativă albă și ornamente din ipsos alb susțin imaginea elegantă a construcției.
Locuința are o suprafață desfășurată totală de 370,82 mp, o suprafață utilă de 270,72 mp și este acoperită cu șarpantă cu învelitoare din țiglă ceramică maro.
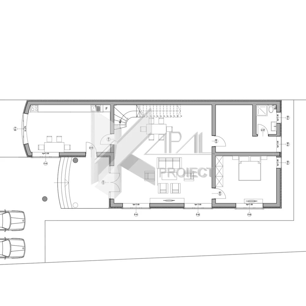
Parter
Terasa de acces – 13,22 mp: spațiu de primire, acoperit, protejat de intemperii.
Living – 66,22 mp: spațiul principal, cu scară de acces către etaj; zonă amplă pentru lounge și dining.
Bucătărie închisă – 25,57 mp: dublu acces (din living și direct din terasa de acces) pentru flux funcțional optim și servicii.
Birou – 19,78 mp: cameră de lucru/ oaspeți, cu baie de 4,24 mp.
Dormitor – 17,17 mp: dormitor de oaspeți/rezervă, cu baie dedicată de 4,24 mp.
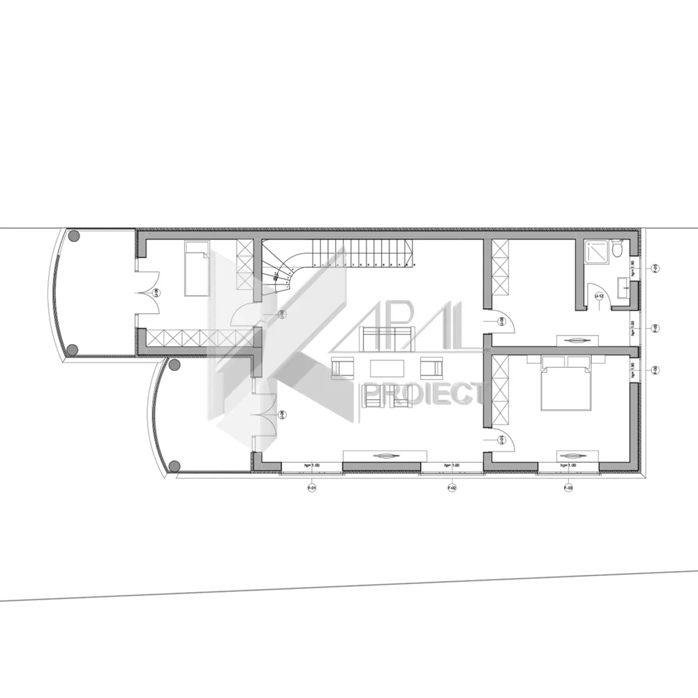
Etaj
Scară de acces din livingul parterului.
Living etaj – 67,11 mp: spațiu reprezentativ, ideal pentru lounge privat, bibliotecă sau home cinema; balcon 14,03 mp pentru extensie în aer liber.
Cameră studiu – 15,44 mp: perfectă pentru lucru/ hobby; balcon 12,99 mp sub pergolă pentru lucru în exterior pe vreme bună.
Dormitor 1 – 19,77 mp cu baie 4,24 mp: suită confortabilă, luminoasă.
Dormitor 2 – 17,23 mp cu baie 6,86 mp: suită generoasă, spațiu optim pentru depozitare și amenajări personalizate.












