Acest proiect este o locuință clasică S+P+1E, concepută pentru o familie cu 2 copii care își dorește o casă spațioasă, dar compactă, cu un grad ridicat de eleganță și o organizare funcțională clară între zona de zi și zona de noapte. Volumetria este echilibrată, iar fațada principală este compusă în trei registre, subliniind axul de acces printr-un joc de retrageri și elemente verticale.
Arhitectura reinterpretează limbajul clasic prin detalierea cornișei, ancadramentele fine ale ferestrelor și coloanele plasate strategic, care ritmează fațada și dau o scară umană intrărilor și terasei. În spate, terasa generos dimensionată devine o extensie naturală a livingului, cu o pergolă ce filtrează lumina și creează un cadru ideal pentru masă în aer liber și zone de relaxare pe gradene.
Planul este eficient și clar: subsolul adună funcțiunile tehnice și parcarea, parterul concentrează zona de zi luminoasă, iar etajul oferă intimitate prin trei dormitoare, dintre care matrimonialul dispune de dressing și baie proprie. Dimensiunile de 13,00 × 9,00 m permit o integrare facilă pe parcele urbane sau periurbane, iar acoperișul tip șarpantă cu țiglă gri completează expresia clasică în tonuri alb-bej, echilibrând materialitatea: tencuieli decorative, placaj de piatră și ornamente atent dozate.
Prin 265,28 mp utili și 398,73 mp suprafață desfășurată, K089 oferă spații generoase, fără risipă, cu fluxuri logice: acces protejat, depozitări aproape de intrare și bucătărie, living conectat la terasa din spate, circulații scurte și zonă de noapte bine separată. Rezultă o casă confortabilă pe termen lung, cu estetică atemporală și funcționalitate contemporană.
Subsol
Garaj – 51,71 mp
SAS – 3,23 mp
Hol – 13,37 mp
Scară de acces
Spațiu tehnic – 21,73 mp
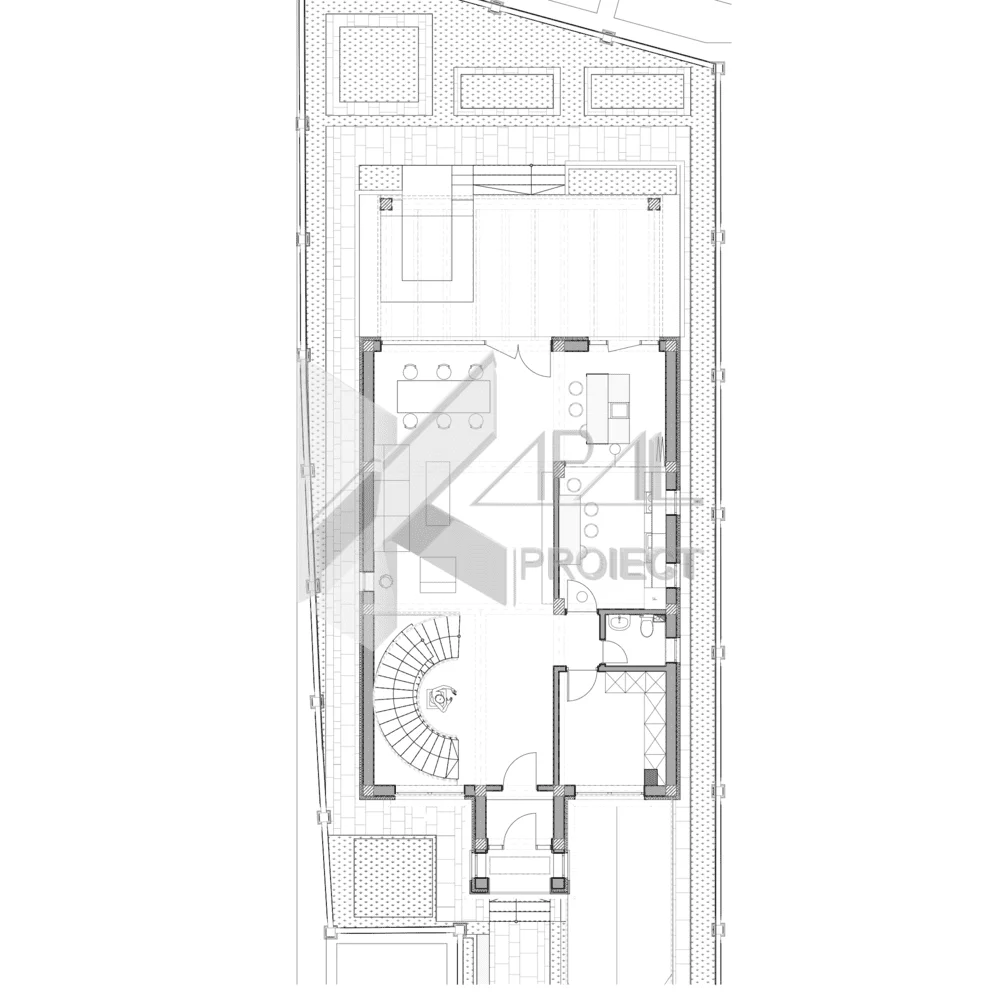
Parter
Windfang – 2,96 mp (filtru termic & de intimitate la intrare)
Hol – 14,71 mp (nod de distribuție)
Living – 37,37 mp (deschidere către terasa din spate)
Depozitare – 9,60 mp (practic, lângă fluxul de acces/zi)
Baie – 2,47 mp
Bucătărie – 11,91 mp (relație directă cu terasa / zona de luat masa)
Terasă – parte din totalul de 153,66 mp (include pergola, gradene, zonă de dining exterior)
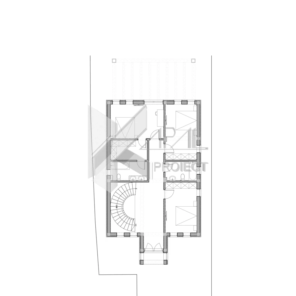
Etaj 1
Hol – 21,51 mp
Scară de acces
Baie – 5,36 mp (baie secundară pentru copii / oaspeți)
Dormitor – 14,40 mp
Dormitor – 15,83 mp
Dormitor matrimonial – 16,41 mp cu Dressing 6,65 mp și Baie 6,30 mp













