Plan Subsol: Nod vertical de circulație (scară), Spațiu tehnic – 79,11 mp (zonă echipamente/depozitare), Grup sanitar – 3,33 mp
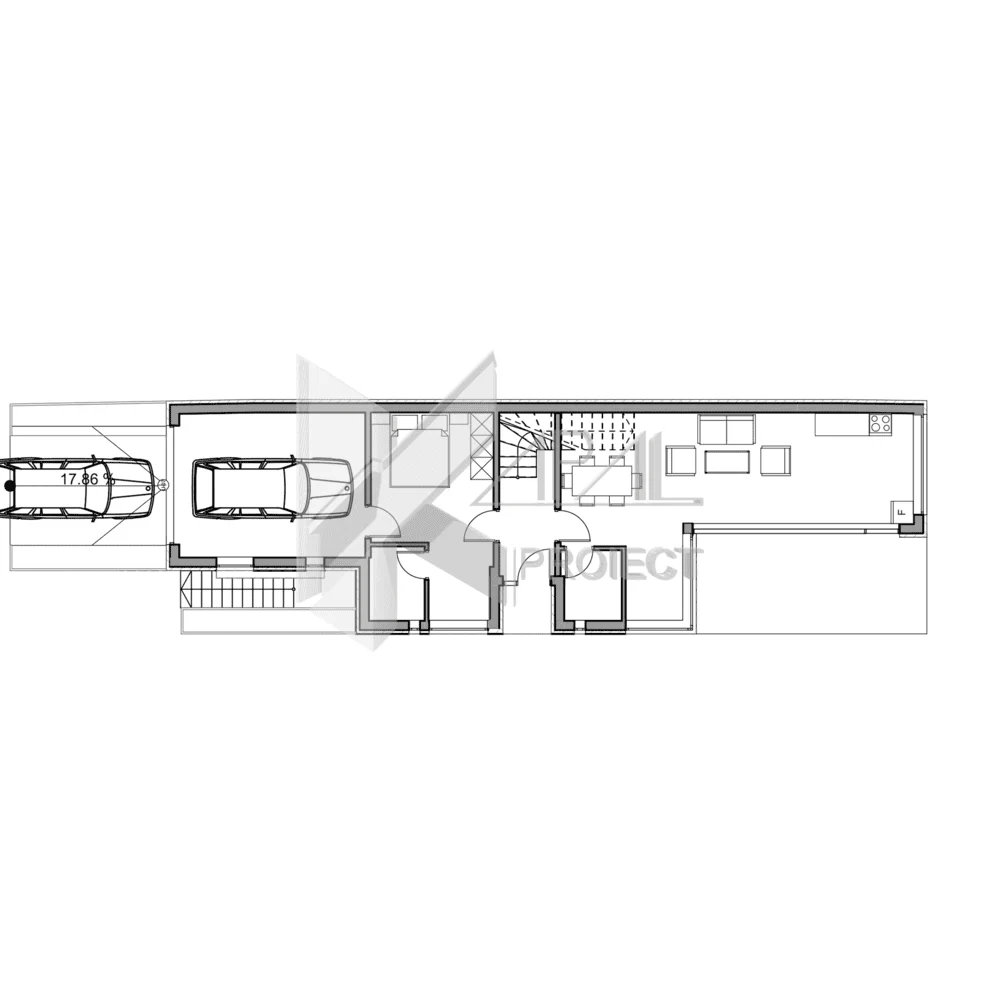
Plan Parter: Hol – 4,33 mp, Nod vertical de circulație, Living + Bucătărie – 33,49 mp (spațiu deschis, luminat natural), Baie – 3,01 mp, Dormitor – 14,98 mp cu baie proprie – 2,97 mp (posibil birou/oaspeti), Garaj – 19,45 mp (acces facil din zona de intrare), Terasă – 22,72 mp (legătură directă cu zona de zi)
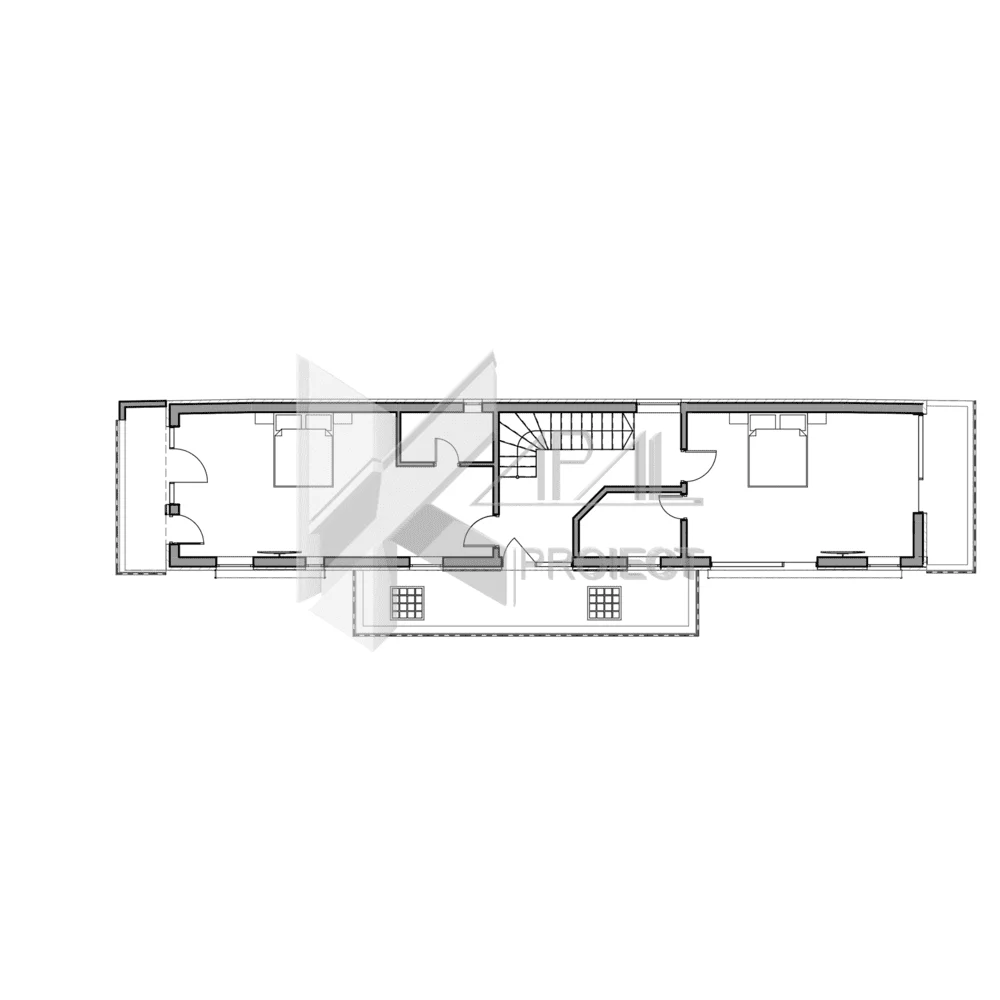
Plan Etaj 1: Hol – 9,56 mp, Nod vertical de circulație, Dormitor – 23,69 mp cu baie – 4,52 mp și balcon – 3,70 mp, Dormitor – 29,12 mp cu baie – 3,35 mp și două balcoane – 4,57 mp și 11,50 mp
Plan Etaj 2: Hol – 7,66 mp; Nod vertical de circulație; Dormitor – 13,96 mp cu baie – 4,26 mp; Dormitor – 17,70 mp cu baie – 3,35 mp și terasă – 29,04 mp














