Această locuință modernă este rezultatul studierii și adaptării unui imobil existent, proiectul propunând extinderea etajului 1 cu o cameră, modificarea esteticii fațadelor și înlocuirea acoperișului, pentru obținerea unei imagini contemporane și coerente. Regimul de înălțime Parter + Etaj 1 + Mansardă permite o organizare clară a funcțiunilor și o utilizare eficientă a spațiilor.
Parterul este dedicat zonei de zi și include spații ample pentru gătit, relaxare și socializare, precum și funcțiuni auxiliare. Etajul 1 adăpostește zona de noapte, cu dormitoare multiple și băi, iar mansarda completează locuința cu un spațiu deschis destinat activităților recreative.
Volumetria este rezultatul intersectării mai multor corpuri, generând un ansamblu dinamic, completat de acoperișuri în două ape și într-o apă. Finisajele combină tencuiala decorativă albă cu placaje din travertin, iar balustradele din sticlă securizată susțin caracterul modern al construcției.
Locuința are o suprafață desfășurată totală de 457,34 mp, o suprafață utilă de 287,69 mp și este acoperită cu șarpantă cu învelitoare din țiglă.
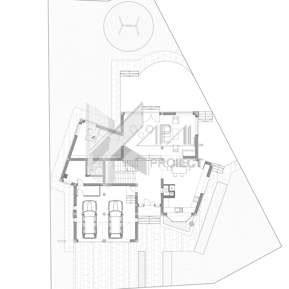
Parter – Zonă de zi
Hol – 12.99 mp
Depozitare – 1.29 mp
Bucătărie – 25.45 mp
Garaj – 36.23 mp
Depozitare – 2.81 mp
Nod vertical de circulație
Living – 38.41 mp
Birou – 17.53 mp
Baie – 2.97 mp
Două terase
Etaj 1 – Zonă de noapte
Nod vertical de circulație
Hol – 20.20 mp (cu gol peste living și balcon)
Baie – 6.65 mp
Dormitor – 10.37 mp
Dormitor – 18.98 mp
Dormitor – 17.69 mp
Dormitor – 16.08 mp
Dressing – 7.17 mp
Baie – 6.27 mp
Mansardă
Nod vertical de circulație
Cameră open-space pentru hobby-uri













