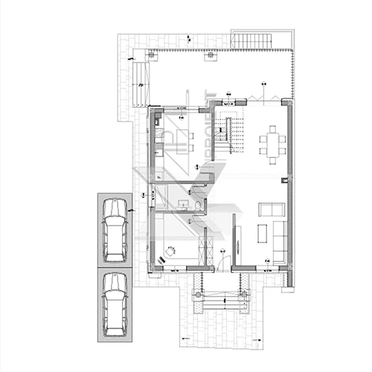
Parter
Windfang – 3,94 mp: filtru termic și zonă de tranziție spre hol.
Nod vertical de circulație: scară centrală, leagă eficient toate nivelurile.
Birou – 12,07 mp: perfect pentru work-from-home sau cameră hobby.
Baie – 5,99 mp: deservire parter, amplasată convenabil.
Living + loc de luat masa – 46,91 mp: spațiu generos, cu deschidere spre terasă.
Bucătărie – 17,77 mp: flux logic preparare–servire, ușor control vizual spre zona de zi.
Terasă – 34,98 mp: extinde zona de zi, ideală pentru dining exterior și relaxare.
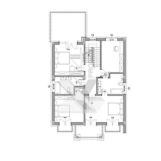
Etaj 1
Nod vertical de circulație & hol – 7,39 mp: distribuție clară către dormitoare.
Dormitor 1 – 15,99 mp + terasă – 18,54 mp: suită luminoasă cu spațiu exterior generos.
Dormitor 2 – 15,62 mp + balcon – 1,42 mp: cameră de tineret/ oaspeți cu deschidere la exterior.
Dormitor matrimonial – 18,81 mp cu baie – 8,10 mp și dressing – 12,78 mp + balcon – 1,43 mp: intimitate, depozitare amplă și confort.
Baie etaj – (inclusă în matrimonial) + încă o baie: asigură ritm lejer dimineața pentru întreaga familie.












