Se propune o locuință unifamilială în stil clasic, cu volumetrie echilibrată și detalii decorative dozate cu finețe. Fațadele în tonuri alb–crem și profilele decorative albe evidențiază registrele clădirii, cornișa șarpantei și ancadramentele ferestrelor, conferind eleganță fără exces. Tâmplăria maro, nuanță stejar, încălzește compoziția, iar ritmul deschiderilor asigură o iluminare naturală excelentă în toate spațiile principale.
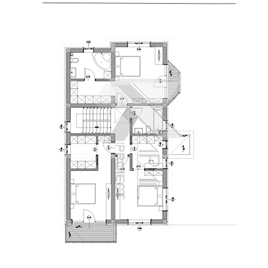
Planul P+1E separă clar zona de zi de cea de noapte. Parterul găzduiește fluxurile cotidiene — acces, gătit, socializare — și include funcțiunile tehnice esențiale (garaj, spațiu tehnic), în timp ce etajul oferă trei dormitoare spațioase, două dressinguri dedicate și o suită matrimonială cu baie proprie și balcon, pentru intimitate și confort sporit.
Cu o amprentă de 125,08 mp și o desfășurată totală de 274,57 mp, K042 este gândit pentru loturi urbane obișnuite (L = 15,95 m, l = 9,15 m), optimizând circulațiile și relația dintre camere. Acoperișul șarpantă susține expresia clasică și asigură durabilitate, iar materialele propuse facilitează întreținerea pe termen lung.
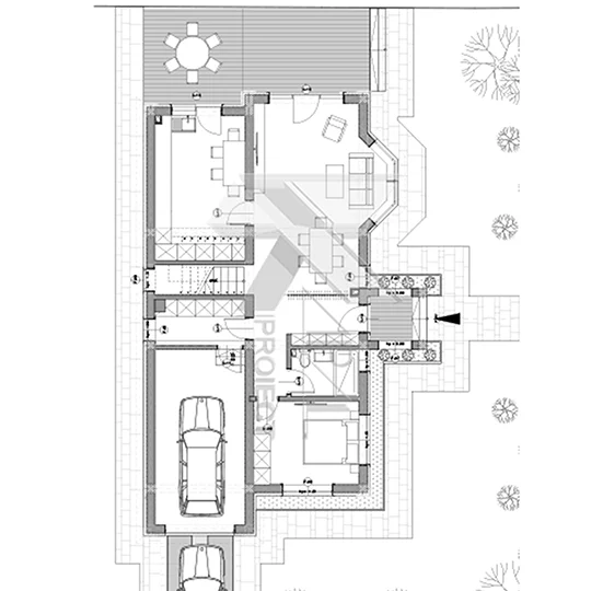
Parter
Hol – 9,05 mp: acces clar, cu loc pentru depozitare și garderobă de intrare.
Baie – 4,09 mp: grup sanitar de zi, poziționat aproape de zona de living.
Dormitor/ Birou – 11,40 mp: cameră flexibilă (birou, oaspeți sau hobby).
Garaj – 19,90 mp: acces direct și protejat, legătură facilă cu holul.
Etaj 1
Hol – 9,05 mp: acces clar, cu loc pentru depozitare și garderobă de intrare.
Baie – 4,09 mp: grup sanitar de zi, poziționat aproape de zona de living.
Dormitor/ Birou – 11,40 mp: cameră flexibilă (birou, oaspeți sau hobby).
Garaj – 19,90 mp: acces direct și protejat, legătură facilă cu holul.
Spațiu tehnic – 5,36 mp: centrală/echipamente, întreținere simplificată.
Bucătărie – 15,35 mp: spațiu generos, poate fi închisă sau semi-deschisă spre living.
Living + loc de luat masa – 28,44 mp: zonă luminoasă pentru socializare, deschideri ample către exterior.












