Această casă clasică este concepută ca o locuință individuală elegantă, cu regim de înălțime Parter + Etaj 1, având o compoziție arhitecturală echilibrată și proporții bine controlate. Volumetria compactă și limbajul clasic sunt puse în valoare prin utilizarea ornamentelor decorative, ancadramentelor și coloanelor care marchează intrarea principală, generând o imagine reprezentativă și rafinată.
Clădirea se remarcă prin îmbinarea armonioasă a elementelor clasice cu suprafețe vitrate generoase și un sistem de iluminare care accentuează detaliile fațadelor. Ferestrele mari contribuie la o bună iluminare naturală a spațiilor interioare, iar tâmplăria în culori închise creează un contrast elegant față de finisajele deschise ale fațadelor.
Finisajele propuse includ tencuială decorativă albă și bej, completate de ancadramente albe și ornamente clasice, conferind construcției un aspect luminos și echilibrat. Gardul este tratat în același registru stilistic, combinând zone opace cu panouri din fier forjat, menținând legătura vizuală între interior și exterior.
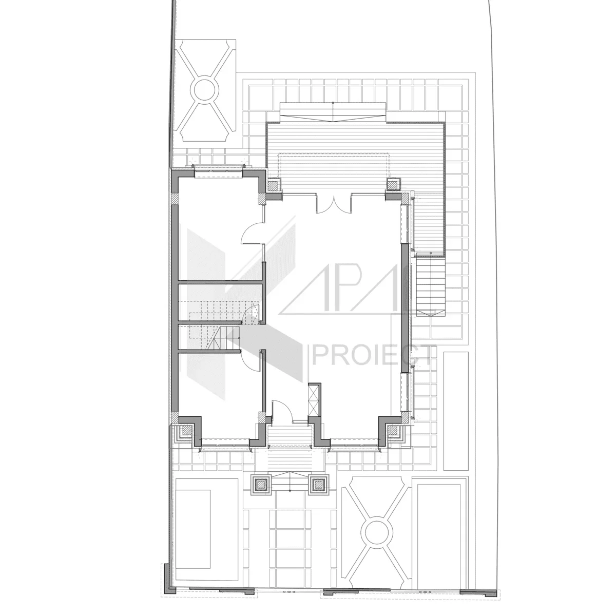
Locuința are o lungime de 12,20 m și o lățime de 10,50 m, o amprentă la sol de aproximativ 118,00 mp, o suprafață desfășurată totală de 272,24 mp (din care 34,34 mp balcoane) și o suprafață utilă de 183,72 mp. Acoperișul este de tip terasă necirculabilă.
Parter
Acces – 3.80 mp
Vestibul – 3.26 mp
Birou – 12.51 mp
Living – 55.14 mp
Baie – 5.84 mp
Bucătărie – 16.24 mp
Terasă – 27.45 mp
Nod vertical de circulație
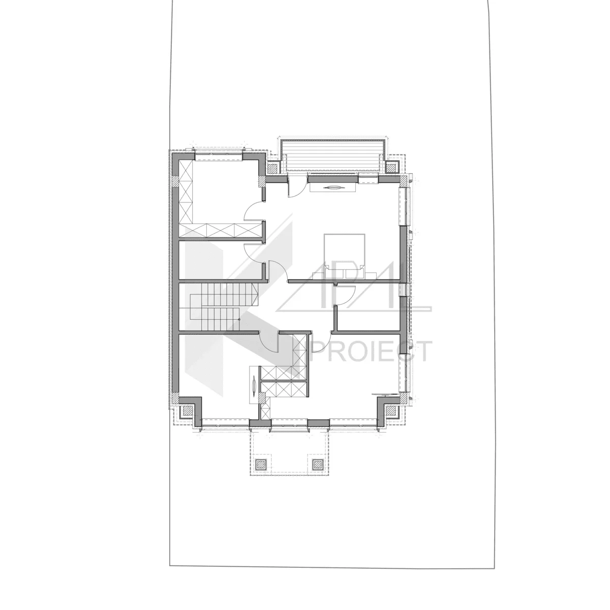
Etaj 1
Hol – 7.89 mp
Dormitor matrimonial
Dormitor – 25.08 mp
Baie – 6.21 mp
Dressing – 12.23 mp
Balcon – 6.89 mp
Dormitor single 1
Dormitor cu dressing incorporat – 16.25 mp
Dormitor single 2
Dormitor cu dressing incorporat – 17.30 mp
Baie comună – 5.78 mp












